GM Service Manual Online
For 1990-2009 cars only
Makes
🢒
Chevrolet
🢒
1985
🢒
Evaluator
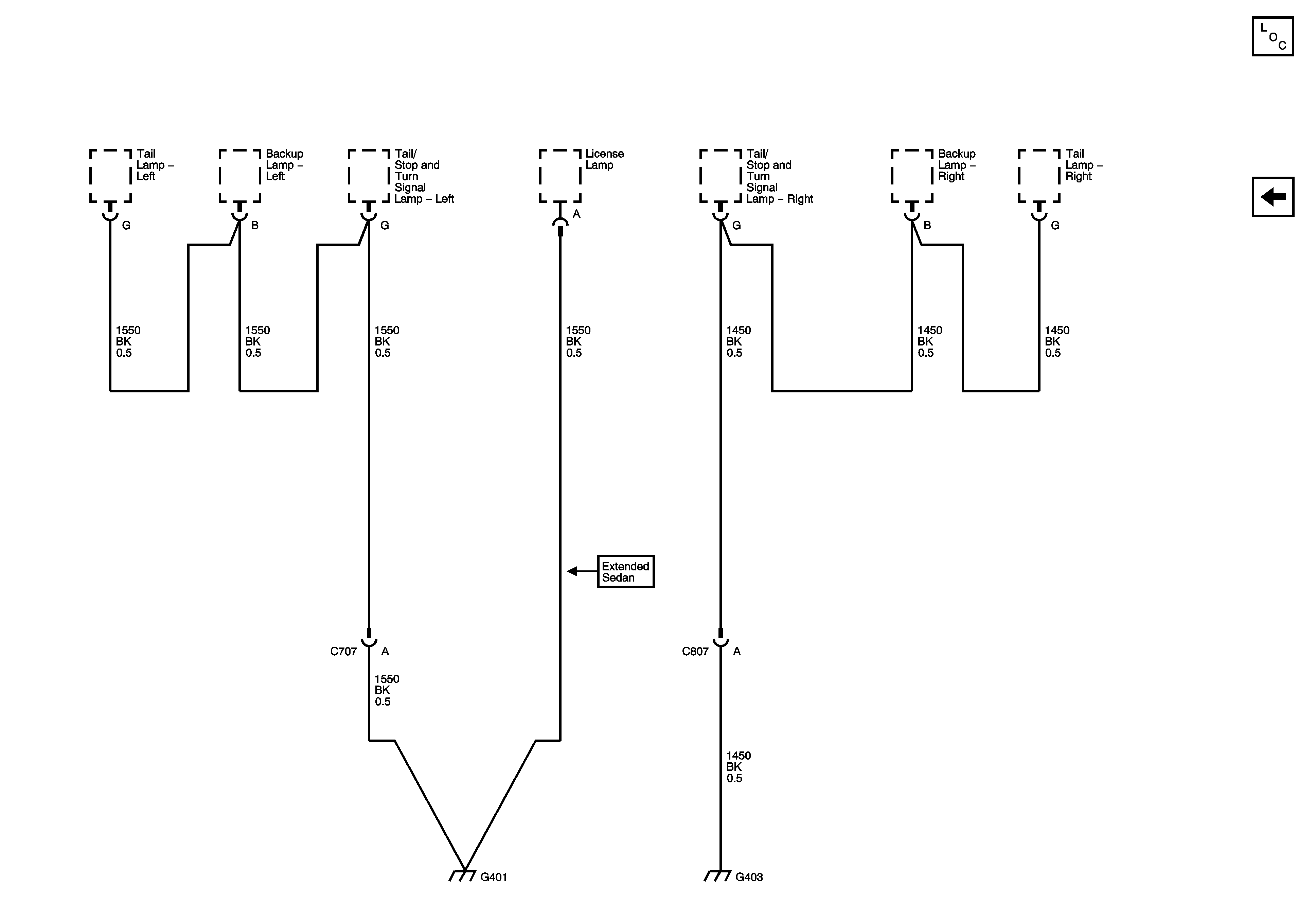
🢒 Ground G401 and G403
Ground G401 and G403
G401 and G403
Master Electrical Component List
Ground G304 and G305