GM Service Manual Online
For 1990-2009 cars only
Makes
🢒
Chevrolet
🢒
2008
🢒
Impala
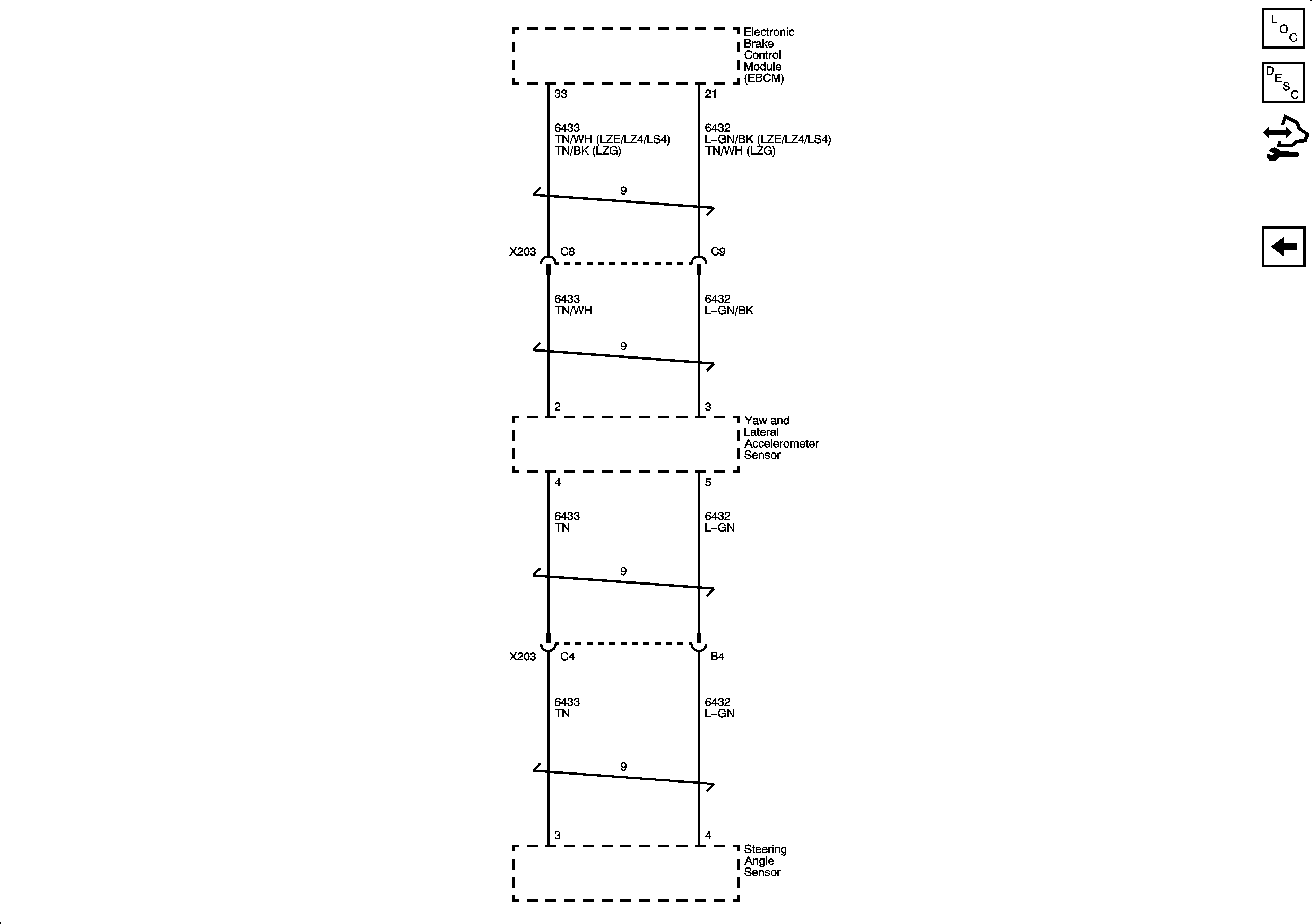
🢒 CAN Bus Serial Data - JL4
CAN Bus Serial Data - JL4
CAN Bus Serial Data - JL4
Master Electrical Component List
Data Link Communications Description and Operation
Control Module References
High Speed GMLAN Serial Data