GM Service Manual Online
For 1990-2009 cars only
Makes
🢒
Chevrolet
🢒
2008
🢒
Impala
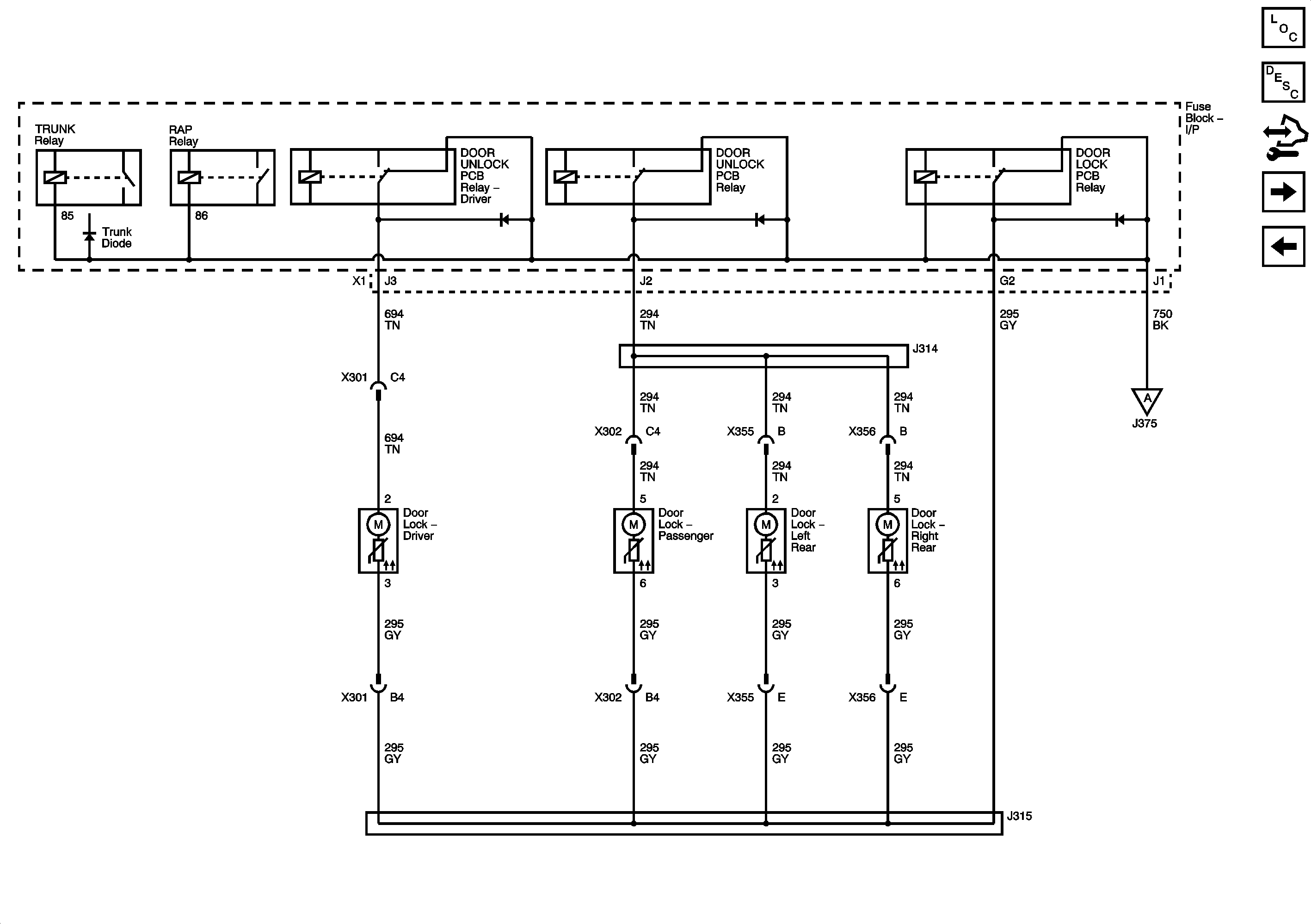
🢒 G302 (1 of 2)
G302 (1 of 2)
G302 (1 of 2)
Master Electrical Component List
Control Module References
G302
G301
G302