GM Service Manual Online
For 1990-2009 cars only
Makes
🢒
Chevrolet
🢒
2007
🢒
Kodiak C-Series (Conventional) C4/C5
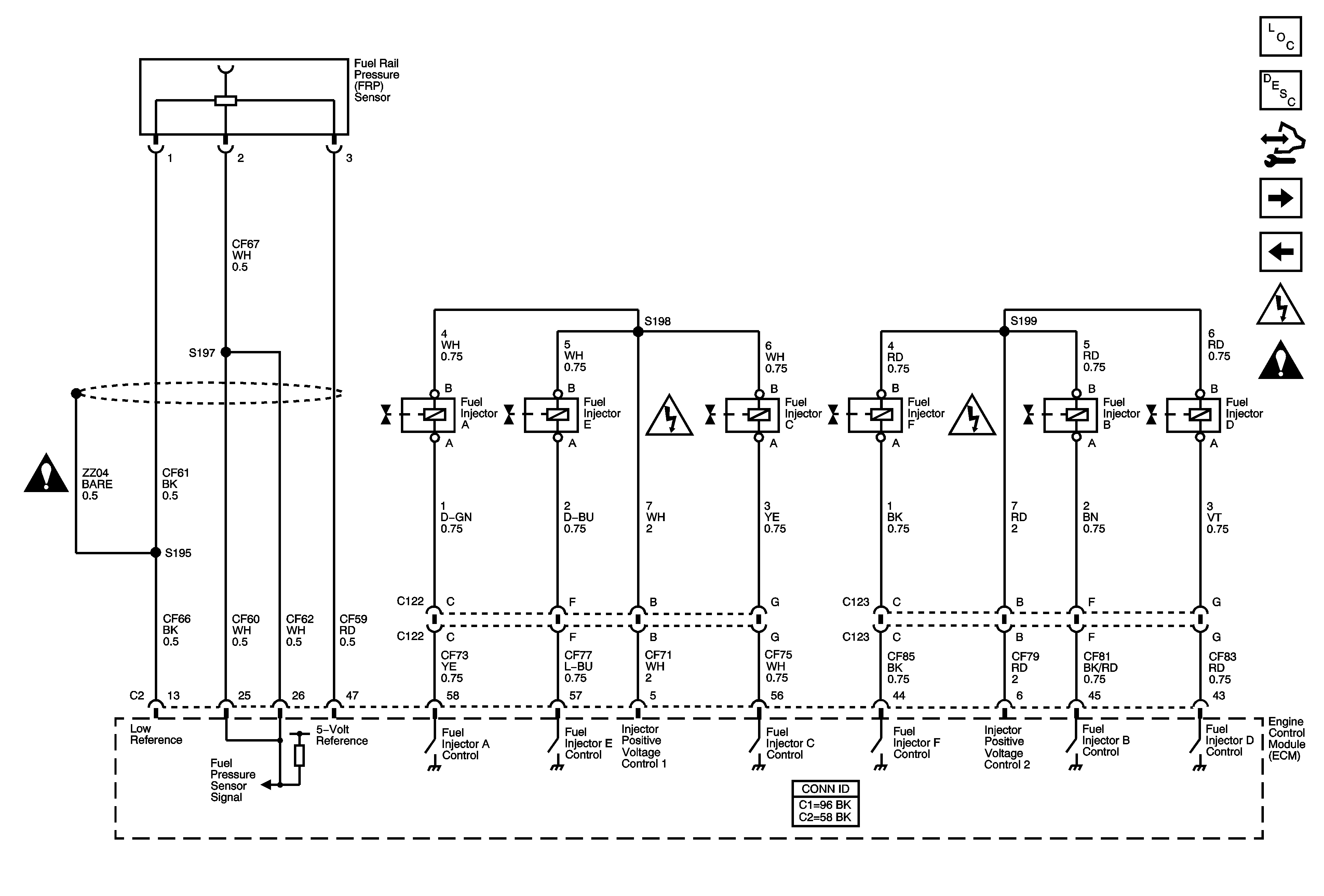
🢒 Fuel Controls - Fuel Injectors, Fuel Rail Pressure (FRP)
Fuel Controls - Fuel Injectors, Fuel Rail Pressure (FRP)
Fuel Controls - Fuel Injectors, Fuel Rail Pressure Sensor
Master Electrical Component List
Fuel System Description
Control Module References
Power Take Off (PTO) System References
Fuel Controls - Fuel Sensors, Suction Control Valve (SCV), Exhaust Temperature, DPF Pressure Sensors, and Exhaust Brake Solenoid
Engine Controls Schematic Icons
Engine Controls Schematic Icons