GM Service Manual Online
For 1990-2009 cars only
Makes
🢒
Chevrolet
🢒
2007
🢒
Kodiak C-Series (Conventional) C6/C7/C8
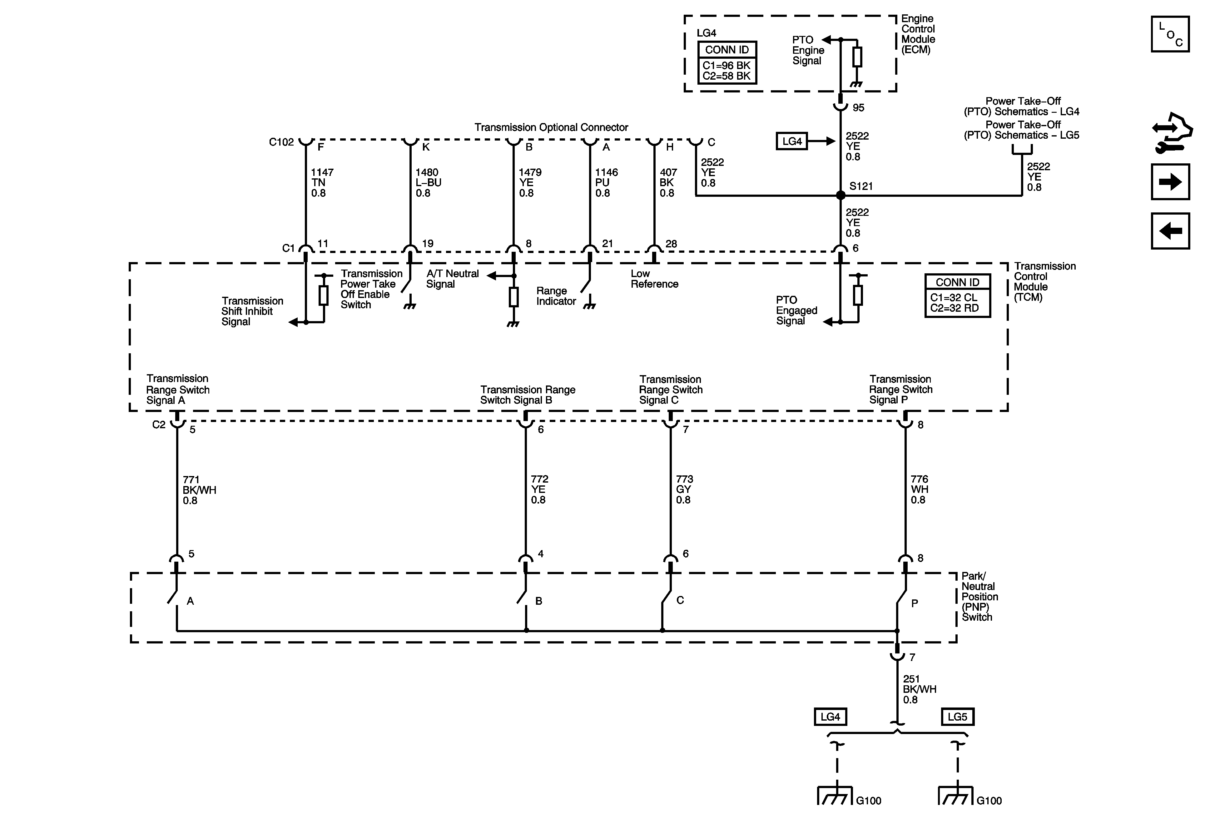
🢒 PNP Switch and Transmission Optional Connector (LG4/LG5)
PNP Switch and Transmission Optional Connector (LG4/LG5)
C102 - Transmission Optional Connector and Park/Neutral Position Switch - LG4/LG5
Master Electrical Component List
Control Module References
Speed Sensors, Trim B and Shift Solenoid
C 102 - Upfitter TRANS OPT Connector and Internal Mode Switch
w/o LG5 2 of 2
w/LG5
G100 - LG4
G100 - LG5