GM Service Manual Online
For 1990-2009 cars only
Figure 1:

Data Link Connector Power and Ground


Object Number: 2076371  Size: FS
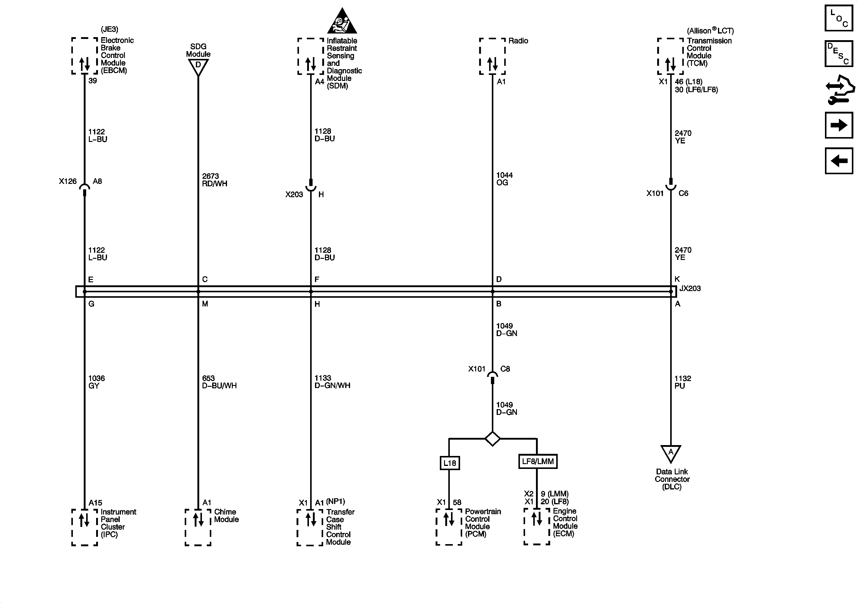
Figure 2:

Splice Pack SP203


Object Number: 2076372  Size: FS
Figure 3:

High Speed GMLAN


Object Number: 2076374  Size: FS
Figure 4:

CAN Connector Power and Ground - L18 w/JE4, LF6, LF8


Object Number: 2076377  Size: FS
Figure 5:

Serial Data Gateway (SDG) - L18 w/JE4, LF6, LF8


Object Number: 2076378  Size: FS
Figure 6:

J1939 Serial Data, 1 of 2 - L18 w/JE4, LF6, LF8


Object Number: 2076379  Size: FS
Figure 7:

J1939 Serial Data, 2 of 2 - L18 w/JE4, LF6, LF8


Object Number: 2076380  Size: FS