GM Service Manual Online
For 1990-2009 cars only
Makes
🢒
Chevrolet
🢒
2004
🢒
Malibu
🢒
Vehicle Control Systems
🢒
Vehicle DTC Information
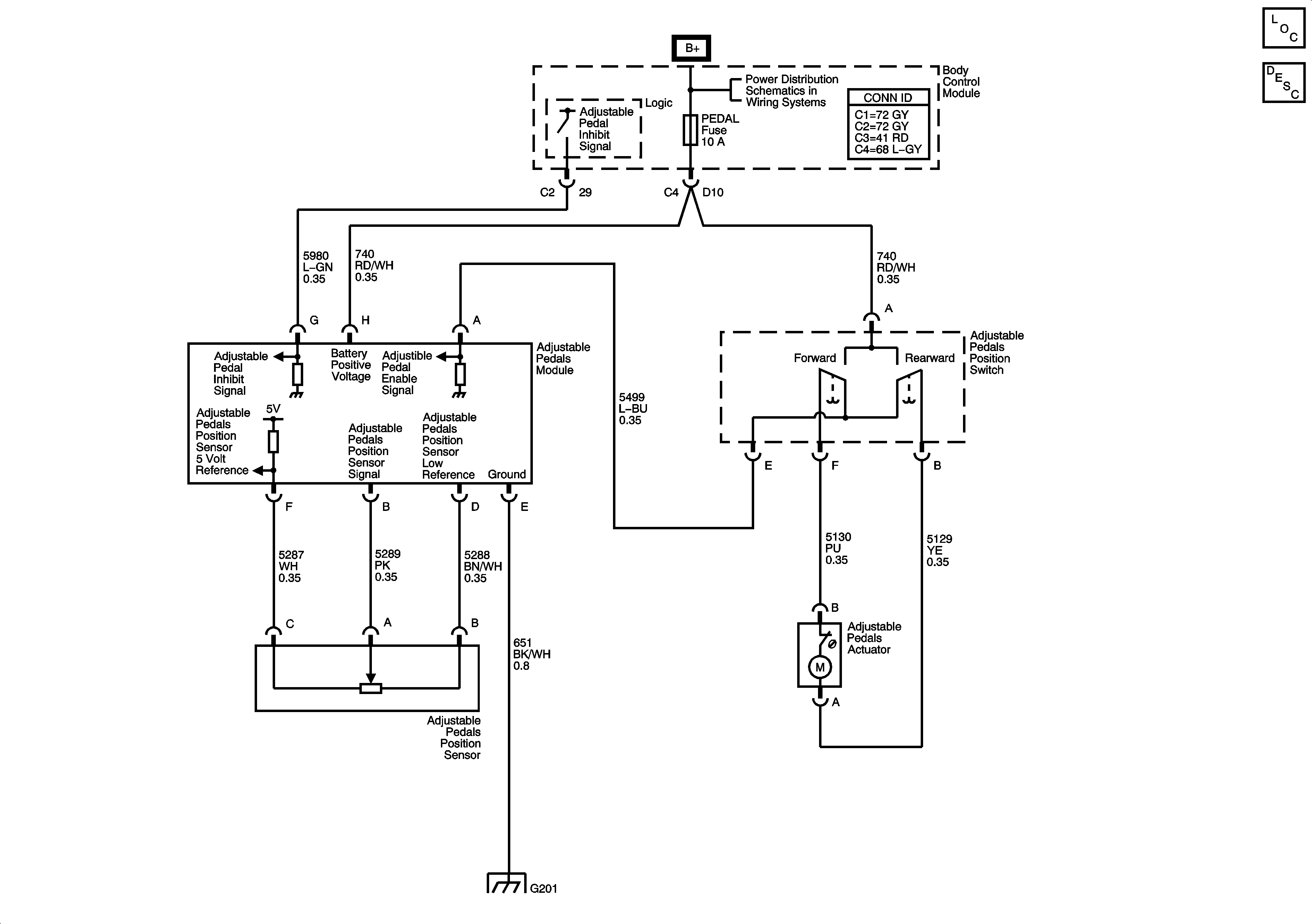
🢒 Adjustable Pedal Schematics
Master Electrical Component List
Adjustable Pedals Description and Operation
BCM - ONSTAR, PEDAL and POWER MIRRORS Fuses
BCM - ONSTAR, PEDAL and POWER MIRRORS Fuses
G201