GM Service Manual Online
For 1990-2009 cars only
Makes
🢒
Chevrolet
🢒
2008
🢒
Malibu Classic
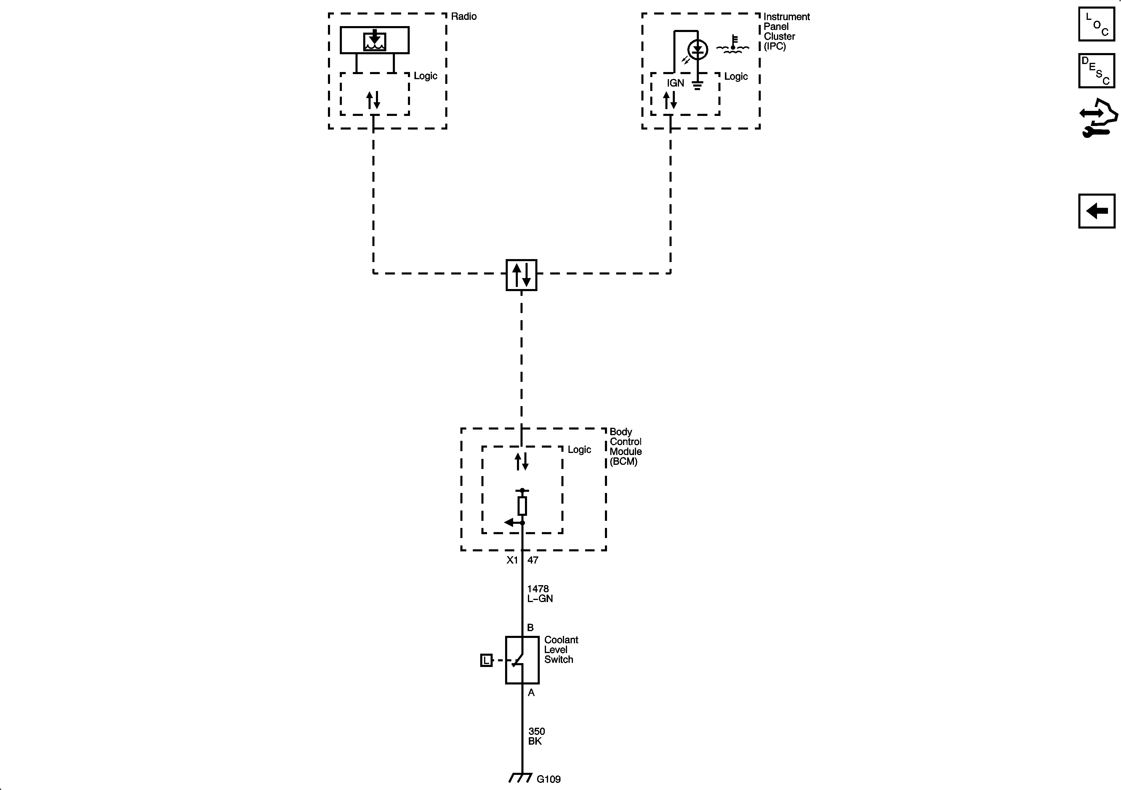
🢒 Coolant Indicators
Coolant Indicators
Cooling Indicators
Master Electrical Component List
Cooling Fan Description and Operation
Control Module References
Cooling Fans