GM Service Manual Online
For 1990-2009 cars only
Makes
🢒
Chevrolet
🢒
2000
🢒
S10 Pickup - 2WD
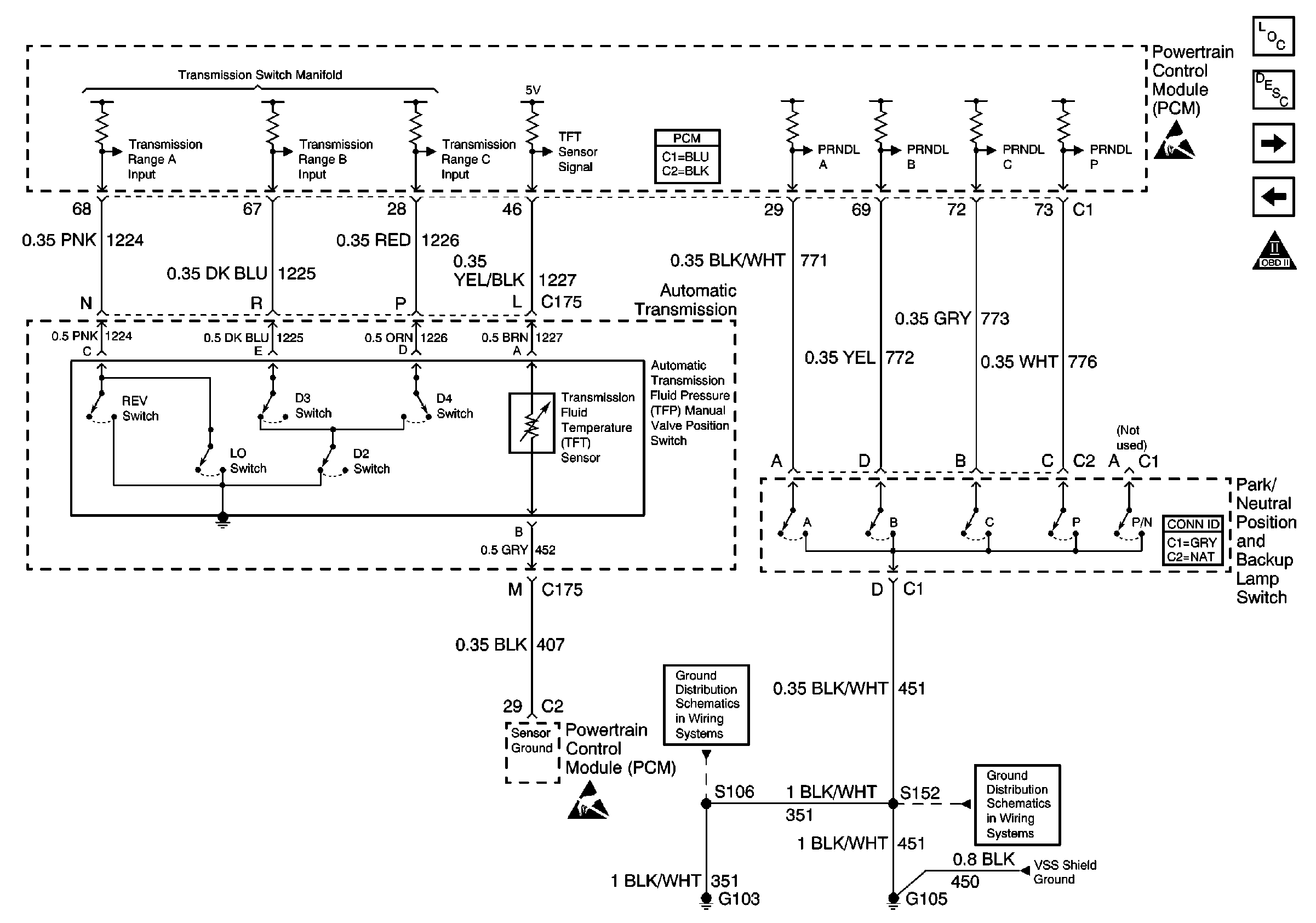
🢒 Switch Inputs and PNP Switch (2.2L)
Switch Inputs and PNP Switch (2.2L)
Switch Inputs and PNP Switch (2.2L)
Automatic Transmission Components
Electronic Component Description
Brake Switch, VSS Inputs (2.2L)
Valve Controls (2.2L)
OBD II Symbol Description Notice
Powertrain Control Module Connector End Views
Handling ESD Sensitive Parts Notice
Handling ESD Sensitive Parts Notice
G103 and G105 (2.2L)
Shift Lock Control Connector End Views
G103 and G105 (2.2L)
Brake Switch, VSS Inputs (2.2L)