GM Service Manual Online
For 1990-2009 cars only

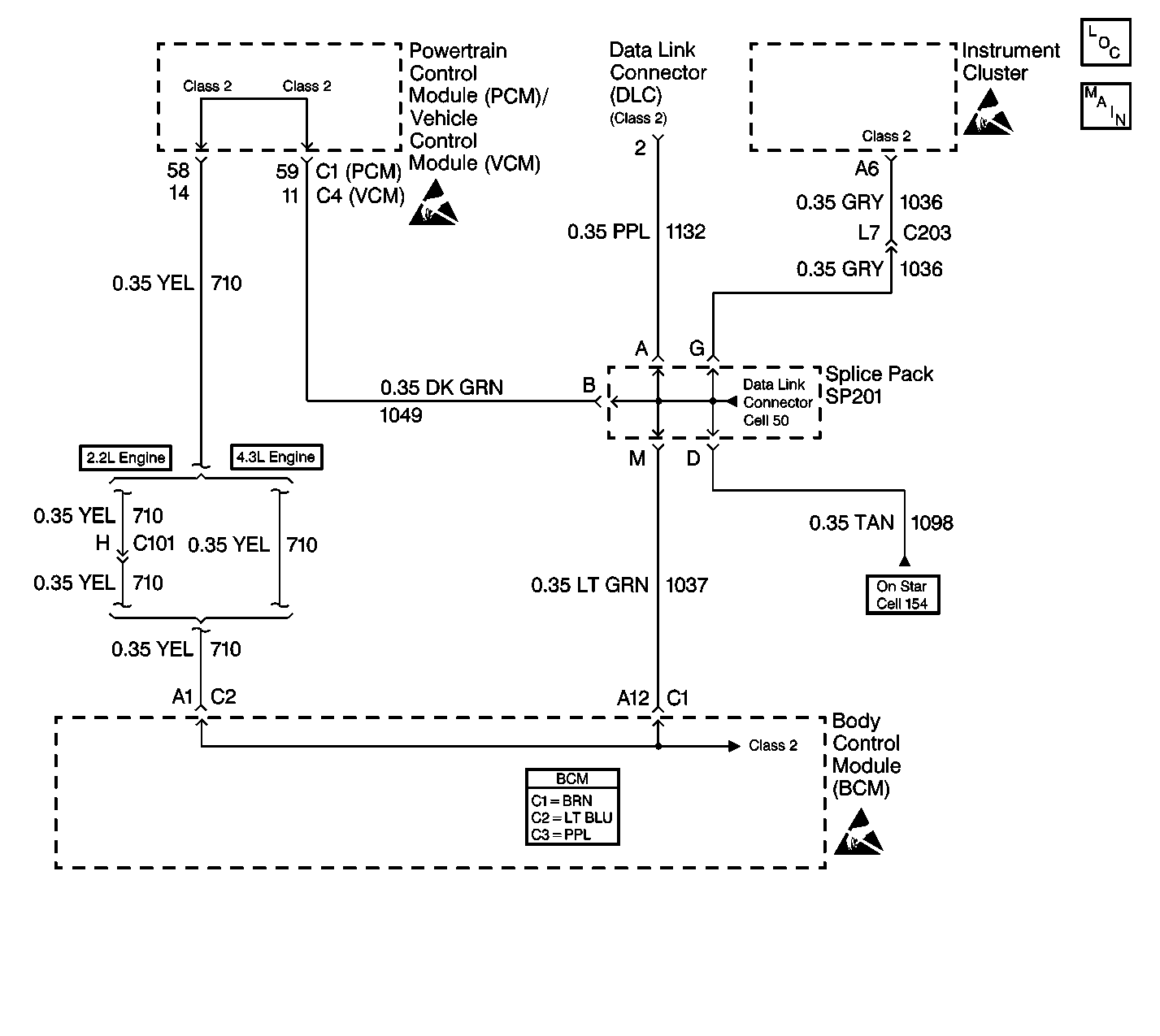
Object Number: 497974  Size: LF

Circuit Description

Operating information and commands are exchanged among the modules on the class 2 serial data circuit. If a critical operating parameter is not received, a module will use a default value. When a module receives a critical operating parameter message from the BCM, the receiving module monitors communication with the BCM. The BCM must send a NODE ALIVE message every 2 seconds. If more than 5 seconds pass without a NODE ALIVE message from the BCM, DTC U1064 will be set by the module that should have received the message.

Conditions for Setting the DTC

    • The voltage supplied to the module is in the normal operating range (approximately 9-16 volts).
    • DTC U1300 and DTC U1301 do not have a current status.
    • The vehicle power mode (ignition switch position) requires serial data communication to occur.
    • A message from the BCM is not detected for the past 5 seconds.

Conditions for Clearing the DTC

    • A current DTC will clear when a NODE ALIVE message from the BCM is detected on the class 2 serial data circuit or at the end of the current ignition cycle.
    • A history DTC will clear upon receipt of a scan tool CLEAR DTCs command.

Step

Action

Value(s)

Yes

No

1

Perform the BCM Diagnostic System Check. Refer to Diagnostic System Check - Body Control System in Body Control System.

Was a repair completed when the BCM Diagnostic System Check was performed?

--

Go to Step 6

Go to Step 2

2

Inspect splice pack SP201 for a poor connection. Repair as necessary.

Did you find and repair a poor connection?

--

Go to Step 6

Go to Step 3

3

  1. Inspect BCM terminal A1 of connector C2 and terminal A12 of connector C1.
  2. Correct any poor connections or insufficient terminal tension.

Did you find and repair a poor connection or defective terminal?

--

Go to Step 6

Go to Step 4

4

Test the class 2 serial data circuit for an open between the BCM and SP201. Repair as necessary.

Did you find and repair a condition?

--

Go to Step 6

Go to Step 5

5

Replace the BCM.

Is the repair complete?

--

Go to Step 8

--

6

  1. Install a scan tool.
  2. Turn the ignition switch to the ON position. Do not start the engine.
  3. Select the DISPLAY DTCs function for the BCM.

Does the scan tool display any DTCs that do not begin with a U?

--

Go to the Applicable DTC Table

Go to Step 7

7

Clear the DTCs using the scan tool.

Did you clear the DTCs?

--

Go to Step 8

--

8

Select the DISPLAY DTCs function for the BCM.

Does the scan tool display any DTCs that do not begin with a U?

--

Go to the Applicable DTC Table

Go to Step 9

9

  1. Clear the DTCs using the scan tool.
  2. Continue diagnosing the or clearing the DTCs until all of the modules have been diagnosed and all of the DTCs are cleared.

Are all of the DTCs cleared?

--

System OK

--