GM Service Manual Online
For 1990-2009 cars only
Makes
🢒
Chevrolet
🢒
1999
🢒
S10 Pickup - 4WD
🢒
Body and Accessories
🢒
Doors
🢒 Outside Rearview Mirror Schematics
Figure
1:
Cell 147: Outside Rear View Mirrors
Power Door Systems Components
Outside Mirrors Circuit Description
Cell 147: Outside Rear View Mirror Switch
Cell 10: HVAC I Fuse
Cell 10: HVAC I Fuse
Cell 10: IGN E Fuse and A/C Compressor, Rear Defogger, DRL Relays
Cell 10: IGN E Fuse and A/C Compressor, Rear Defogger, DRL Relays
Power and Grounding Connector End Views
Cell 61
HVAC Connector End Views
Cell 117: ILLUM Fuse 12
Cell 14: G203 and G204 (Utility w/ Manual A/C)
Cell 14: G202 (Utility)
Cell 14: G205 and G206 (Utility)
Cell 14: G205 and G206 (Utility)
Handling ESD Sensitive Parts Notice
Handling ESD Sensitive Parts Notice
Figure
2:
Cell 147: Outside Rear View Mirror Switch
Cell 10: MIR/LKS, FOG LP Fuses and DRL, Headlamp Power Relays
Power and Grounding Connector End Views
Cell 10: MIR/LKS, FOG LP Fuses and DRL, Headlamp Power Relays
Cell 130: Door Lock Switch Inputs
Cell 130: Door Lock Switch Inputs
Cell 14: S501 (Utility)
Power Door Systems Components
Outside Mirrors Circuit Description
Cell 147: Outside Rear View Mirrors
Cell 114: Inside Rear View Mirror or Driver Information Display Module
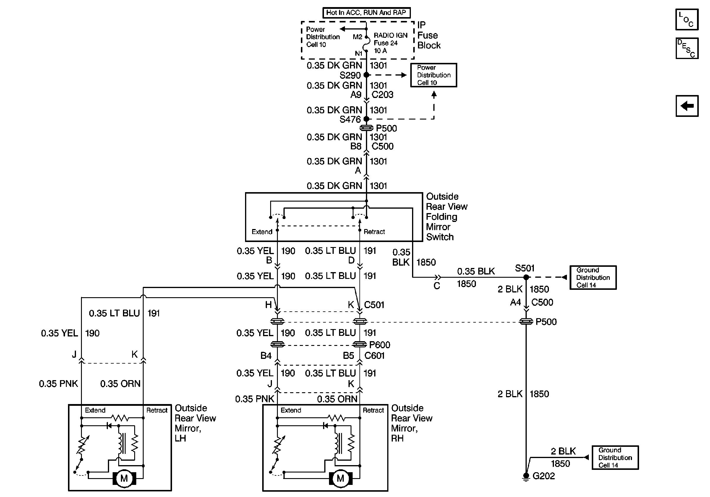
Figure
3:
Cell 147: Power Folding Mirrors
Power Door Systems Components
Outside Mirrors Circuit Description
Cell 147: Outside Rear View Mirror Switch
Cell 10: RDO IGN and STR WHL RDO IGN Fuses
Cell 10: RDO IGN and STR WHL RDO IGN Fuses
Cell 14: S501 (Utility)
Cell 14: G202 (Utility)