GM Service Manual Online
For 1990-2009 cars only
Makes
🢒
Chevrolet
🢒
2003
🢒
SSR
🢒
Brakes
🢒
Antilock Brake System
🢒 Antilock Brake System Schematics
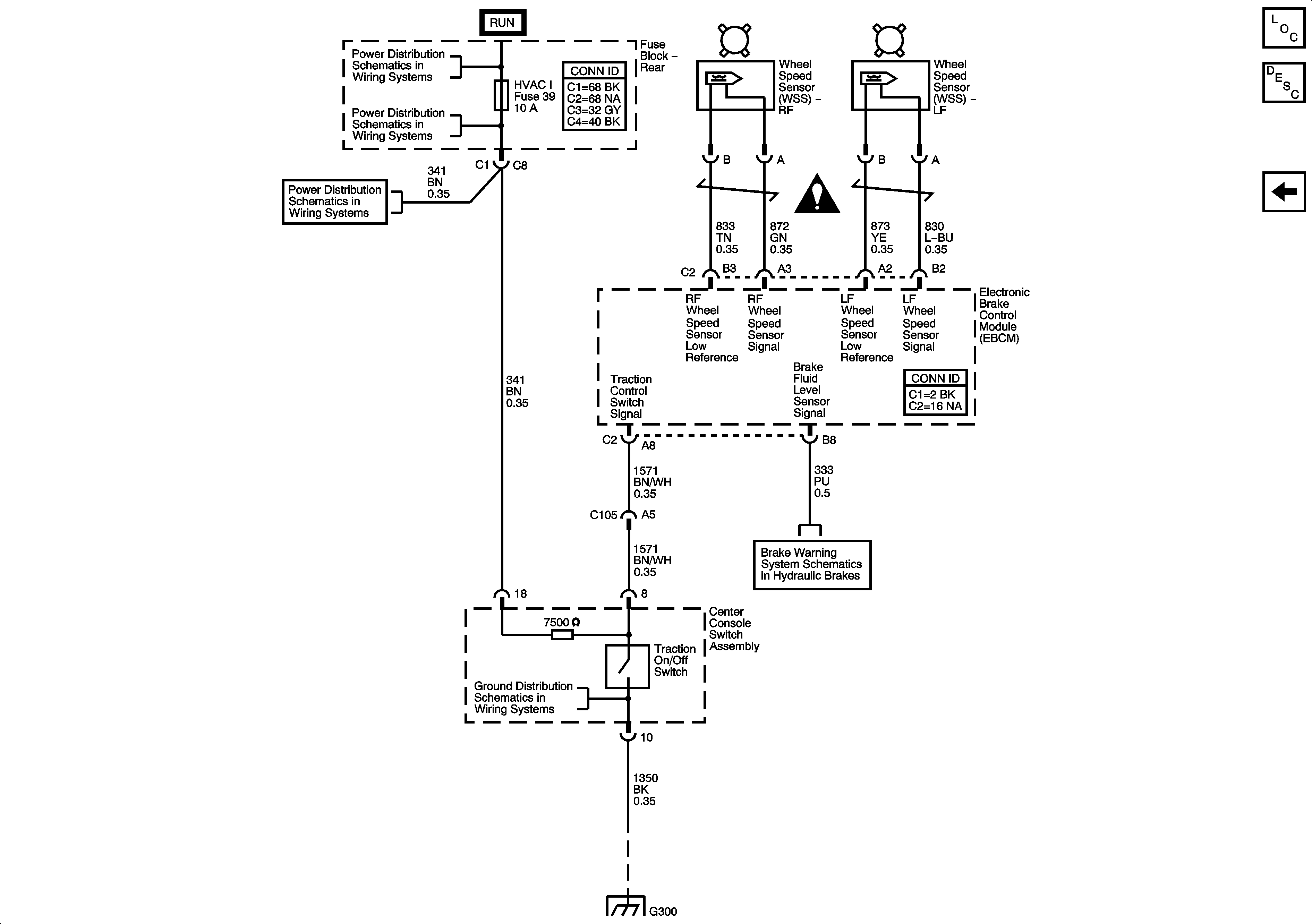
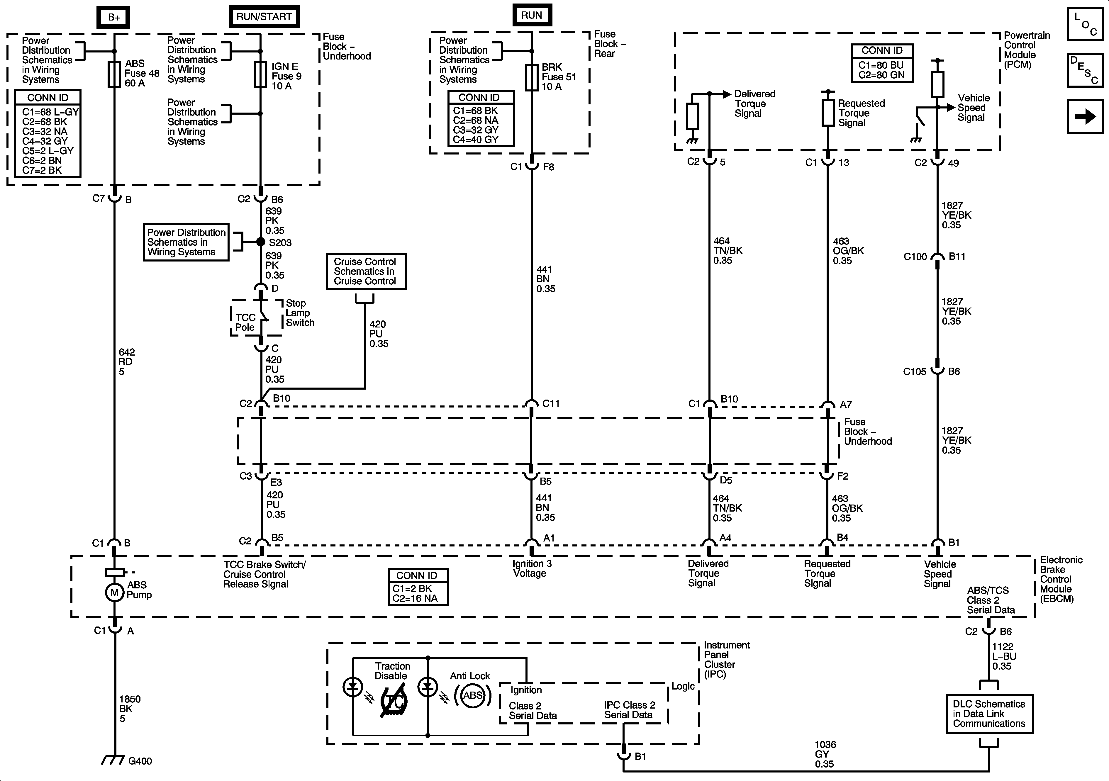
Figure
1:
Power, Ground and Electronic Brake Control Module
Master Electrical Component List
ABS Description and Operation
Wheel Speed Sensors and Traction Control
B+ BUS - Fuse Block Underhood
ACCY/RUN and RUN/START BUS BAR
IGN E, TBC IGN 1, BACK UP and BTSI Fuses
IGN E, TBC IGN 1, BACK UP and BTSI Fuses
Stop Lamp Switch, EBCM and PCM
ACCY/RUN and RUN/START BUS BAR
Data Link Connector (DLC) Schematics
Figure
2:
Wheel Speed Sensors and Traction Control
Master Electrical Component List
ABS Description and Operation
Power, Ground and Electronic Brake Control Module
ACCY/RUN and RUN/START BUS BAR
HVAC I and BRK Fuses
HVAC I and BRK Fuses
Antilock Brake System Schematic Icons
Brake Warning System Schematics
G300