GM Service Manual Online
For 1990-2009 cars only
Makes
🢒
Chevrolet
🢒
2004
🢒
SSR
🢒 Blower Motor and Mode Controls
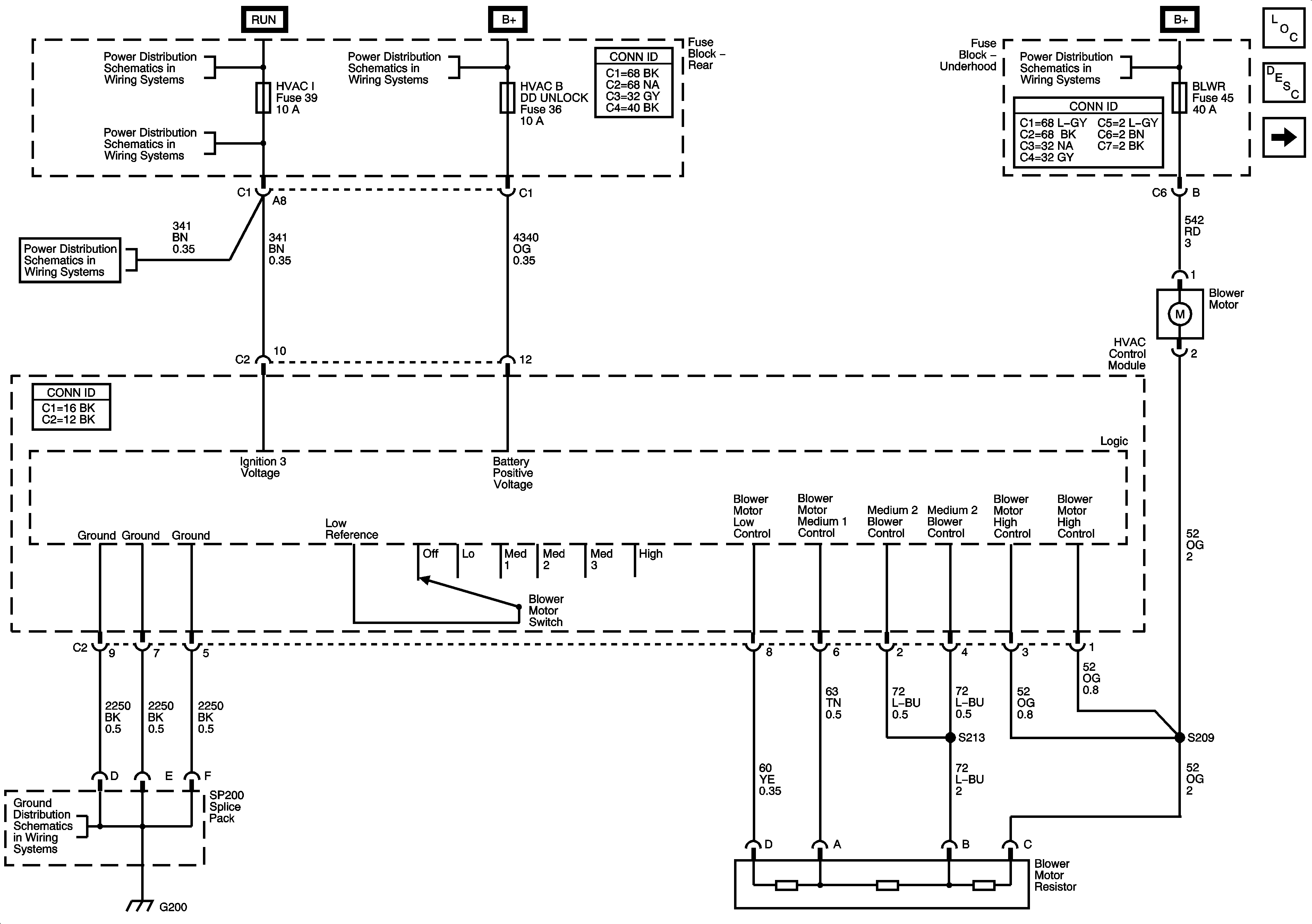
Blower Motor and Mode Controls
Blower Motor and Mode Controls
Master Electrical Component List
Air Delivery Description and Operation
A/C Compressor Control
ACCY/RUN/START, RUN and START Bus Bars
HVAC I and BRK Fuses
G100, G102
B+ Bus - Fuse Block Rear
B+ Bus - Fuse Block Underhood
G200