GM Service Manual Online
For 1990-2009 cars only
Makes
🢒
Chevrolet
🢒
2007
🢒
Silverado Classic - 2WD
🢒 UQ7 except Y91
UQ7 except Y91
UQ7 except Y91
Master Electrical Component List
Control Module References
Y91
Except UQ7 and Y91
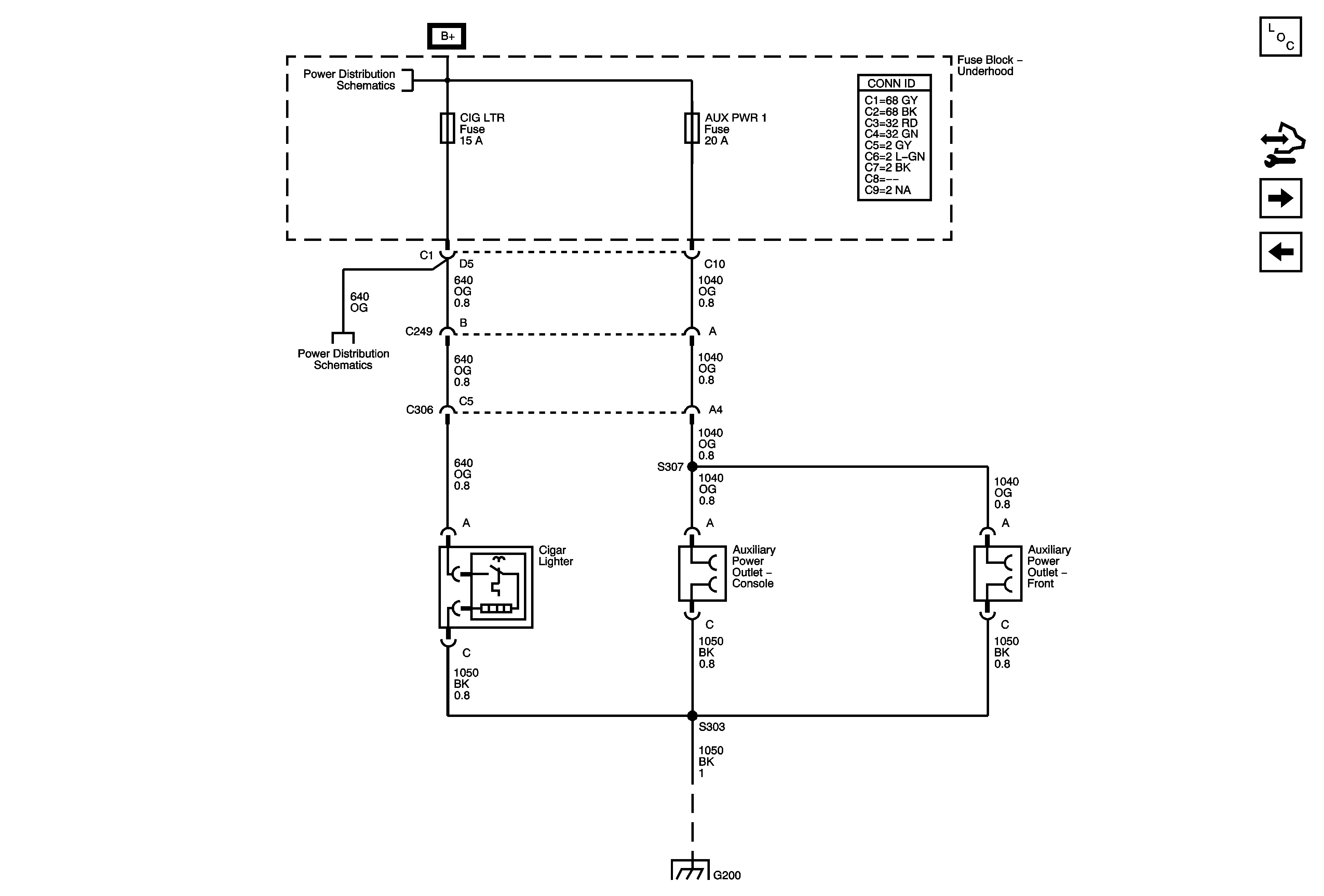
B+ Bus Bar
CIG LTR, EAP, INFO, and RVC Fuses
G200 - 2 of 2