GM Service Manual Online
For 1990-2009 cars only
Makes
🢒
Chevrolet
🢒
2007
🢒
Silverado - 4WD
🢒 Hydraulic Brake Schematics
Hydraulic Brake Schematics
Master Electrical Component List
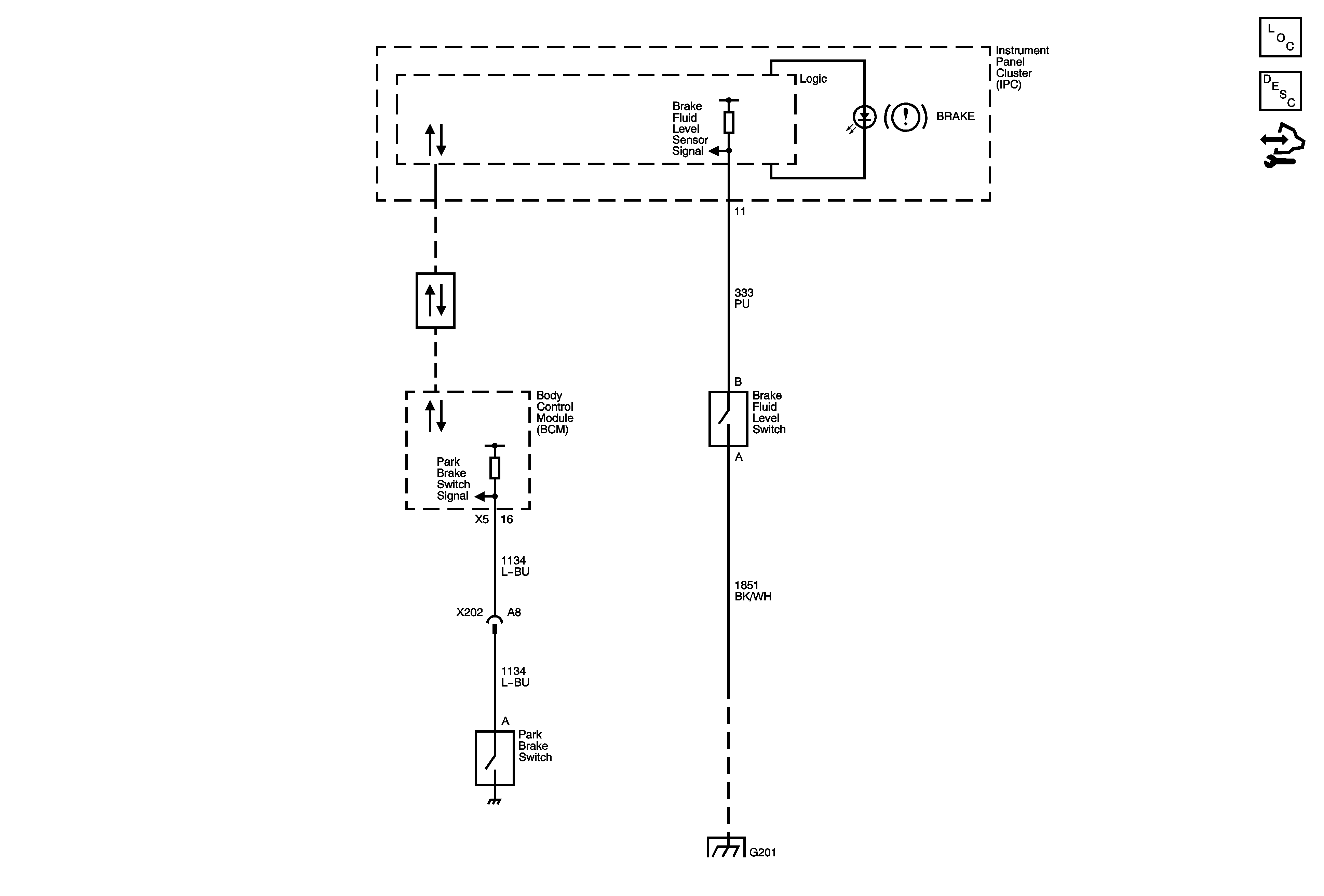
Brake Warning System Description and Operation
Control Module References
Low Speed Bus - 1 of 3
G201 1 of 2