GM Service Manual Online
For 1990-2009 cars only

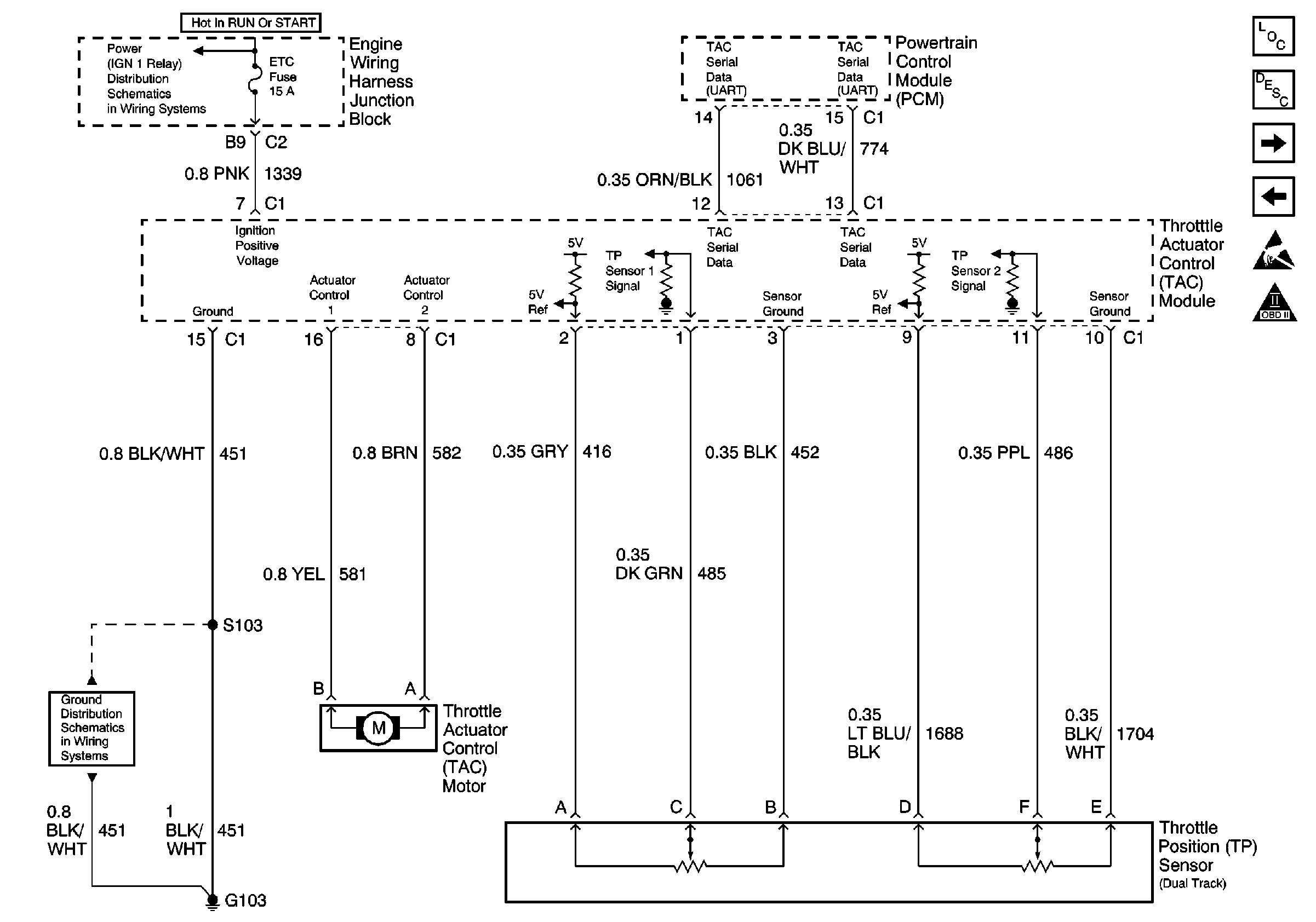
Refer to Engine Controls Schematics

PCM, TP Sensor, TAC Motor, TAC Module


Object Number: 449880  Size: FS
Engine Controls Components
Evaporative Emission Control System Operation Description
Control Module, Cruise Control Switch, APP Sensor
CPP, EBCM, Suspension Control Module, Stoplamp Switch
Handling ESD Sensitive Parts Notice
OBD II Symbol Description Notice
Ground Distribution Schematics
Power Distribution Schematics
.

Circuit Description

The throttle position (TP) sensor is mounted on the throttle body assembly . The sensor is actually 2  individual TP sensors within one housing. Two separate signal, ground, and 5 volt reference circuits are used to connect the TP sensor assembly and the throttle actuator control (TAC) Module. The 2 sensors have opposite functionality. The TP sensor 1 signal voltage increases as the throttle opens, from below 1.0 volt at 0 percent throttle to above 3.5 volts at 100 percent throttle. The TP sensor 2 signal voltage decreases from around 3.8 volts at 0 percent throttle to below 1.0 volt at 100 percent throttle. Also, observe that the signal circuit for TP sensor 1 is pulled up to 5 volts and that the signal circuit for TP sensor 2 is pulled to ground within the TAC module.

Conditions for Running the DTC

    • No active TAC module DTCs
    • Ignition switch in the crank or run position.
    • Ignition voltage is more than 5.23 volts.

Conditions for Setting the DTC

    • TP sensor 2 disagrees with TP sensor 1 by more than 7.5 percent.
    • All of the above conditions are met for less than 1 second.

Action Taken When the DTC Sets

    • The powertrain control module (PCM) stores the DTC information into memory when the diagnostic runs and fails.
    • The PCM illuminates the malfunction indicator lamp (MIL) when the diagnostic runs and fails.
    • The PCM records the operating conditions at the time the diagnostic fails. The PCM stores this information in the Freeze Frame and Failure Records.
    • If no other TAC system DTCs are set, the TAC system operates in REDUCED ENGINE POWER mode. If certain TAC system DTCs are set at the same time, the TAC system either defaults to a more tightly restricted mode of operation if the TAC determines that limited safe operation is possible, or the TAC commands the engine to shut down.
    • The driver information center displays a message.

Conditions for Clearing the MIL/DTC

    • The PCM turns OFF the malfunction indicator lamp (MIL) after 3 consecutive ignition cycles that the diagnostic runs and does not fail.
    • A last test failed, or current DTC, clears when the diagnostic runs and does not fail.
    • A history DTC clears after 40 consecutive warm-up cycles, if no failures are reported by this or any other emission related diagnostic.
    • Use a scan tool in order to clear the MIL and the DTC.

Diagnostic Aids

Important: 

   • Remove any debris from the PCM or TAC module connector surfaces before servicing the PCM or TAC module. Inspect the PCM or TAC module connector gaskets when diagnosing or replacing the modules. Ensure that the gaskets are installed correctly. The gaskets prevent contaminate intrusion into the PCM or TAC modules.
   • For any test that requires probing the PCM or a component harness connector, use the J 35616 connector test adapter kit . Using this kit prevents damage to the harness or component terminals. Refer to Using Connector Test Adapters in Wiring Systems.

    • The following may cause an intermittent:
       - Poor connections--refer to Testing for Intermittent Conditions and Poor Connections in Wiring Systems.
       - Corrosion
       - Misrouted harness
       - Rubbed through wire insulation
       - Broken wire inside the insulation
    • Inspect the TAC module connectors for signs of water intrusion. When this occurs, multiple DTCs should be set and no circuit or component conditions can be located.
    • The APP sensor 1 and the TP sensor 1 5-volt reference circuits are internally connected within the TAC module.
    •  The APP sensor 2 and the TP sensor 2 5-volt reference circuits are internally connected within the TAC module.
    • When the TAC module detects a condition within the TAC system, more than one TAC system related DTC may set. This is due to the many redundant tests run continuously on this system. Locating and repairing one individual condition may correct more than one DTC. Keep this in mind when reviewing captured DTC info.
    • For an intermittent, refer to Symptoms .

Test Description

The numbers below refer to the step numbers on the diagnostic table.

  1. Disconnect the throttle actuator connector before inserting fingers into the throttle bore. Re-install the air inlet duct after repairs are completed.

  2. This step determines what TP sensor circuit caused the DTC.

  3. This step tests the TP sensor 1 5.0 volt reference circuit for high resistance. The TP sensor 2 voltage should display 5.0 volts when you jumper the two circuits together. Observe, the use of TP sensor 2 signal is only for diagnosing the TP sensor 1 5.0 volt reference circuit.

  4. This step tests the TP sensor 1 signal and ground circuit.

  5. This step verifies the TP sensor 1 signal circuit. The voltage should go to 0 volts when grounded. Inspect the signal circuit for high resistance if the voltage does not go to 0 volts.

  6. This step tests the TP sensor 2 5.0 volt reference circuit for high resistance. The TP sensor 2 voltage should display 5.0 volts when you jumper the two circuits together.

  7. This step tests for the TP sensor signal circuit. The TP sensor 2 voltage should display 5.0 volts.

  8. When the TAC module detects a problem within the TAC system, more than one TAC system related DTC may set. This is due to the many redundant tests run continuously on this system. Locating and repairing one individual problem may correct more than one DTC. Keep this in mind when reviewing captured DTC info.

DTC P1221 - Throttle Position (TP) Sensors 1, 2 Performance

Step

Action

Value(s)

Yes

No

1

Did you perform the Powertrain On-Board Diagnostic (OBD) System Check?

--

Go to Step 2

Go to Powertrain On Board Diagnostic (OBD) System Check

2

Important: If DTC P1120, P1220, P1515, P1516, and P1518 are also set, refer to the applicable DTC for further diagnosis.

  1. Turn ON the ignition, with the engine OFF.
  2. Monitor the TP sensors disagree parameter using the scan tool.

Does the scan tool indicate NO?

--

Go to Step 3

Go to Step 5

3

  1. Remove the air inlet duct from the throttle body assembly.
  2. Important: Disconnecting the throttle actuator motor connector will cause additional DTCs to set.

  3. Disconnect the throttle actuator harness connector.
  4. Open the throttle blade to wide open throttle (WOT) by hand and then return the blade to close the throttle. Stop briefly at approximately 25 percent, 50 percent, 75 percent and 100 percent in each direction. Monitor the throttle sensors disagree parameter at each stop.

Does the scan tool change from NO to YES while rotating the throttle blade?

--

Go to Step 25

Go to Step 4

4

  1. Reconnect the throttle actuator harness connector.
  2. Turn OFF the ignition for 15 seconds.
  3. Turn ON the ignition, with the engine OFF.
  4. Select the Diagnostic Trouble Code (DTC) option using the scan tool.
  5. Move the harness and the related connectors while monitoring the DTC status.

Does the harness movement cause this DTC to set?

--

Go to Step 14

Go to Diagnostic Aids

5

  1. Turn OFF the ignition.
  2. Remove the air inlet duct from the throttle body assembly.
  3. Important: Disconnecting the throttle actuator motor connector causes additional DTCs to set.

  4. Disconnect the throttle actuator harness connector.
  5. Turn ON the ignition, with the engine OFF.
  6. Close the throttle blade completely by hand while observing the TP sensor 1 voltage on the scan tool.

Is the voltage within the specified range?

0.13-0.67 V

Go to Step 9

Go to Step 6

6

  1. Disconnect the TP sensor electrical connector.
  2. Jumper the TP sensor 1 5.0 volt reference circuit to the TP sensor 2 signal circuit.
  3. Monitor the TP sensor 2 voltage using a scan tool.

Is the TP sensor 2 voltage at the specified value?

5.0 V

Go to Step 7

Go to Step 12

7

  1. Jumper the TP sensor 1 signal circuit to the TP sensor 1 ground circuit.
  2. Monitor the TP sensor 1 voltage using a scan tool.

Is the TP sensor 1 voltage at the specified value?

0 V

Go to Step 24

Go to Step 8

8

  1. Jumper the TP sensor 1 signal circuit to the battery ground circuit.
  2. Monitor the TP sensor 1 voltage using a scan tool.

Is the TP sensor 1 voltage at the specified value?

0 V

Go to Step 16

Go to Step 14

9

  1. Disconnect the TP sensor electrical connector.
  2. Jumper the TP sensor 2 5.0 volt reference circuit to the TP sensor 2 signal circuit.
  3. Monitor the TP sensor 2 voltage using a scan tool.

Is the TP sensor 2 voltage at the specified value?

5 V

Go to Step 11

Go to Step 10

10

  1. Jumper the TP sensor 2 signal circuit to the TP sensor 1 5.0 volt reference circuit.
  2. Monitor the TP sensor 2 voltage using a scan tool.

Is the TP sensor 2 voltage at the specified value?

5.0 V

Go to Step 18

Go to Step 20

11

  1. Jumper the TP sensor 1 signal circuit to the TP sensor 2 ground circuit.
  2. Monitor the TP sensor 1 voltage using a scan tool.

Is the TP sensor 1 voltage at the specified value?

0 V

Go to Step 24

Go to Step 22

12

  1. Disconnect the TAC module harness connectors. Refer to Electronic Throttle Actuator Control Module Replacement .
  2. Test for continuity of the TP sensor 5.0 volt reference circuit between the TP sensor and the TAC module using the DMM .

Does the DMM indicate a continuity within the specified range?

0-2 ohms

Go to Step 13

Go to Step 27

13

Test for continuity at the TAC module harness between the TP sensor 1 5.0 volt reference circuit and all other circuits in both TAC module connectors using the DMM .

Does the DMM indicate continuity between any other circuit?

--

Go to Step 26

Go to Step 28

14

  1. Disconnect the TAC module harness connectors. Refer to Electronic Throttle Actuator Control Module Replacement .
  2. Test for continuity of the TP sensor 1 signal circuit between the TP sensor and the TAC module using the DMM .

Does the DMM indicate a continuity within the specified range?

0-2 ohms

Go to Step 15

Go to Step 27

15

Test for continuity at the TAC module harness between the TP sensor 1 signal circuit and all other circuits in both TAC module connectors using the DMM .

Does the DMM indicate continuity between any other circuit?

--

Go to Step 26

Go to Step 28

16

  1. Disconnect the TAC module harness connectors. Refer to Electronic Throttle Actuator Control Module Replacement .
  2. Test for continuity of the TP sensor 1 ground circuit between the TP sensor and the TAC module using the DMM .

Does the DMM indicate a continuity within the specified range?

0-2ohms

Go to Step 17

Go to Step 27

17

Test for continuity at the TAC module harness between the TP sensor 1 ground circuit and all other circuits in both TAC module connectors using the DMM .

Does the DMM indicate continuity between any other circuit?

--

Go to Step 26

Go to Step 28

18

  1. Disconnect the TAC module harness connectors. Refer to Electronic Throttle Actuator Control Module Replacement .
  2. Test for continuity of the TP sensor 5.0 volt reference circuit between the TP sensor and the TAC module using the DMM .

Does the DMM indicate a continuity within the specified range?

0-2 ohms

Go to Step 19

Go to Step 27

19

Test for continuity at the TAC module harness between the TP sensor 2 5.0 volt reference circuit and all other circuits in both TAC module connectors using the DMM .

Does the DMM indicate continuity between any other circuit?

0-2 ohms

Go to Step 26

Go to Step 28

20

  1. Disconnect the TAC module harness connectors. Refer to Electronic Throttle Actuator Control Module Replacement .
  2. Test for continuity of the TP sensor 2 signal circuit between the TP sensor and the TAC module using the DMM .

Does the DMM indicate a continuity within the specified range?

0-2ohms

Go to Step 21

Go to Step 27

21

Test for continuity at the TAC module harness between the TP sensor 1 signal circuit and all other circuits in both TAC module connectors using the DMM .

Does the DMM indicate continuity between any other circuit?

--

Go to Step 26

Go to Step 28

22

  1. Disconnect the TAC module harness connectors. Refer to Electronic Throttle Actuator Control Module Replacement .
  2. Test for continuity of the TP sensor 2 ground circuit between the TP sensor and the TAC module using the DMM .

Does the DMM indicate a continuity within the specified range?

0-2 ohms

Go to Step 23

Go to Step 27

23

Test for continuity at the TAC module harness connector between the TP sensor 2 ground circuit and all other circuits in both TAC module connectors using the DMM .

Does the DMM indicate continuity between any other circuit?

--

Go to Step 26

Go to Step 28

24

  1. Inspect for poor connections and terminal tension at the TP sensor connector. Refer to Testing for Intermittent Conditions and Poor Connections in Wiring Systems.
  2. If you find a poor connection, repair the condition as necessary. Refer to Repairing Connector Terminals in Wiring Systems.

Did you find and correct the condition?

--

Go to Step 30

Go to Step 25

25

Replace the throttle body assembly. Refer to Throttle Body Assembly Replacement .

Is the action complete?

--

Go to Step 30

--

26

Repair the circuits that are shorted together. Refer to Wiring Repairs in Wiring Systems.

Is the action complete?

--

Go to Step 30

--

27

Repair the circuit with the high resistance. Refer to Wiring Repairs in Wiring Systems.

Is the action complete?

--

Go to Step 30

--

28

  1. Inspect for poor connections and terminal tension at the TAC module connectors. Refer to Testing for Intermittent Conditions and Poor Connections in Wiring Systems.
  2. If you find a poor connection, repair the condition as necessary. Refer to Repairing Connector Terminals in Wiring Systems.

Did you find and correct the condition?

--

Go to Step 30

Go to Step 29

29

Replace the TAC module. Refer to Electronic Throttle Actuator Control Module Replacement .

Is the action complete?

--

Go to Step 30

--

30

  1. Select the Diagnostic Trouble Code (DTC) option and the Clear DTC Information option using the scan tool.
  2. Idle the engine at the normal operating temperature.
  3. Select the Diagnostic Trouble Code (DTC) option and the Specific DTC option, then enter the DTC number using the scan tool.
  4. Operate the vehicle within the Conditions for Running the DTC as specified in the supporting text, if applicable.

Does the scan tool indicate that this diagnostic ran and passed?

--

Go to Step 31

Go to Step 2

31

Select the Capture Info option and the Review Info option using the scan tool.

Does the scan tool display any DTCs that you have not diagnosed?

--

Go to the applicable DTC table

System OK