GM Service Manual Online
For 1990-2009 cars only
Makes
🢒
Chevrolet
🢒
2008
🢒
TrailBlazer - 2WD
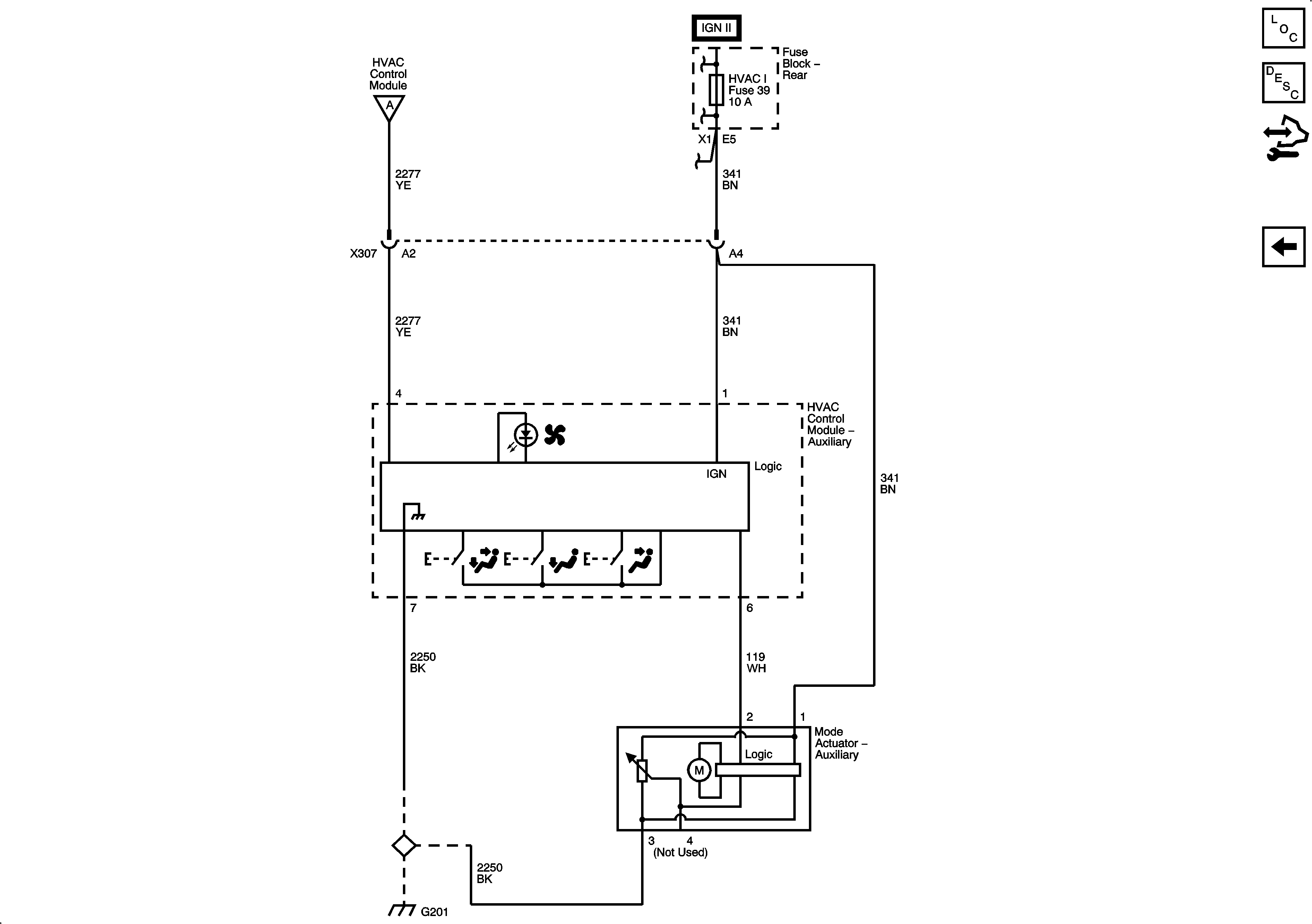
🢒 Rear Mode Controls
Rear Mode Controls
Rear Mode Controls
Master Electrical Component List
Air Delivery Description and Operation
Control Module References
Air Delivery/Temperature Actuators