GM Service Manual Online
For 1990-2009 cars only
Makes
🢒
Chevrolet
🢒
2001
🢒
Venture
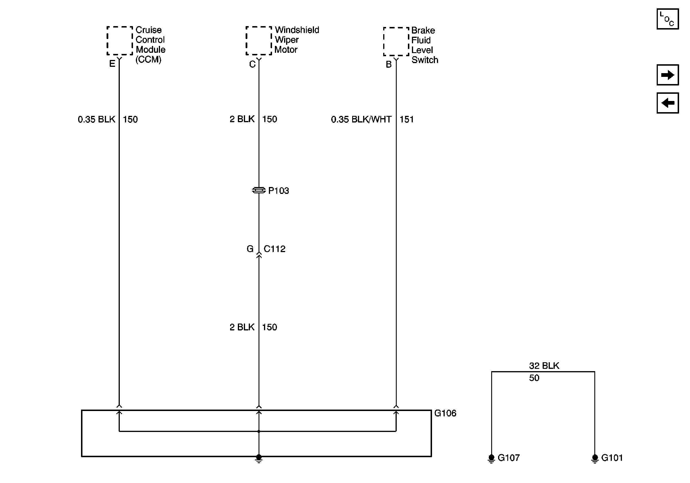
🢒 G101, G106, and G107
G101, G106, and G107
G101, G106, and G107
Master Electrical Component List
G103
G100 and G102