GM Service Manual Online
For 1990-2009 cars only
Makes
🢒
Daewoo
🢒
2009
🢒
G2X
🢒
Transmission
🢒
Automatic Transmission - 5L40-E/5L50-E
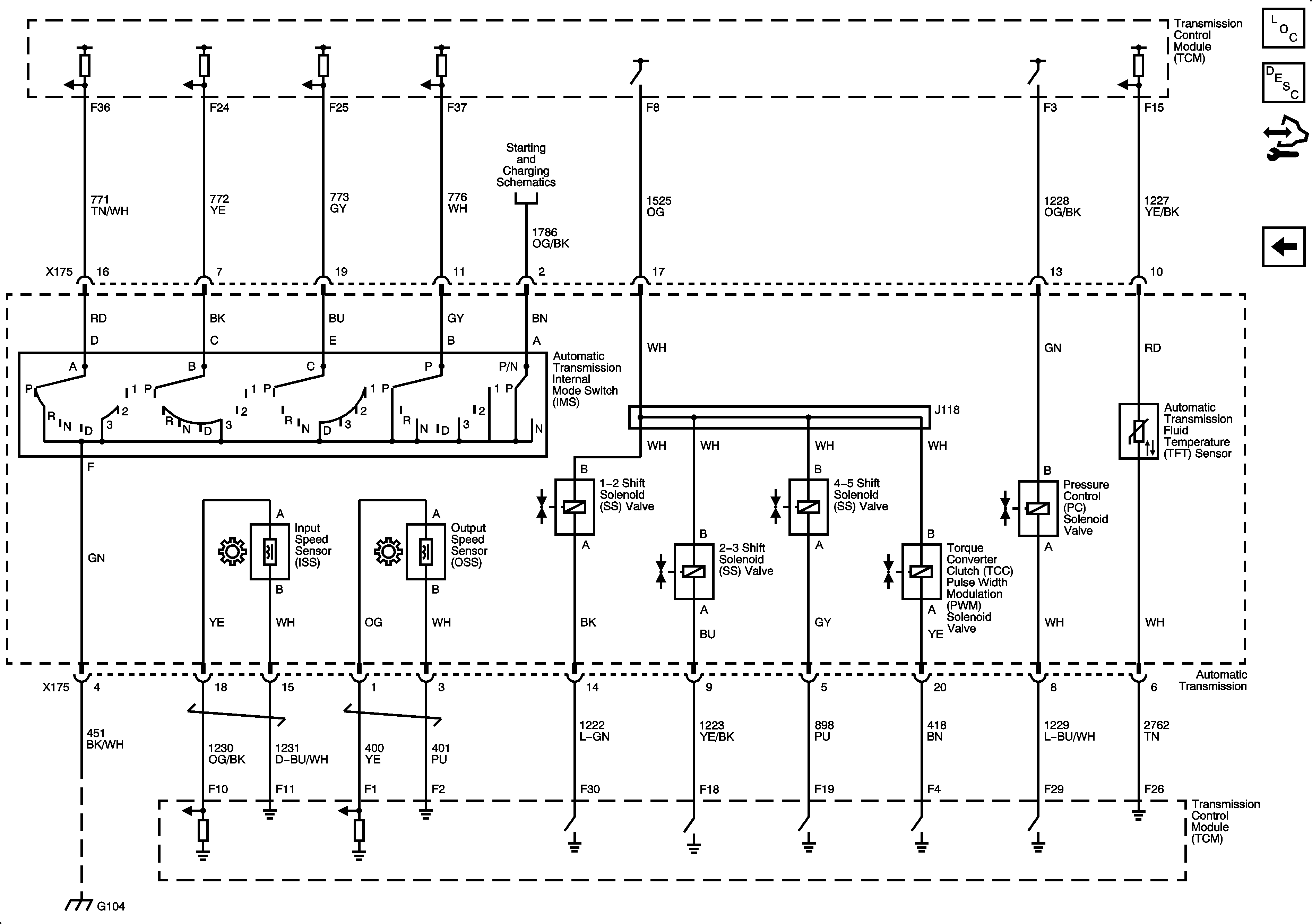
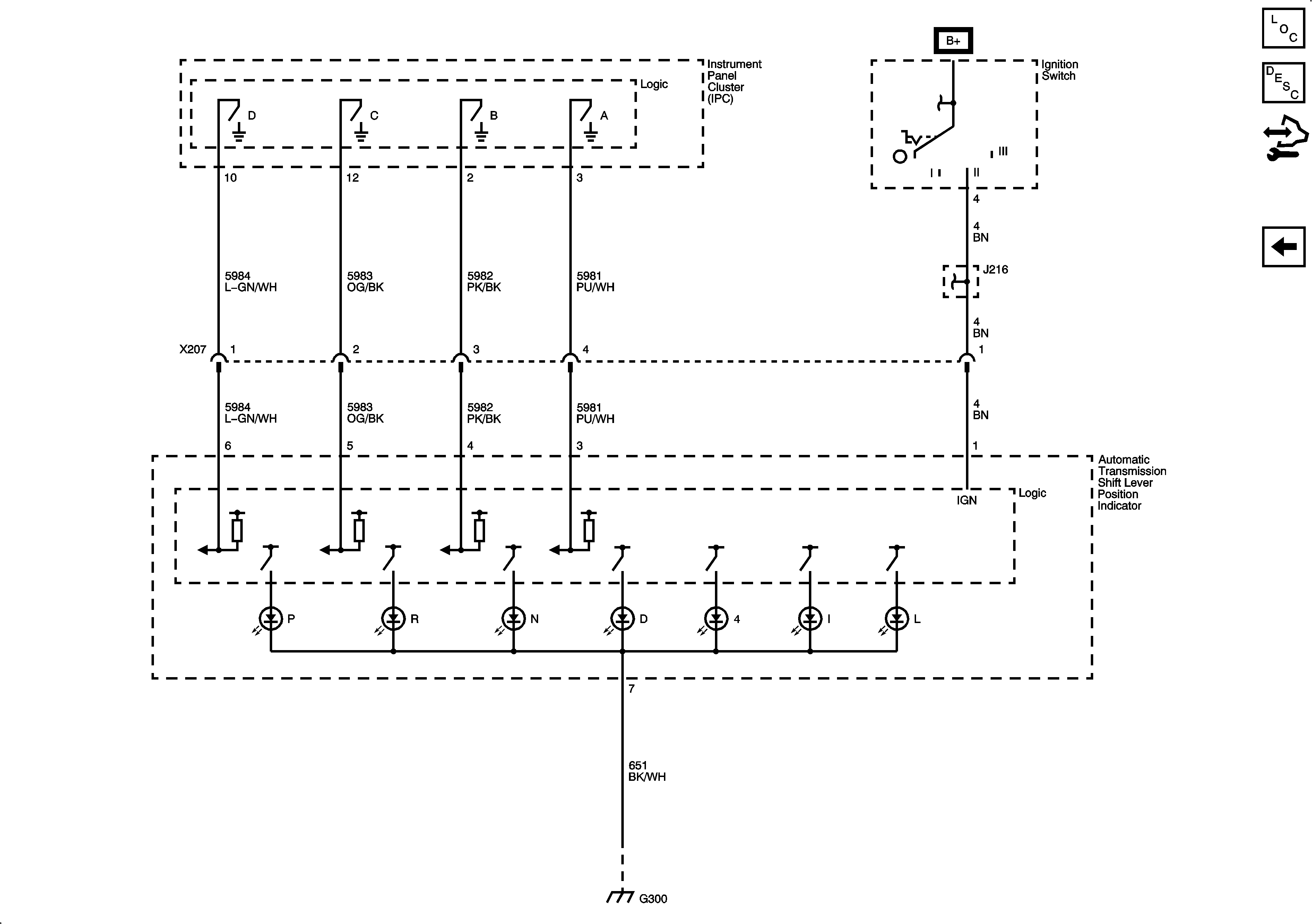
🢒 Automatic Transmission Controls Schematics
Figure
1:
DLC, Ground, MIL, and Power
Figure
2:
Shift Solenoids, TFT, and VSS
Figure
3:
Electronic PRNDL