GM Service Manual Online
For 1990-2009 cars only
Makes
🢒
GMC_Truck
🢒
2007
🢒
Acadia - 2WD
🢒 Module Power and Ground, Subsystem References
Module Power and Ground, Subsystem References
Module Power and Ground, Subsystem References
Master Electrical Component List
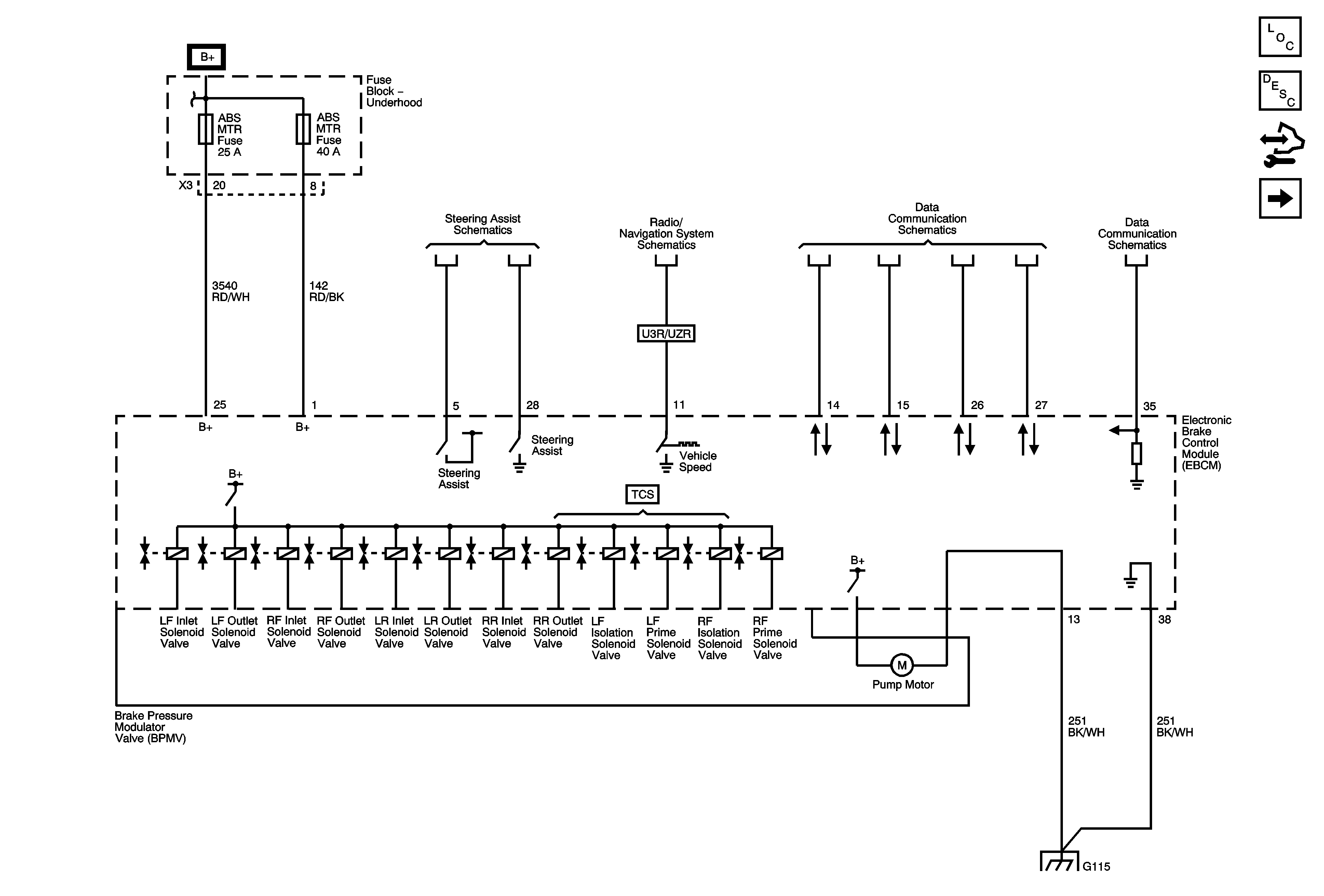
ABS Description and Operation
Control Module References
Sensors
B+ Bus 1 of 2
NV7
Radio Antennas, Data Communication, Lighting, Power, and Vehicle Speed Signal
Data Communication Schematics
Data Communication Schematics
G112, G114, and G115