GM Service Manual Online
For 1990-2009 cars only
Makes
🢒
GMC_Truck
🢒
2008
🢒
Acadia - 2WD
🢒
Diagnostic Navigation
🢒
Vehicle Diagnostic Information
🢒 Remote Function Schematics
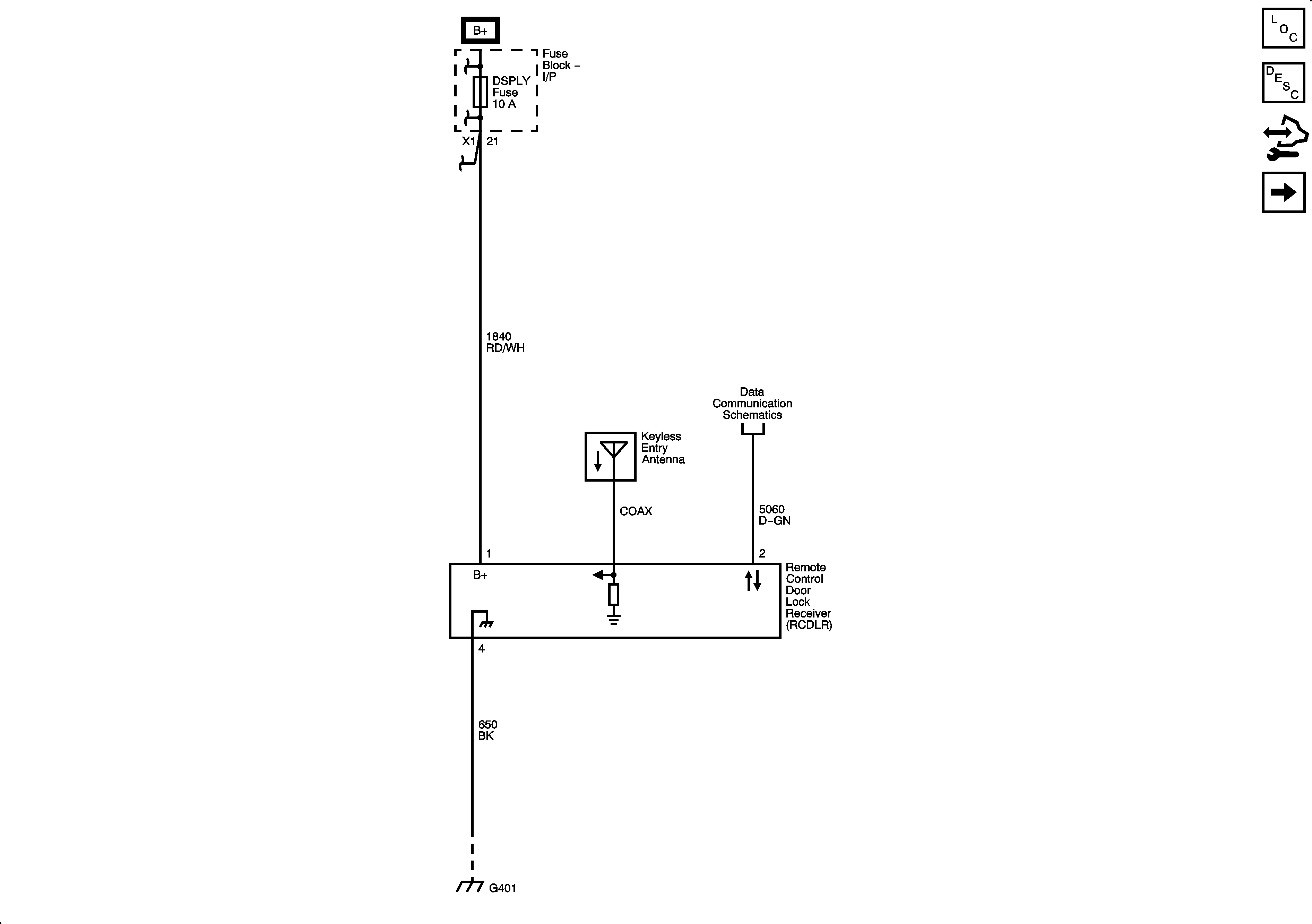
Figure
1:
Keyless Entry - AP3/AP8
Master Electrical Component List
Keyless Entry System Description and Operation (without Accessory 2 Way Remote)
Control Module References
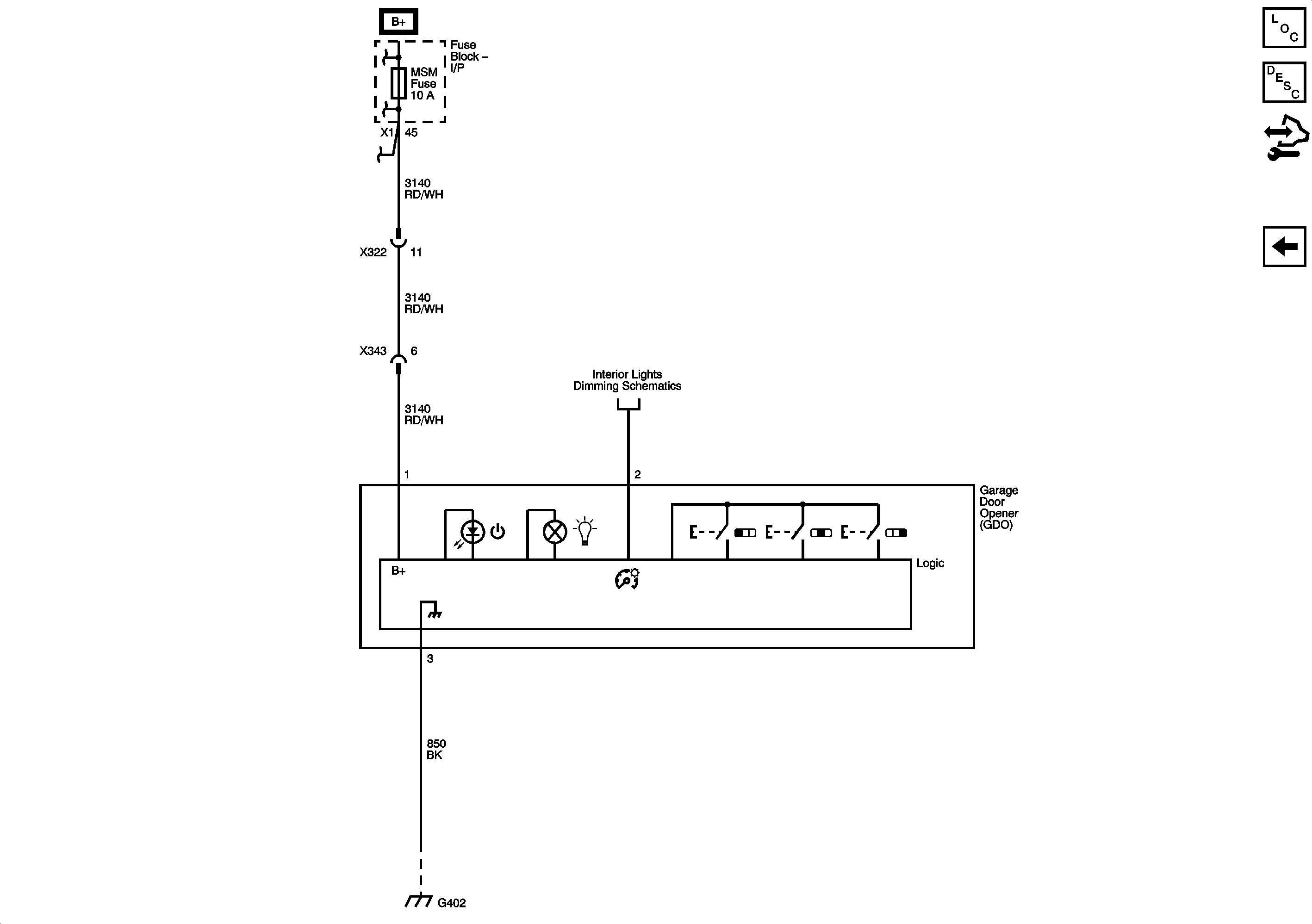
Garage Door Opener - UG1
Figure
2:
Garage Door Opener - UG1
Master Electrical Component List
Garage Door Opener Description and Operation
Control Module References
Keyless Entry - AP3/AP8