GM Service Manual Online
For 1990-2009 cars only
Makes
🢒
GMC_Truck
🢒
2008
🢒
Acadia - 2WD
🢒
Diagnostic Navigation
🢒
Vehicle Diagnostic Information
🢒 Engine Mechanical Schematics
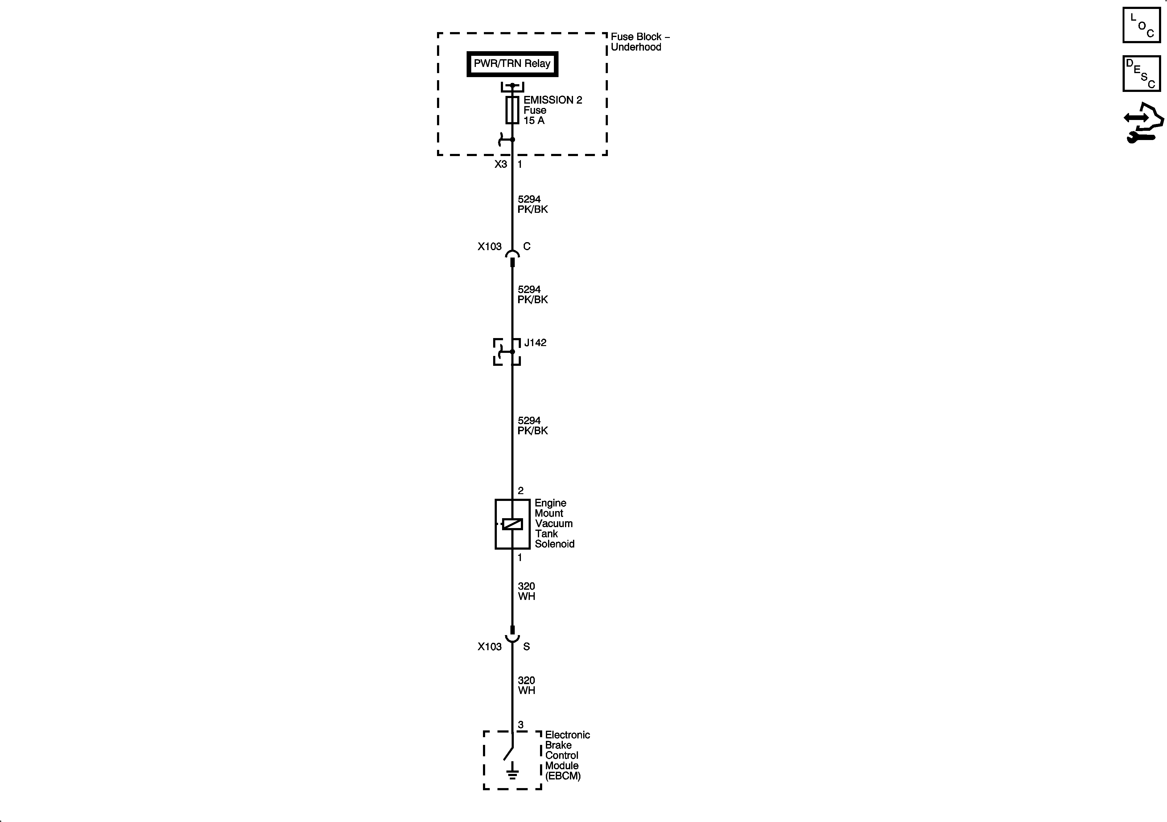
Engine Mount - W49
Master Electrical Component List
Engine Component Description
Control Module References