GM Service Manual Online
For 1990-2009 cars only
Makes
🢒
GMC_Truck
🢒
2008
🢒
Acadia - 2WD
🢒
Diagnostic Navigation
🢒
Vehicle Diagnostic Information
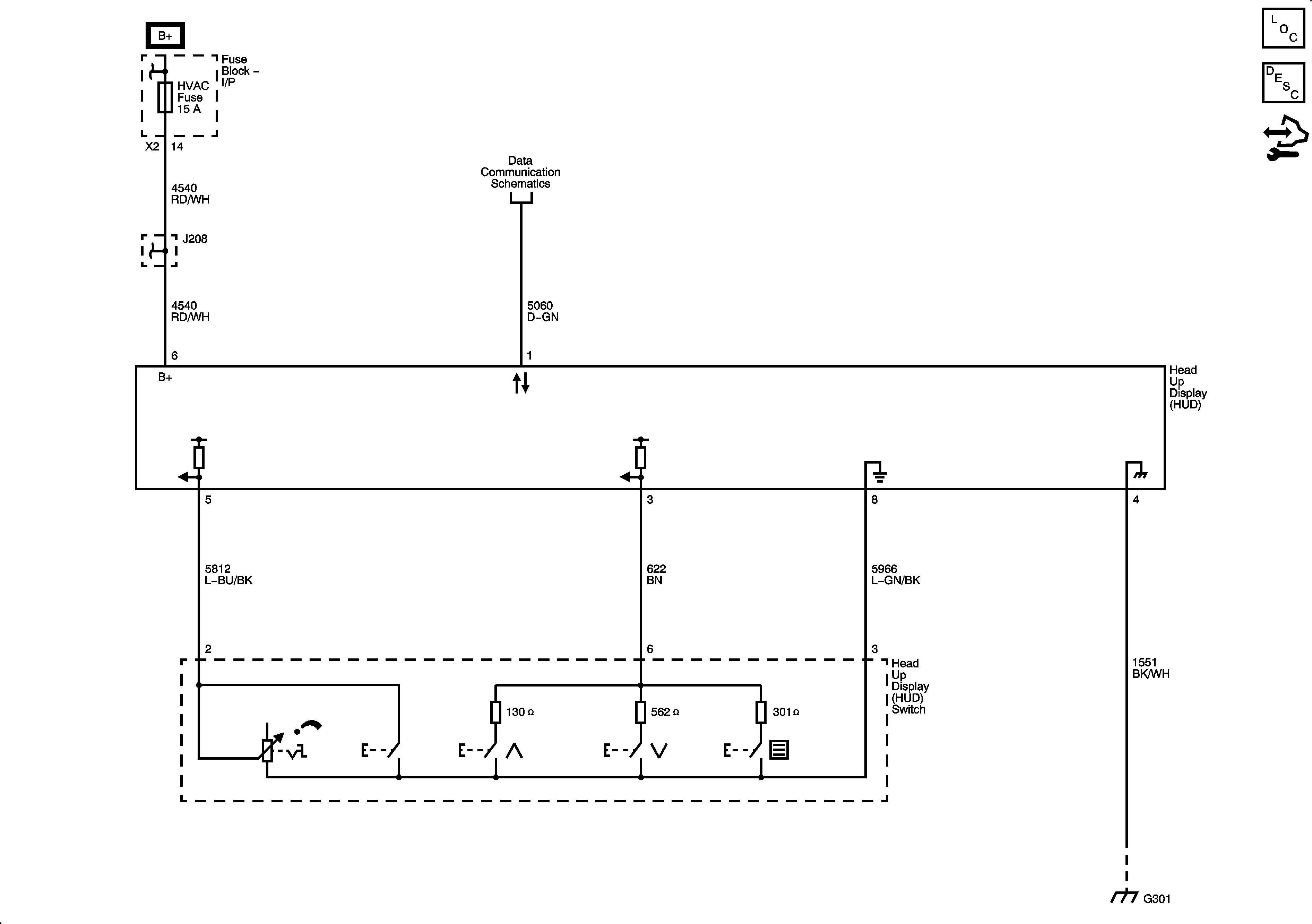
🢒 Head Up Display Schematics
UV6
Master Electrical Component List
Head Up Display (HUD) Description and Operation
Control Module References