GM Service Manual Online
For 1990-2009 cars only

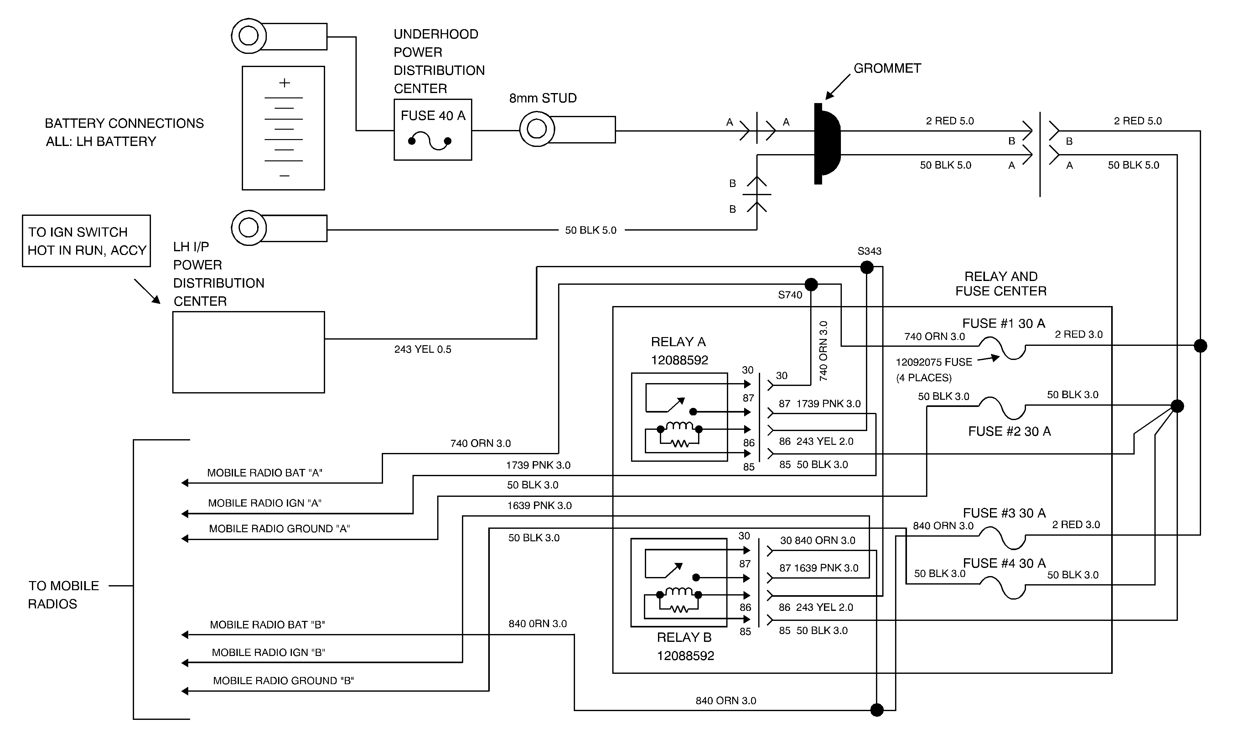
The following information tells you how to access your vehicle's relay and fuse center for checking and replacing fuses.

Using a screwdriver, remove the relay and fuse center cover by lightly expanding the spring clips on each side of the cover. Replace the 30 amp mini fuse with a 30 amp (or less, as required by the added electrical accessory) mini fuse. Use a fuse puller, if your vehicle has one. Replace a relay with a GM Part No. 12088592 relay, or equivalent.

After servicing the panel, reinstall the relay center cover by pressing the cover back on. Make sure the larger slot in the cover faces the driver's side. Reinstall the fascia cover on the instrument panel. Make sure the relief slot faces the bottom of the instrument panel.

Additional power and ground fuses (40 amps) are located under the hood, next to the battery.


Object Number: 866913  Size: C2

Object Number: 866918  Size: B4

Exploded View of Instrument Panel


Object Number: 875811  Size: B4

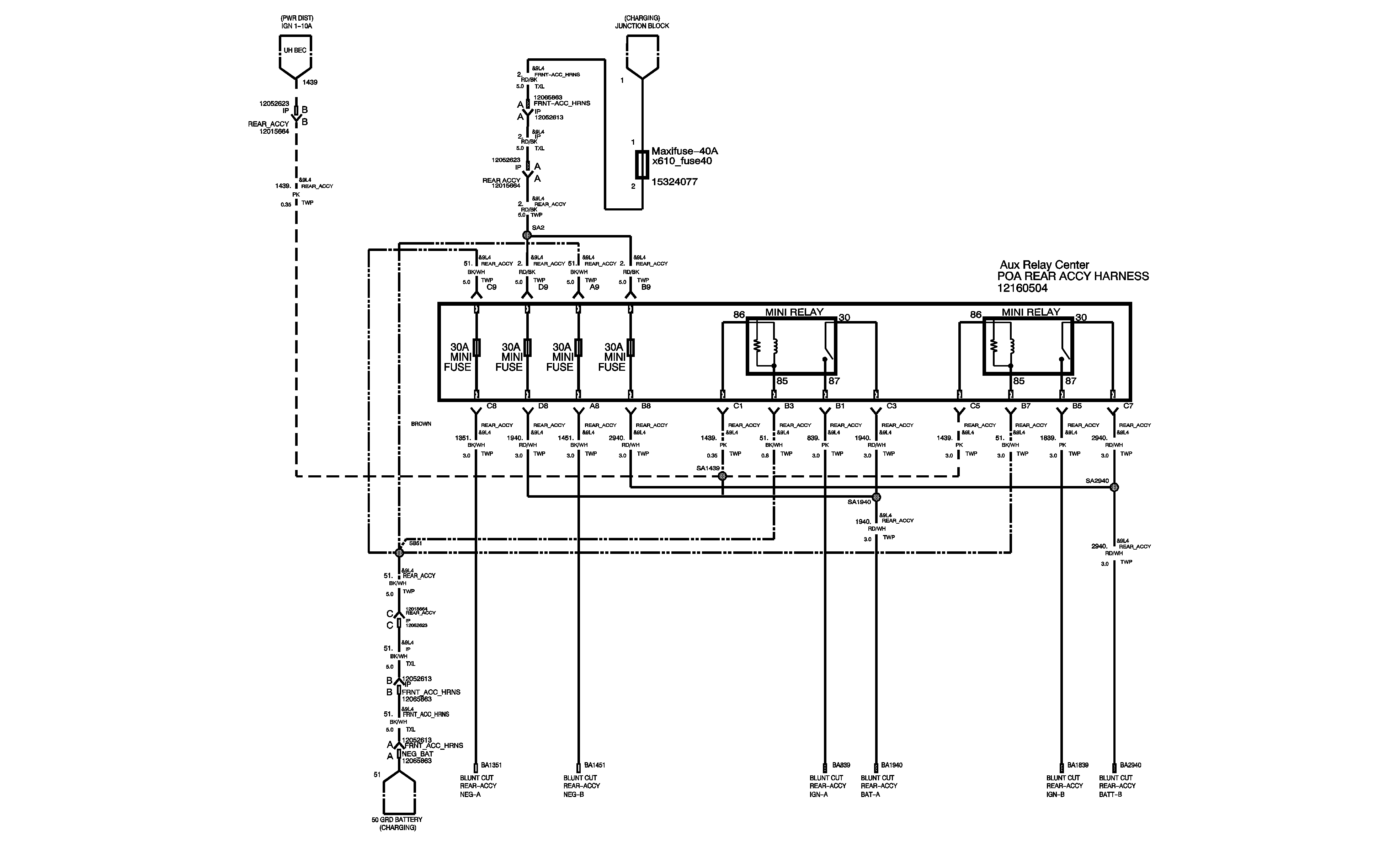
The following information tells you how to access your vehicle's relay and fuse center for checking and replacing fuses.

The fuse and relay center is located behind the instrument panel storage compartment. Remove contents from the storage tray. Push the right end of the tray inward to allow the stop tang to clear the compartment opening. Set the tray down gently toward the floor. It will hang from the hinge.

Additional access to the relay and fuse center can be gained by removing the center from the mounting bracket. Lift the lock tab on the bottom away from the bracket, then slide the center down the bracket about .39 inches (10  mm) until it can be lifted away.

Then, using a screwdriver, remove the relay and fuse center cover by lightly expanding the spring clips on each side of the cover. Replace the 30  amp mini fuse with a 30  amp mini fuse. Use a fuse puller if your vehicle has one. Replace a relay with a GM Part No. 12088592 relay, or equivalent.

After servicing the center, reinstall the relay center to the bracket. Engage the "D" slots, then push upward until the lock tab drops in place.

Reinstall the storage tray into the compartment by lifting it into the instrument panel. Push in on the right side to let the stop tang pass through the opening.


Object Number: 875815  Size: C2