GM Service Manual Online
For 1990-2009 cars only
Makes
🢒
GMC_Truck
🢒
2003
🢒
GMC C Sierra - 2WD
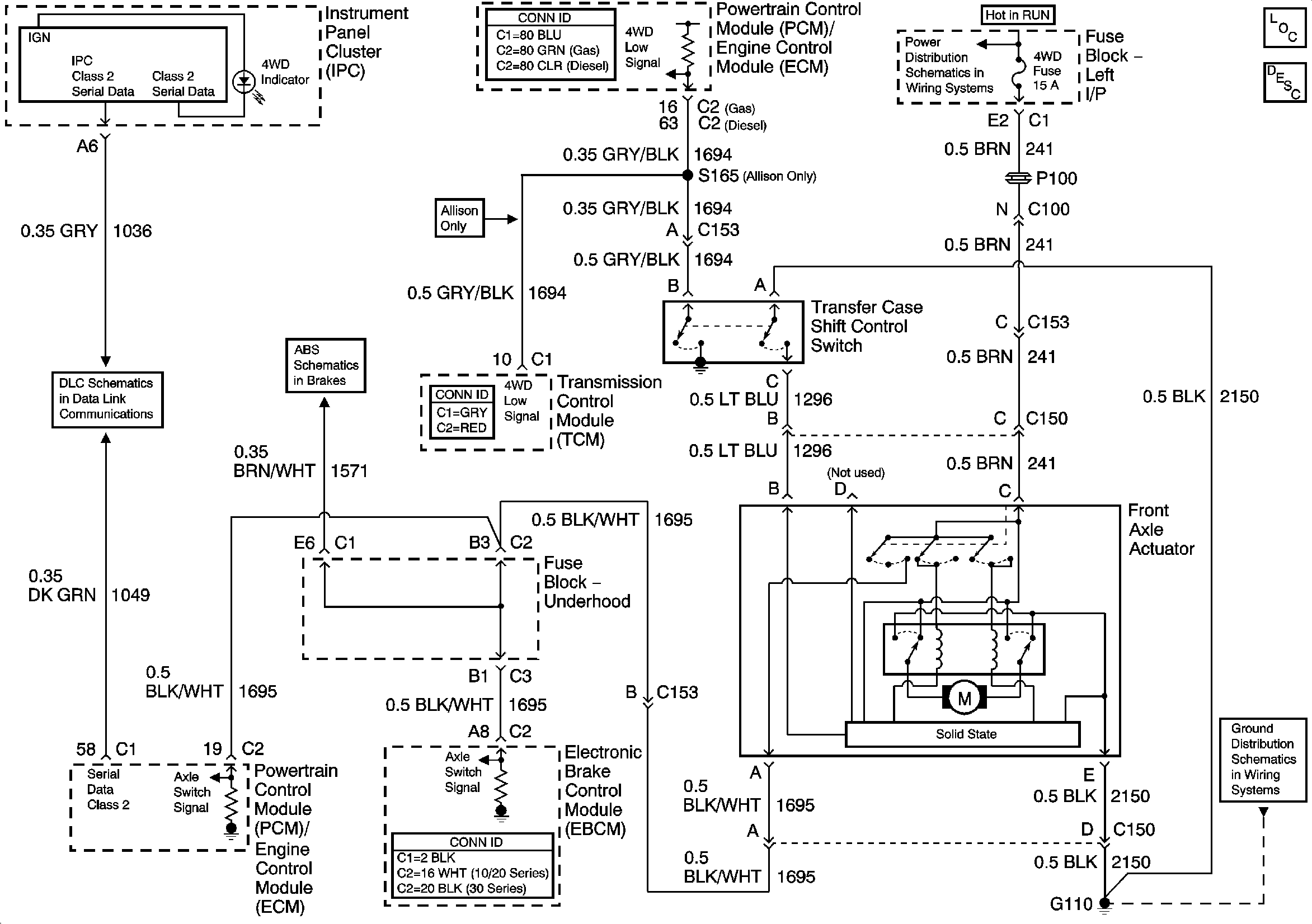
🢒 Transfer Case Schematics - NP1
Transfer Case Schematics - NP1
Master Electrical Component List
Transfer Case Description and Operation
IGN 3, CRUISE, 4WD
SP205 - 1 of 2
G110
8600 GVW or Less - 2 of 2