GM Service Manual Online
For 1990-2009 cars only
Makes
🢒
GMC_Truck
🢒
2003
🢒
GMC C Sierra - 2WD
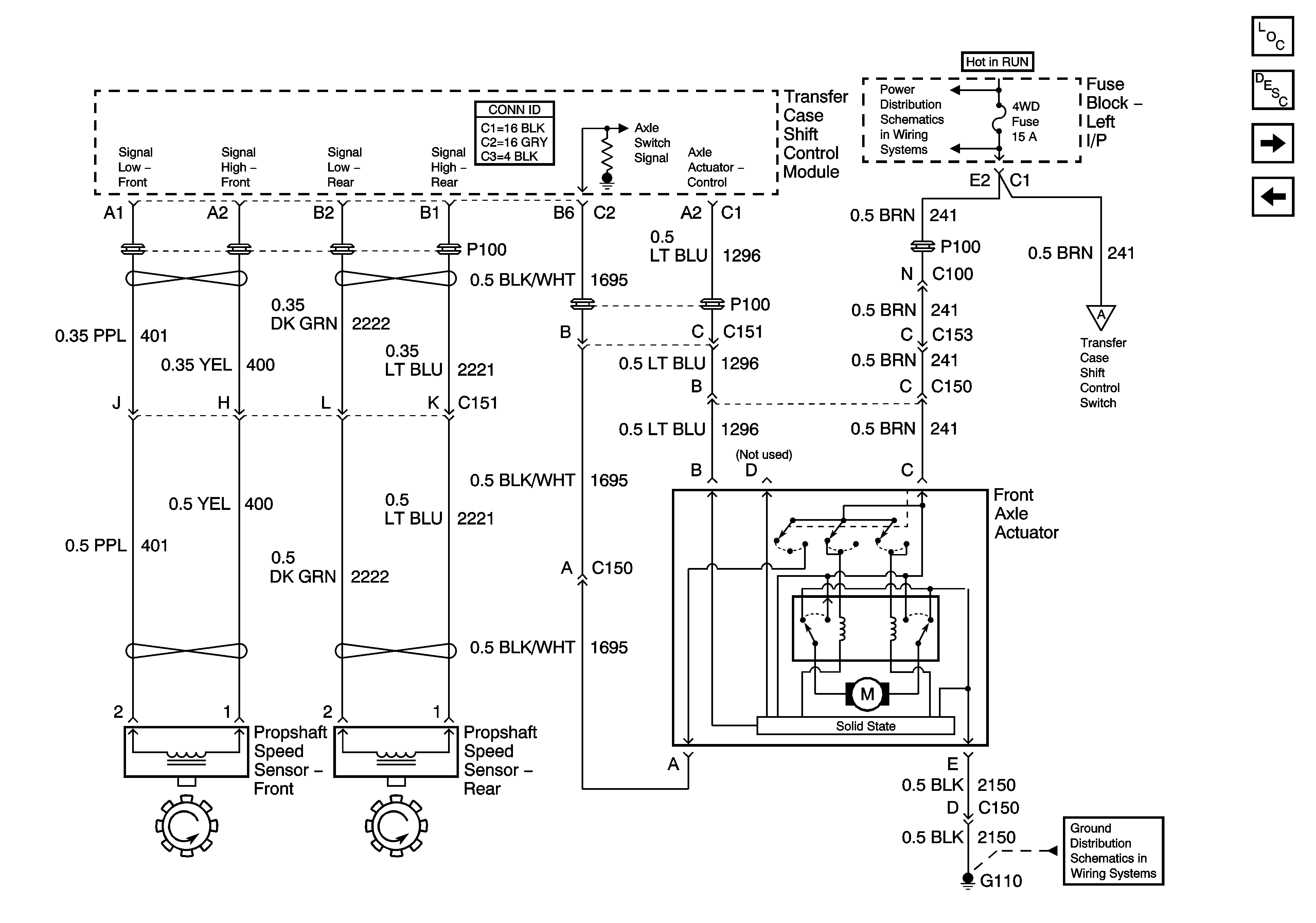
🢒 Propshaft Speed Sensors and Front Axle Actuator
Propshaft Speed Sensors and Front Axle Actuator
Propshaft Speed Sensors and Front Axle Actuator
Master Electrical Component List
Transfer Case Description and Operation
Switch Controls and Class 2 Serial Data
Power, Ground, and Transfer Case Encoder Motor
IGN 3, CRUISE, 4WD
Switch Controls and Class 2 Serial Data
G110