GM Service Manual Online
For 1990-2009 cars only
Makes
🢒
GMC_Truck
🢒
2000
🢒
Jimmy - 2WD
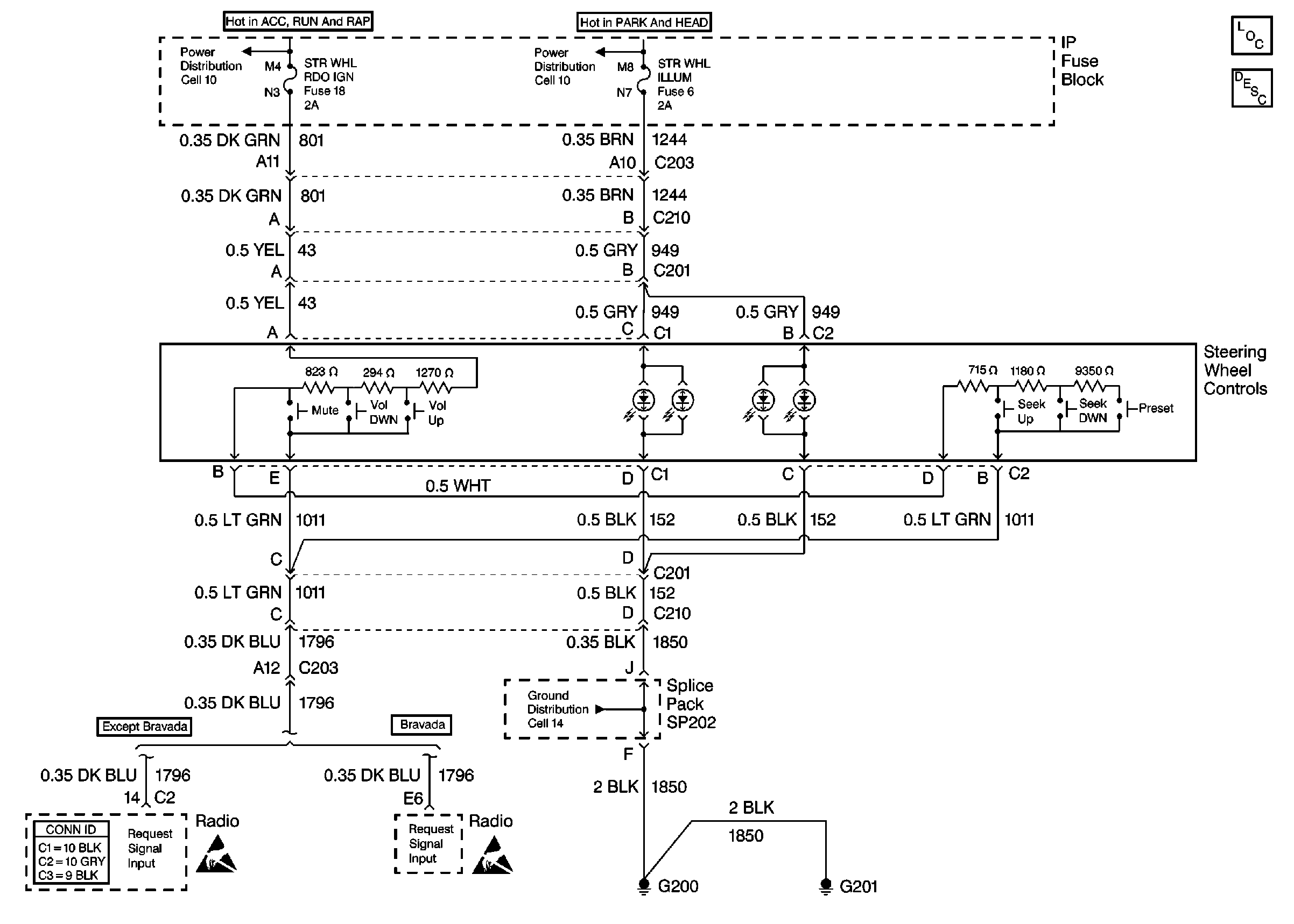
🢒 Cell 152
Cell 152
Cell 152
Cell 10: RDO IGN and STR WHL RDO IGN Fuses
Cell 10: ILLUM, PARK LP Fuses
Entertainment Components
Steering Wheel Controls System Circuit Description
Entertainment Connector End Views
Handling ESD Sensitive Parts Notice
Handling ESD Sensitive Parts Notice
Cell 14: G200, G201 and G207 (2-Door Utility w/ Endgate)