GM Service Manual Online
For 1990-2009 cars only
Makes
🢒
GMC_Truck
🢒
2004
🢒
Savana
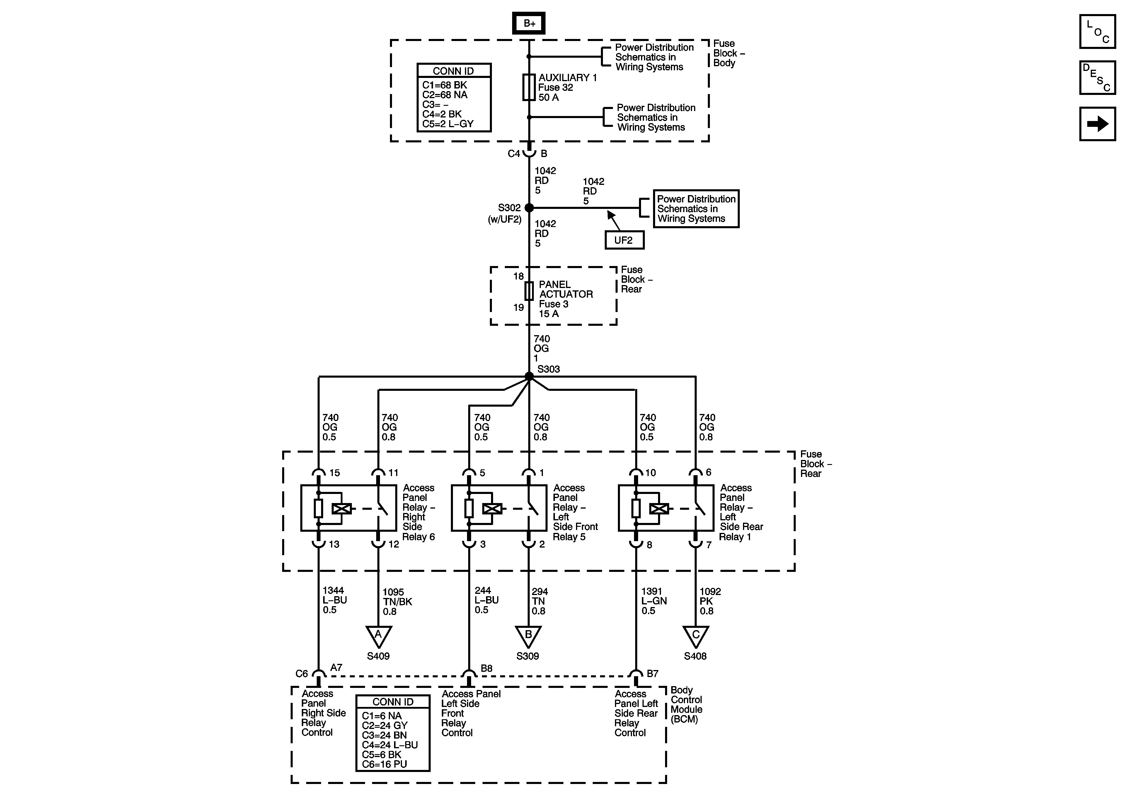
🢒 Access Panel Relay Control
Access Panel Relay Control
Access Panel Relay Control
Master Electrical Component List
Access Panel Description and Operation
Access Panel Actuators
B+ Bus - Body Fuse Block
RR Blower, AUXILIARY 1, OSRVM and SPARE Fuses, PWR WND Circuit Breaker
DOME FLUORESCENT WORK LAMPS and PANEL ACTUATOR Fuses
Access Panel Actuators
Access Panel Actuators
Access Panel Actuators