GM Service Manual Online
For 1990-2009 cars only
Makes
🢒
GMC_Truck
🢒
2005
🢒
Savana
🢒
Body
🢒
Instrument Panel, Gages, and Console
🢒 Instrument Cluster Schematics
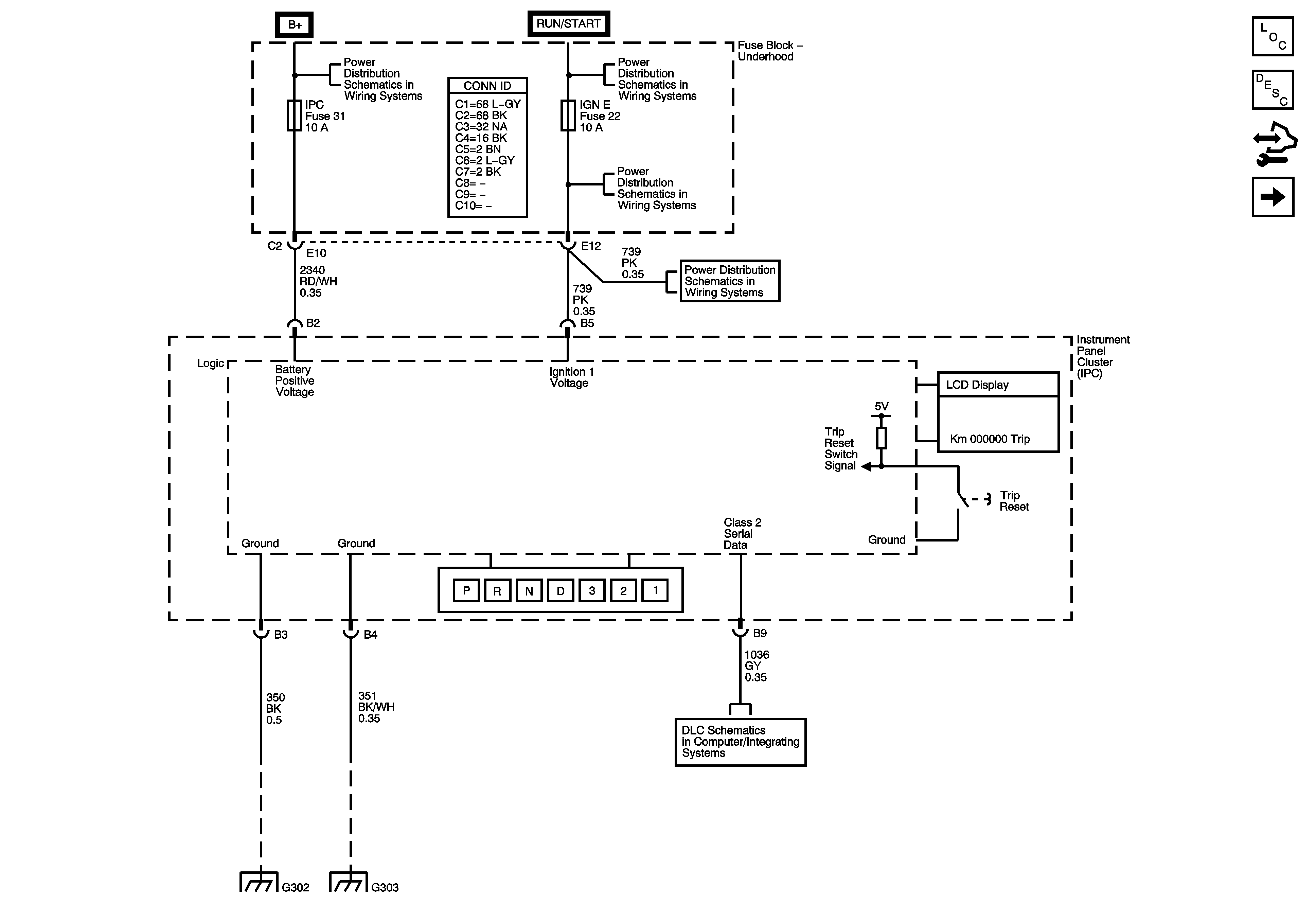
Figure
1:
Power, Ground and Serial Data
Master Electrical Component List
Instrument Cluster Description and Operation
Control Module References
Gages
B+ Bus - Underhood Fuse Block
Ignition Switch - ACCY/RUN, RUN/START Bus Bars and IGN B Fuse
IGN E, ISRV, SIR, SPARE andTBC IGN 1 Fuses
IGN E, ISRV, SIR, SPARE andTBC IGN 1 Fuses
G302
G303 and G304
Data Link Connector (DLC) Schematics
Figure
2:
Gages
Master Electrical Component List
Instrument Cluster Description and Operation
Control Module References
Indicators
Power, Ground and Serial Data
Data Link Connector (DLC) Schematics
Fuel Controls - EVAP and Device Controls
Fuel Controls - EVAP and Device Controls
Figure
3:
Indicators
Master Electrical Component List
Instrument Cluster Description and Operation
Control Module References
Gages
Turn Signals
Data Link Connector (DLC) Schematics
Brake Warning System Schematics
G103, G104, G105, G106, G300 and G301