GM Service Manual Online
For 1990-2009 cars only
Makes
🢒
GMC_Truck
🢒
2008
🢒
Savana
🢒
Engine
🢒
Engine Mechanical - 4.8L, 5.3L, 6.0L, 6.2L, or 7.0L
🢒 Engine Mechanical Schematics
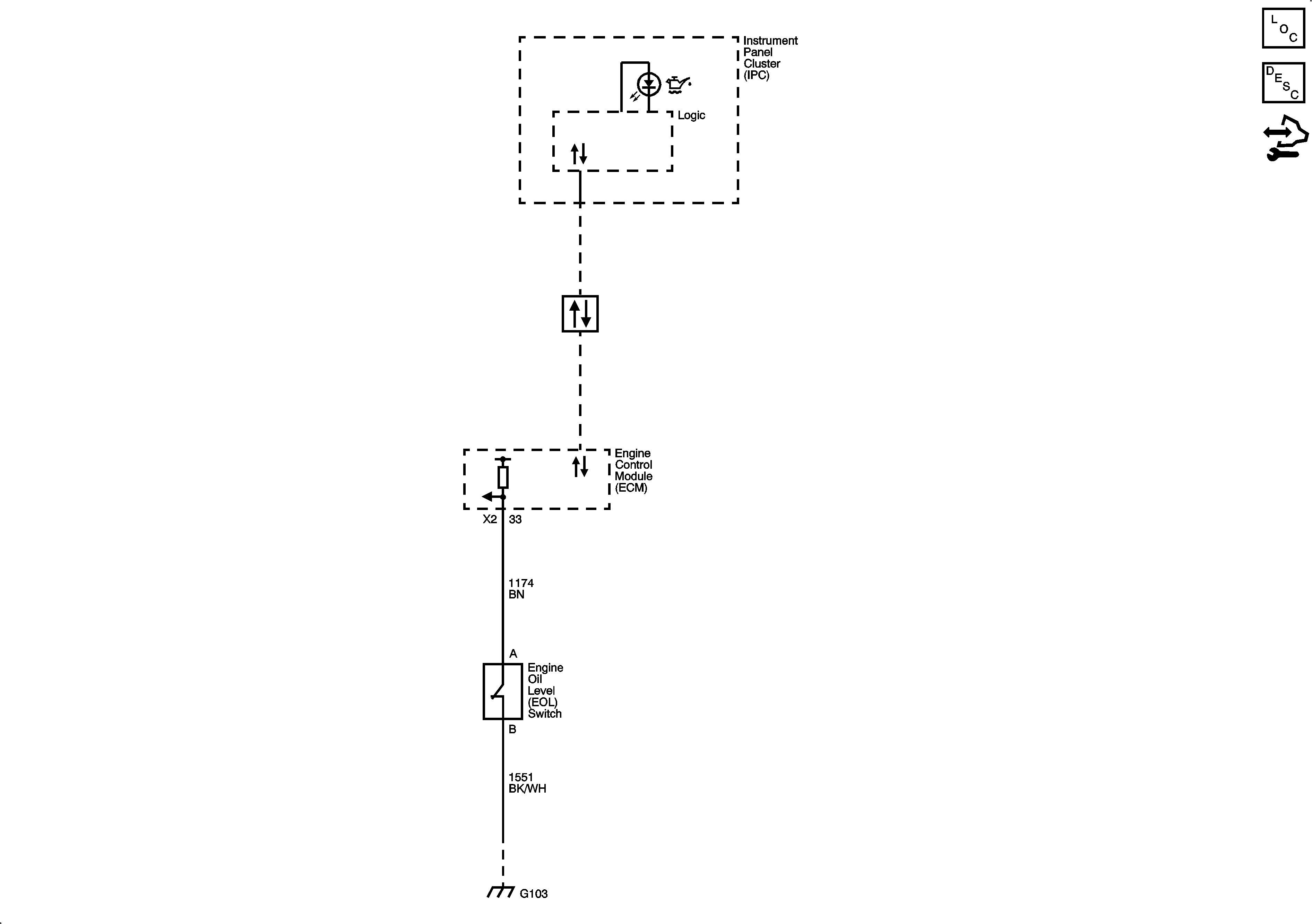
Engine Oil Level Switch
Master Electrical Component List
Engine Component Description
Control Module References