GM Service Manual Online
For 1990-2009 cars only
Connector 1: Fuse Block - Underhood Label
Connector 2: Fuse Block - Underhood Top View
Connector 3: Fuse Block - Underhood Bottom View
Connector 4: Fuse Block - Underhood X1
Connector 5: Fuse Block - Underhood X2
Connector 6: Fuse Block - Underhood X3
Connector 7: Fuse Block - Underhood X4
Connector 8: Fuse Block - Underhood X5
Connector 9: Fuse Block - Body Label
Connector 10: Fuse Block - Body Top View
Connector 11: Fuse Block - Body Bottom View
Connector 12: Fuse Block - Body X1
Connector 13: Fuse Block - Body X2
Connector 14: Fuse Block - Rear (PRP) - Top View
Connector 15: Fuse Block - Rear (PRP) Bottom View

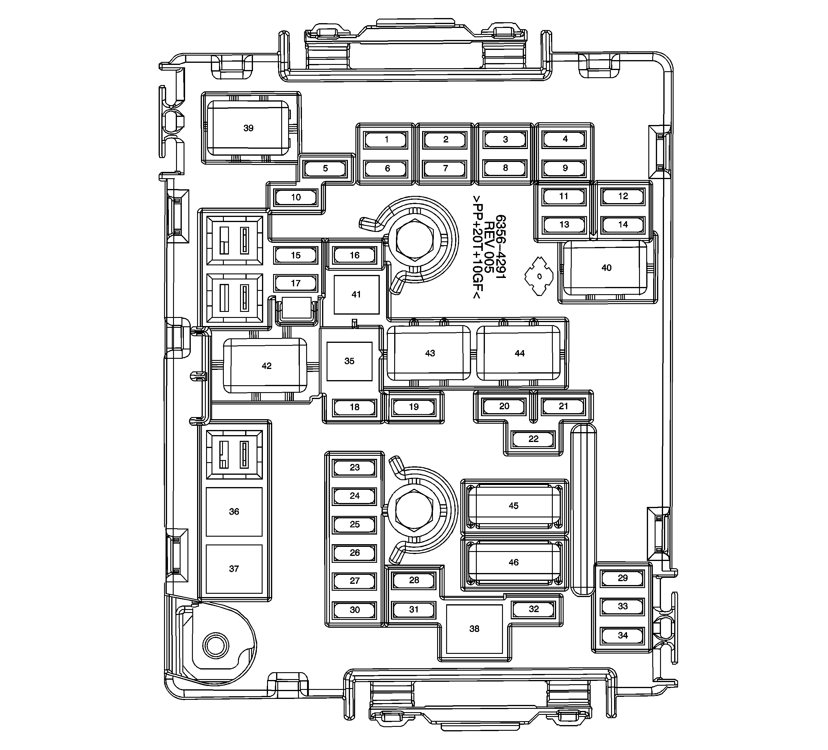
Fuse Block - Underhood Label


Object Number: 1875804  Size: LF

Fuse Block - Underhood - Label Usage

No.

Device

Rating

Description

1

LT HI BEAM Fuse

10A

Headlamp-High Beam-Left (Composite) or Headlamp-Left (Sealed)

2

FUEL PUMP Fuse

20A

Fuel Pump and Sender Assembly (4.3L/4.8L/6.0L) or Fuel Pump (6.6L)

3

EMPTY

--

Not Used

4

FUEL HTR (D) Fuse

15A

Fuel Heater (6.6L)

5

RT HI BEAM Fuse

10A

Headlamp-High Beam-Right (Composite) or Headlamp-Right (Sealed)

6

EMPTY

--

Not Used

7

LT LO BEAM Fuse

10A

Headlamp-Low Beam-Left (Composite) or Headlamp-Left (Sealed)

8

RT STP/TRN TRLR Fuse

15A

Trailer Connector

9

RT LO BEAM Fuse

10A

Headlamp-Low Beam-Right (Composite) or Headlamp-Right (Sealed)

10

DRL 2 Fuse

10A

LT LO BEAM fuse and Headlamp-Left (Sealed)

11

FCSM IGN (G) Fuse

10A

Fuel Pump Flow Control Module (5.3L)

12

DRL 1 Fuse

15A

LT LO BEAM fuse and Headlamp-Low Beam-Left (Composite)

13

AUX STOP LAMP Fuse

15A

X405 (Cutaway)

14

FOH MDL (D) Fuse

15A

Coolant Heater (6.6L)

15

FCSM BATT (G) Fuse

20A

Fuel Pump Flow Control Module (5.3L)

16

LT STP/TRN TRLR Fuse

15A

Trailer Connector

17

CNSTR VENT SOL (G) Fuse

10A

Evaporative Emission (EVAP) Canister Vent Solenoid Valve (Gas)

18

EMPTY

--

Not Used

19

EMPTY

--

Not Used

20

BCM 1 Fuse

10A

Body Control Module

21

SEO Fuse

10A

Instrument Panel Cluster (8S8)

22

BCM 4 Fuse

15A

Body Control Module

23

BCM 6 Fuse

15A

Body Control Module

24

EMPTY

--

Not Used

25

BCM 7 Fuse

10A

Body Control Module

26

BCM 3 Fuse

15A

Body Control Module

27

BCM 5 Fuse

15A

Body Control Module

28

EMPTY

--

Not Used

29

EMPTY

--

Not Used

30

IP CLSTR Fuse

10A

Instrument Panel Cluster

31

EMPTY

--

Not Used

32

BRK SW Fuse

10A

Stop Lamp Switch

33

AUX PWR OUTLET Fuse

20A

Accessory Power Outlet - Center Console 2

34

AIRBAG Fuse

10A

Inflatable Restraint Sensing and Diagnostic Module, Inflatable Restraint I/P Module Disable Switch (C99) or Inflatable Restraint I/P Module Indicator (without C99)

35

TRLR WRG Fuse

30A

Blunt Cut (UY7)

36

STR/WHL SNSR (G) Fuse

10A

Steering Wheel Speed/Position Sensor (JL4)

37

BCM 2 Fuse

10A

Body Control Module

38

LTR/DLC Fuse

20A

Cigar Lighter (DT4), Accessory Power Outlet - Center Console 1 (without DT4) and Data Link Connector (DLC)

39

WPR Fuse

25A

WPR Relay

40

EMPTY

--

Not Used

41

WSW Fuse

15A

Windshield Washer Fluid Pump

42

EMPTY

--

Not Used

43

HORN Fuse

20A

Horn Assembly

44

TCM BATT Fuse

10A

Transmission Control Module

45

EMPTY

--

Not Used

46

O2 SNSR 1 (G) Fuse

10A

HO2S Bank 1 Sensor 1 (Gas) and HO2S Bank 2 Sensor 1 (Gas)

47

TCM IGN Fuse

15A

Transmission Control Module

48

ECM IGN Fuse

15A

Engine Control Module

49

MAF/CNSTR VENT Fuse

15A

Mass Air Flow (MAF)/Intake Air Temperature (IAT) Sensor and Evaporative Emission (EVAP) Canister Purge Solenoid Valve (Gas)

50

ECM PWR/TRN Fuse

10A

Engine Control Module

51

TRANS Fuse

15A

Automatic Transmission

52

EVEN IGN/INJ (G) Fuse

20A

Even Ignition Coils (4.8L/5.3L/6.0L) and Even Fuel Injector (4.8L/5.3L/6.0L)

53

GLOW PLUG MDL (D) Fuse

10A

Glow Plug Control Module (GPCM) (6.6L)

54

ECM BATT (G) Fuse

10A

Engine Control Module

55

ODD IGN/INJ (G) Fuse

20A

Odd Ignition Coils (4.8L/5.3L/6.0L), Ignition Control Module (4.3L) and Odd Fuel Injectors (4.8L/5.3L/6.0L)

56

O2 SNSR 2 (G) Fuse

10A

HO2S Bank 1 Sensor 2 (Gas) and HO2S Bank 2 Sensor 2 (Gas)

57

A/C CMPRSR Fuse

15A

A/C Compressor Clutch (C60)

58

FAN CLTCH (D) Fuse

10A

FAN CLTCH Relay (D) (6.6L)

59

V6 FUEL INJ (G) Fuse

15A

Fuel Injectors (4.3L)

60

ABS MDL Fuse

40A

Electronic Brake Control Module (EBCM)

61

ABS MTR Fuse

50A

Electronic Brake Control Module (EBCM)

62

TRLR WRG Fuse

30A

Trailer Connector

63

SPARE Fuse

--

Not Used

64

STRTR SOL Fuse

40A

Starter Motor

65

ECM PWR/TRN (D) Fuse

30A

Engine Control Module (6.6L)

66

FRT BLWR Fuse

40A

Blower Motor Resistor Assembly

67

SPARE Fuse

--

Not Used

68

SPARE Relay

--

Not Used

69

RUN/CRNK Relay

--

FCSM IGN (5.3L), IP CLSTR, TRANS, BRK SW, TCM IGN, ECM IGN, AIR BAG, STR/WHL SNSR (G), STRTR SOL Fuses

70

WPR - HI Relay

--

Windshield Wiper Motor

71

WPR Relay

--

WPR - HI Relay and Windshield Wiper Motor

72

FUEL PUMP Relay

--

FUEL PUMP Fuse

73

CRNK Relay

--

STRTR SOL Fuse

74

A/C CMPRSR Relay

--

A/C CMPRSR Fuse

75

FAN CLTCH (D) Relay

--

Cooling Fan (6.6L) and Engine Control Module (6.6L)

76

PWR/TRN Relay

--

GLOW PLUG MDL (D), FUEL HTR (D), O2 SNSR 1 (G), O2 SNSR 2 (G), ECM PWR/TRN, MAF/CNSTR VENT, V6 FUEL INJ (G), EVEN IGN/INJ (G), ODD IGN/INJ (G), ECM PWR/TRN (D) and FAN CLTCH (D) Fuses

77

MEGA Fuse

125A

Fuse Block - Body

Important: Relays listed below are non-serviceable Printed Circuit Board (PCB) relays and are internal to the block.

--

HIGH BEAM PCB Relay

--

LT HIGH BEAM and RT HIGH BEAM Fuses

--

LOW BEAM PCB Relay

--

LT LO BEAM and RT LO BEAM Fuses

--

DRL PCB Relay

--

DRL 1 and DRL 2 Fuses

--

TRAILER LH STOP/TURN PCB Relay

--

LT STP/TRN TRLR Fuse

--

TRAILER RH STOP/TURN PCB Relay

--

RT STP/TRN TRLR Fuse

--

WASHER PCB Relay

--

WSW Fuse

--

HORN PCB Relay

--

HORN Fuse

--

STOP LAMPS PCB Relay

--

AUX STOP LAMP Fuse

Fuse Block - Underhood Top View


Object Number: 1875811  Size: LF

Fuse Block - Underhood Bottom View


Object Number: 1875820  Size: LF

Fuse Block - Underhood X1


Object Number: 1884159  Size: CH

Connector Part Information

  • OEM: 13578271
  • Service: See Catalog
  • Description: 62-Way F 2.8 Series (BK)

Terminal Part Information

  • Pins: 1, 3, 62
  • Terminal/Tray: 7116-4122-02/10
  • Core/Insulation Crimp: D/G
  • Release Tool/Test Probe: 12094430/J-35616-42 (RD)
  • Pins: 5, 7, 8, 16, 22, 26, 28, 35, 40, 42-44, 47, 55, 56, 58
  • Terminal/Tray: 8100-4443/22
  • Core/Insulation Crimp: E/A
  • Release Tool/Test Probe: 15315247/J-35616-35 (VT)
  • Pins: 6, 9, 29, 30, 33, 34
  • Terminal/Tray: 8100-4445/22
  • Core/Insulation Crimp: See Terminal Repair Kit
  • Release Tool/Test Probe: 15315247/J-35616-35 (VT)
  • Pins: 24, 25, 44, 49, 53, 57
  • Terminal/Tray: 8100-4444/22
  • Core/Insulation Crimp: 2/A
  • Release Tool/Test Probe: 15315247/J-35616-35 (VT)

Fuse Block - Underhood X1

Pin

Wire

Circuit

Function

1

5 PK

1439

Ignition Voltage (Diesel)

2

--

--

Not Used

3

5 RD/BK

542

Battery Positive Voltage

4

--

--

Not Used

5

0.5 PK

1839

Ignition Voltage (4.3L)

6

0.8 PK

1539

Ignition Voltage (Gas)

0.8 PK

1539

Ignition Voltage (Gas)

7

0.5 PK

439

Ignition Voltage (Diesel)

8

0.5 PK

1339

Ignition Voltage

9

0.8 PK

539

Ignition Voltage (Gas)

0.8 PK

539

Ignition Voltage (Gas)

10-15

--

--

Not Used

16

0.5 YE

5991

Powertrain Relay Control

17-21

--

--

Not Used

22

0.5 WH/BK

2366

Cooling Fan Clutch Control (Diesel)

23

--

--

Not Used

24

1 PK

1039

Ignition Voltage (4.8L/5.3L/6.0L)

0.8 PK

1039

Ignition Voltage (4.3L)

25

1 PK

1239

Ignition Voltage (4.8L/5.3L/6.0L)

26

0.5 PK

1939

Ignition Voltage

27

--

--

Not Used

28

0.5 WH

2368

Cooling Fan Clutch Control (Diesel)

29

0.8 PK

1039

Ignition Voltage (4.8L/5.3L/6.0L)

0.8 PK

1039

Ignition Voltage (4.8L/5.3L/6.0L)

30

0.8 PK

1239

Ignition Voltage (4.8L/5.3L/6.0L)

0.8 PK

1239

Ignition Voltage (4.8L/5.3L/6.0L)

31-32

--

--

Not Used

33

0.8 PK

1039

Ignition Voltage (4.8L/5.3L/6.0L)

0.8 PK

1039

Ignition Voltage (4.8L/5.3L/6.0L)

34

0.8 PK

1239

Ignition Voltage (4.8L/5.3L/6.0L)

0.8 PK

1239

Ignition Voltage (4.8L/5.3L/6.0L)

35

0.5 PK

1939

Ignition Voltage (Gas)

36-39

--

--

Not Used

40

0.5 PK

439

Ignition Voltage

41

--

--

Not Used

42

0.35 D-GN/WH

459

A/C Compressor Clutch Relay Control (Gas with C60)

0.5 D-GN/WH

459

A/C Compressor Clutch Relay Control (Diesel with C60)

43

0.5 D-GN

59

A/C Compressor Clutch Supply Voltage (C60)

44

0.5 RD/WH

440

Battery Positive Voltage (Gas)

1 RD/WH

440

Battery Positive Voltage (Diesel)

45-46

--

--

Not Used

47

0.35 RD/WH

1840

Battery Positive Voltage

48

--

--

Not Used

49

1 BK

1250

Ground

50-52

--

--

Not Used

53

0.8 D-GN

29

Horn Control

54

--

--

Not Used

55

0.35 YE/BK

625

Starter Enable Relay Control (Gas)

0.5 YE/BK

625

Starter Enable Relay Control (Diesel)

56

0.35 D-GN/WH

465

Fuel Pump Relay Control - Primary (4.8L/5.3L/6.0L)

0.5 D-GN/WH

465

Fuel Pump Relay Control - Primary (Diesel)

57

0.8 PK

3039

Ignition Voltage

58

0.5 PK

2139

Ignition Voltage

59-61

--

--

Not Used

62

5 PU

6

Starter Solenoid Crank Voltage

Fuse Block - Underhood X2


Object Number: 1884158  Size: CH

Connector Part Information

  • OEM: 13578275
  • Service: See Catalog
  • Description: 29-Way F 2.8 Series (BK)

Terminal Part Information

  • Pins: 5, 7, 10-13, 15, 18, 23, 26, 28
  • Terminal/Tray: 8100-4444/22
  • Core/Insulation Crimp: 2/A
  • Release Tool/Test Probe: 15315247/J-35616-35 (VT)
  • Pins: 16, 21
  • Terminal/Tray: 8100-4443/22
  • Core/Insulation Crimp: E/A
  • Release Tool/Test Probe: 15315247/J-35616-35 (VT)
  • Pins: 1, 3, 2
  • Terminal/Tray: 7116-4122-02/10
  • Core/Insulation Crimp: Pins 1, 3 - A/B
  • Core/Insulation Crimp: Pins 2 - D/G
  • Release Tool/Test Probe: 12094430/J-35616-42 (RD)
  • Pins: 14, 23-25
  • Terminal/Tray: 8100-4445/22
  • Core/Insulation Crimp: Pins 14 - F/D
  • Core/Insulation Crimp: Pins 23, 24, 25 - 4/4
  • Release Tool/Test Probe: 15315247/J-35616-35 (VT)

Fuse Block - Underhood X2

Pin

Wire

Circuit

Function

1

3 RD/BK

742

Battery Positive Voltage (UY7)

2

5 RD/BK

442

Battery Positive Voltage

3

3 RD/WH

1640

Battery Positive Voltage

4

--

--

Not Used

5

0.8 D-BU/WH

149

Courtesy Lamp Control (Cutaway)

6

--

--

Not Used

7

1 L-GN

1624

Trailer Backup Lamps Control (Cutaway/UY7)

8-9

--

--

Not Used

10

1 YE

1618

Trailer Left Rear Turn/Stop Lamp Control (UY7)

11

1 YE

618

Left Rear Turn Signal Lamp Control (Cutaway)

12

1 D-GN

619

Right Rear Turn Signal Lamp Control (Cutaway)

13

0.8 PK

2239

Ignition Voltage (Diesel)

14

3 D-BU

47

Trailer Auxiliary Control (UY7)

15

1 BN

2109

Trailer Park Lamps Control (UY7)

16

0.5 PK

2739

Ignition Voltage (5.3L)

17

--

--

Not Used

18

1 BN

2109

Trailer Park Lamps Control (Cutaway)

19-20

--

--

Not Used

21

0.5 RD/WH

40

Battery Positive Voltage (Gas)

22

--

--

Not Used

23

0.8 GY

120

Fuel Pump Control (6.6L)

2 GY

120

Fuel Pump Control (4.3L/4.8L/6.0L)

24

2 RD/WH

1940

Battery Positive Voltage (5.3L)

25

2 RD/WH

1740

Battery Positive Voltage (Diesel with K08)

26

1 L-BU

1320

CHMSL Control/Stop Lamp Control (Cutaway)

27

--

--

Not Used

28

1 D-GN

1619

Trailer Right Rear Turn/Stop Lamp Control (UY7)

29

--

--

Not Used

Fuse Block - Underhood X3


Object Number: 1884160  Size: CH

Connector Part Information

  • OEM: 13578273
  • Service: See Catalog
  • Description: 62-Way F 2.8, 6.3 Series (GY)

Terminal Part Information

  • Pins: 12, 22, 27, 30, 33, 36, 38-40, 44-47, 50, 54-56, 58
  • Terminal/Tray: 8100-4443/22
  • Core/Insulation Crimp: E/A
  • Release Tool/Test Probe: 15315247/J-35616-35 (VT)
  • Pins: 6, 18, 28, 32
  • Terminal/Tray: 8100-4445/22
  • Core/Insulation Crimp: Pins 6, 18 - F/D
  • Core/Insulation Crimp: Pins 28, 32 - 4/4
  • Release Tool/Test Probe: 15315247/J-35616-35 (VT)
  • Pins: 7-9, 11, 13-15, 17, 20, 21, 24-27, 31, 34, 43, 52, 49
  • Terminal/Tray: 8100-4444/22
  • Core/Insulation Crimp: Pins 7-9, 11, 13-15, 17, 20, 21, 24-27, 31, 34, 43, 52 - 2/A
  • Core/Insulation Crimp: Pins 49 - See Terminal Repair Kit
  • Release Tool/Test Probe: 15315247/J-35616-35 (VT)

Fuse Block - Underhood X3

Pin

Wire

Circuit

Function

1-5

--

--

Not Used

6

3 RD/WH

3940

Battery Positive Voltage (UY7)

7

0.8 RD/WH

1040

Battery Positive Voltage

8

0.8 D-BU/WH

149

Courtesy Lamp Control (Cutaway)

9

0.8 RD/WH

2940

Battery Positive Voltage

10

--

--

Not Used

11

0.8 RD/WH

640

Battery Positive Voltage

12

0.35 OG

5186

Left Trailer Turn Signal Lamp (UY7)

13

1 L-GN

1624

Trailer Backup Lamps Control (Cutaway/UF7/8S8)

14

1 YE

618

Left Rear Turn Signal Lamp Control (Cutaway)

15

0.8 RD/WH

2740

Battery Positive Voltage

16

--

--

Not Used

17

0.8 RD/WH

640

Battery Positive Voltage

18

3 D-BU

47

Trailer Auxiliary Control (UY7)

19

0.35 RD/WH

2840

Battery Positive Voltage (8S8)

20

0.8 RD/WH

2240

Battery Positive Voltage

21

0.8 RD/WH

3040

Battery Positive Voltage

22

0.35 GY

91

Windshield Wiper Switch Signal 2

23

--

--

Not Used

24

1 BN

2109

Trailer Park Lamps Control (UY7)

25

0.8 D-BU/WH

1315

Right Front Turn Signal Lamp Control

26

1 BN

2109

Trailer Park Lamps Control (Cutaway)

27

0.5 RD/WH

2540

Battery Positive Voltage

28

2 PU

92

Windshield Wiper Motor High Speed

29

--

--

Not Used

30

0.5 WH

5065

Stop Lamps Control

31

1 D-GN

619

Right Rear Turn Signal Lamp Control (Cutaway)

32

2 D-GN

95

Windshield Washer Switch Signal

33

0.35 OG

2268

Windshield Washer Relay Control

34

0.8 L-BU/WH

1314

Left Front Turn Signal Lamp Control

35

--

--

Not Used

36

0.35 TN

860

Front Windshield Wiper Switch High Signal

37

--

--

Not Used

38

0.5 OG

228

Windshield Washer Pump Control

39

0.35 PK/WH

1970

Headlamp Low Beam Relay Control

40

0.35 PU

544

Headlamp Low Beam Control

41-42

--

--

Not Used

43

0.8 RD/WH

2140

Battery Positive Voltage

44

0.35 TN/WH

1969

Headlamp High Beam Relay Control

45

0.35 PK

239

Ignition Voltage

46

0.35 YE

5187

Right Trailer Turn Signal Lamp (UY7)

47

0.5 RD/WH

3840

Battery Positive Voltage

48

--

--

Not Used

49

0.35 TN

28

Horn Relay Control

0.35 TN

28

Horn Relay Control

50

0.35 PK

1139

Ignition Voltage

51

--

--

Not Used

52

0.8 BN

2309

Front Park Lamps Control

53

--

--

Not Used

54

0.35 YE

5199

Run/Crank Relay Coil Control

55

0.5 PK

2239

Ignition Voltage (JL4)

56

0.35 PK

1139

Ignition Voltage

57

--

--

Not Used

58

0.35 PK

1639

Ignition Voltage

59-62

--

--

Not Used

Fuse Block - Underhood X4


Object Number: 823321  Size: CH

Connector Part Information

  • OEM: 15326952
  • Service: 15326952
  • Description: 16-Way F GT 280 Series (BK)

Terminal Part Information

  • Pins: C, D, F, L, M, N, R, K, P, S
  • Terminal/Tray: 15304711/8
  • Core/Insulation Crimp: Pins C, D, F, L, M, N, R - E/A
  • Core/Insulation Crimp: Pins K, P, S - 2/A
  • Release Tool/Test Probe: 15315247/J-35616-4A (PU)

Fuse Block - Underhood X4

Pin

Wire

Circuit

Function

A-B

--

--

Not Used

C

0.35 TN/WH

312

Right Headlamp Low Beam Control (without V22)

0.5 TN/WH

312

Right Headlamp Low Beam Control (V22)

D

0.5 BN

2309

Front Park Lamps Control

E

--

--

Not Used

F

0.35 YE

712

Left Headlamp Low Beam Control (without V22 without T79)

G-J

--

--

Not Used

K

0.8 L-GN/BK

311

Right Headlamp High Beam Control

L

0.5 D-GN/WH

711

Left Headlamp High Beam Control

M

0.5 YE

712

Left Headlamp Low Beam Control (V22)

0.5 YE

712

Left Headlamp Low Beam Control (V22)

0.35 YE

712

Left Headlamp Low Beam Control (without V22)

0.35 YE

712

Left Headlamp Low Beam Control (without V22)

N

0.5 BN

2309

Front Park Lamps Control

P

0.8 L-BU/WH

1314

Left Front Turn Signal Lamp Control

R

0.5 YE

712

Left Headlamp Low Beam Control (V22 without T79)

S

0.8 D-BU/WH

1315

Right Front Turn Signal Lamp Control

Fuse Block - Underhood X5

Terminal Part Information

  • Terminal: 15441775
  • Core/Insulation Crimp: N/A
  • Description: Ring Terminal

Fuse Block - Underhood X5

Pin

Wire

Circuit

Function

S

19 RD

1

Battery Positive Voltage

Fuse Block - Body Label


Object Number: 1875825  Size: LF

Fuse Block - Body - Label Usage

No.

Device

Rating

Description

1

HVAC 2 Fuse

10A

Air Temperature Actuator, HVAC Control Assembly (C49/DE5/DE7), HVAC Control Module - Auxiliary, HVAC Control Assembly-Rear Auxiliary (C69 with Rear Auxiliary Controls), Blower Motor Low Speed Relay - Auxiliary (C36/C69), Blower Motor Medium Speed Relay - Auxiliary (C36/C69), Blower Motor High Speed Relay - Auxiliary (C36/C69), Mode Actuator - Auxiliary (C69) and Air Temperature Actuator - Auxiliary (C69)

2

CMPS Fuse

10A

Electronic Compass Module (U80)

3

IGN SW/PK3 MDL Fuse

2A

Ignition Switch and Theft Deterrent Module

4

UPFTR CTSY LMPS Fuse

15A

Body Control Module (without YF7), X405 (Cutaway), Dome/Reading Lamp - Middle (Passenger), Dome Lamp (Cargo), Dome/Reading Lamp - Rear (Passenger), X320 (YF7) and Dome/Reading Lamp Front

5

HVAC 1 Fuse

20A

HVAC Control Assembly and Vacuum Pump - Diesel

6

EMPTY

--

Not Used

7

IP CLSTR Fuse

10A

Instrument Panel Cluster

8

RDO/CHIME Fuse

15A

Radio, Chime Module

9

AUX PRK LAMP Fuse

15A

X405 (Cutaway)

10

AUX/TRLR BCK/UP Fuse

10A

Backup Alarm (8S3), Trailer Connector (UY7) and X405 (Cutaway)

11

RFA/TPM Fuse

10A

Remote Control Door Lock Receiver (RCDLR) (AUO)

12

HVAC CNTRL Fuse

10A

HVAC Control Assembly (DE5/DE7/C49)

13

TRLR PRK LAMP Fuse

15A

Trailer Connector (UY7)

14

FRT PRK LAMP Fuse

10A

Park/Turn Signal Lamp - LF, Marker Lamp - LF, Park/Turn Signal Lamp - RF, Marker Lamp - RF and Inflatable Restraint I/P Module Disable Switch (C99)

15

T/LAMP BCK/UP Fuse

10A

Backup Lamp - Right (Passenger/Cargo) and Backup Lamp - Left (Passenger/Cargo)

16

EMPTY

--

Not Used

17

STR WHL SNSR Fuse

2A

Inflatable Restraint Steering Wheel Module Coil (K34/W1Y)

18

OSRVM SW Fuse

2A

Outside Rearview Mirror Switch (DE5/DE7)

19

EMPTY

--

Not Used

20

EMPTY

--

Not Used

21

REAR DEFOG Fuse

30A

Rear Window Defogger Grid - Left (C49) and Rear Window Defogger Grid - Right (C49)

22

OSRVW HTR Fuse

20A

Outside Rearview Mirror - Driver (DE5/DE7) and Outside Rearview Mirror - Passenger (DE5/DE7)

23

EMPTY

--

Not Used

24

EMPTY

--

Not Used

25

CARGO DR UNLCK Fuse

15A

Door Latch Assembly - Cargo (Passenger/Cargo with AU3)

26

REAR DR LCK Fuse

15A

Door Contact Plate Left Side (E26), Door Contact Plate - Right Side (E24/YA2) and Door Latch Assembly - Cargo (Passenger/Cargo)

27

FRT DR LCK Fuse

15A

Door Latch Assembly - Driver (AU3) and Door Latch Assembly - Passenger (AU3)

28

REAR PASS DR UNLCK Fuse

15A

Door Contact Plate - Left Side (E26/AU3), Door Contact Plate - Right Side (Passenger/Cargo with AU3) and Fuse Block - Body

29

UPFTR PARK LAMPS Fuse

10A

X320 (YF2/YF7)

30

FRT PASS DR UNLCK Fuse

15A

Door Latch Assembly - Passenger (AU3)

31

DRV DR UNLCK Fuse

15A

Door Latch Assembly - Driver (AU3)

32

AIRBAG/AOS Fuse

10A

Inflatable Restraint Sensing and Diagnostic Module(SDM), Inflatable Restraint Vehicle Rollover Sensor (ASF) and Inflatable Restraint Front Passenger Presence System (PPS) Sensor (Light Duty without YF7)

33

RT REAR PRK LAMP Fuse

10A

Tail/Stop and Turn Signal Lamp - Right (Passenger/Cargo)

34

LT REAR PRK LAMP Fuse

10A

Tail/Stop and Turn Signal Lamp - Left (Passenger/Cargo) and , License Lamp (Passenger/Cargo)

35

UPFTR AUX 2 Fuse

50A

Blunt Cut (YF1), X321 (YF2/YF7) and X222 (YF2/YF7)

36

UPFTR AUX 1 Fuse

50A

Blunt Cut (YF1), X321 (YF2/YF7) and X222 (YF2/YF7)

37

REAR BLWR Fuse

30A

Blower Motor Low Speed Relay - Auxiliary (C36/C69), Blower Motor Medium Speed Relay - Auxiliary (C36/C69) and Blower Motor High Speed Relay - Auxiliary (C36/C69)

38

EMPTY

--

Not Used

39

RUN Relay

--

HVAC 1, HVAC 2, CMPS Fuses and UPFTR AUX 2 Relay

40

PRK LAMP Relay

--

LT REAR PRK LAMP, RT REAR PRK LAMP, FRT PRK LAMP, TRLR PRK LAMP, AUX PRK LAMP and UPFTR PARK LMPS Fuses

41

EMPTY

--

Not Used

42

UPFTR AUX 2 Relay

--

UPFTR AUX 2 Fuse

43

RAP Relay

--

PWR WDO Circuit Breaker

44

REAR DEFOG Relay

--

REAR DEFOG and OSRVM HTR Fuses

45

PWR WDO Circuit Breaker

25A

Window Switch - Driver (A31) and Window Switch - Passenger (A31)

46

PWR SEATS Circuit Breaker

30A

Seat Adjuster Switch - Driver (AG1) and Seat Adjuster Switch - Passenger (AG1)

Important: Relays listed below are non-serviceable Printed Circuit Board (PCB) relays and are internal to the block.

--

UPFTR CTSY LAMPS PCB Relay

--

UPFTR CTSY LMPS Fuses

--

DRV UNLCK PCB Relay

--

DRV DR UNLCK Fuse

--

PASS/CGO UNLCK PCB Relay

--

FRT PASS DR UNLCK and REAR PASS DR UNLCK Fuses

--

CARGO UNLCK PCB Relay

--

CARGO DR UNLCK Fuse

--

ALL DRS LOCK PCB Relay

--

FRT DR LCK and REAR DR LCK Fuses

--

BCK/UP LAMP PCB Relay

--

AUX/TRLR BCK/UP and T/LAMP BCK UP Fuses

Fuse Block - Body Top View


Object Number: 1875828  Size: LF

Fuse Block - Body Bottom View


Object Number: 1875835  Size: LF

Fuse Block - Body X1


Object Number: 1884159  Size: CH

Connector Part Information

  • OEM: 13578271
  • Service: See Catalog
  • Description: 62-Way F 2.8 Series (BK)

Terminal Part Information

  • Pins: 60, 61
  • Terminal/Tray: 7116-4122-02/10
  • Core/Insulation Crimp: D/G
  • Release Tool/Test Probe: 12094430/J-35616-42 (RD)
  • Pins: 4-6, 8, 11, 14, 18-20, 22, 24, 28, 30, 31, 33, 34, 49, 55, 57, 59
  • Terminal/Tray: 8100-4443/22
  • Core/Insulation Crimp: E/A
  • Release Tool/Test Probe: 15315247/J-35616-35 (VT)
  • Pins: 7, 9, 13, 15, 16, 23, 26, 29, 32, 46, 47, 52
  • Terminal/Tray: 8100-4444/22
  • Core/Insulation Crimp: 2/A
  • Release Tool/Test Probe: 15315247/J-35616-35 (VT)
  • Pins: 11, 12
  • Terminal/Tray: 8100-4445/22
  • Core/Insulation Crimp: See Terminal Repair Kit
  • Release Tool/Test Probe: 15315247/J-35616-35 (VT)

Fuse Block - Body X1

Pin

Wire

Circuit

Function

1-3

--

--

Not Used

4

0.35 WH

193

Rear Defog Relay Control (C49/DE5/DE7)

5

0.5 L-BU

244

Passenger Door Lock Switch Lock Control (AU3)

6

0.35 D-BU

45

Park Lamp Control

7

1 BN

2109

Trailer Park Lamps Control (UY7)

8

0.5 RD/WH

5340

Battery Positive Voltage (AU0/UJ6)

9

1 BN

2109

Trailer Park Lamps Control (Cutaway)

10

--

--

Not Used

11

0.5 YE

356

Driver Door Lock Relay Unlock Control (AU3)

0.5 YE

356

Driver Door Lock Relay Unlock Control (AU3 with PRP)

12

0.5 BN

2309

Front Park Lamps Control

0.8 BN

2309

Front Park Lamps Control (C99)

13

0.8 D-BU/WH

149

Courtesy Lamp Control (Cutaway)

0.8 D-BU/WH

149

Courtesy Lamp Control (without YF2/YF7)

14

0.35 RD/WH

540

Battery Positive Voltage

15

1 RD/WH

340

Battery Positive Voltage

16

1 YE

618

Left Rear Turn Signal Lamp Control (Passenger/Cargo)

17

--

--

Not Used

18

0.5 L-BU

244

Passenger Door Lock Switch Lock Control (AU3)

19

0.5 YE

356

Driver Door Lock Relay Unlock Control (AU3)

20

0.5 GY/BK

690

Courtesy Lamp Control (YF2/YF7)

21

--

--

Not Used

22

0.5 BK

350

Ground

23

0.8 D-BU/WH

1315

Right Front Turn Signal Lamp Control (DE5/DE7)

24

0.35 BK/WH

351

Ground

25

--

--

Not Used

26

0.8 RD/WH

4440

Battery Positive Voltage (C49/DE5/DE7)

27

--

--

Not Used

28

0.35 YE

43

Ignition Voltage

29

1 D-GN

619

Right Rear Turn Signal Lamp Control (Passenger/Cargo)

30

0.35 BN

341

Ignition Voltage

31

0.35 RD/WH

2840

Battery Positive Voltage (without 8S8)

32

0.8 L-BU/WH

1314

Left Front Turn Signal Lamp Control (DE5/DE7)

33

0.35 BN/WH

230

Instrument Panel Lamps Dimming Control

34

0.35 BN

341

Ignition Voltage

35-45

--

--

Not Used

46

1 BN

141

Ignition Voltage

47

0.8 BN

141

Ignition Voltage (Diesel)

48

--

--

Not Used

49

0.35 YE

6817

LED Backlight Dimming Control (K34/W1Y)

50-51

--

--

Not Used

52

1 L-GN

1624

Trailer Backup Lamps Control (Cutaway/UY7/8S3)

53-54

--

--

Not Used

55

0.35 BN

6136

Supply Voltage (K34/W1Y)

56

--

--

Not Used

57

0.35 D-BU

38

Backup Lamp Relay Control

58

--

--

Not Used

59

0.35 OG

300

Ignition Voltage

60

5 BN

541

Ignition Voltage (YF2/YF7)

61

5 RD/BK

1042

Battery Positive Voltage (YF7)

62

--

--

Not Used

Fuse Block - Body X2


Object Number: 1884160  Size: CH

Connector Part Information

  • OEM: 13578273
  • Service: See Catalog
  • Description: 62-Way F 2.8, 6.3 Series (GY)

Terminal Part Information

  • Pins: 2, 3, 60-62
  • Terminal/Tray: 7116-4122-02/10
  • Core/Insulation Crimp: D/G
  • Release Tool/Test Probe: 12094430/J-35616-42 (RD)
  • Pins: 4, 6, 10, 16, 18, 22, 25-27, 29, 30, 34, 41, 47, 51, 52
  • Terminal/Tray: 8100-4443/22
  • Core/Insulation Crimp: E/A
  • Release Tool/Test Probe: 15315247/J-35616-35 (VT)
  • Pins: 7, 8, 14, 15, 24, 31-33, 43, 44, 48-50
  • Terminal/Tray: 8100-4444/22
  • Core/Insulation Crimp: 2/A
  • Release Tool/Test Probe: 15315247/J-35616-35 (VT)
  • Pins: 5, 11-13, 7, 32, 42, 43, 53
  • Terminal/Tray: 8100-4445/22
  • Core/Insulation Crimp: Pins 5, 11, 12, 13 - F/D
  • Core/Insulation Crimp: Pins 7, 32, 42, 43, 53 - See Terminal Repair Kit
  • Release Tool/Test Probe: 15315247/J-35616-35 (VT)

Fuse Block - Body X2

Pin

Wire

Circuit

Function

1

--

--

Not Used

2

5 PU

293

Rear Defog Element Control (C49)

3

5 PU

293

Rear Defog Element Control (C49)

4

0.5 BN

2609

Right Rear Park Lamps Control (Passenger/Cargo)

5

3 RD/WH

3540

Battery Positive Voltage (AG1)

6

0.5 BN

2209

Rear Park Lamps Control (YF2/YF7)

7

0.8 D-BU/WH

149

Courtesy Lamp Control (Passenger)

0.8 D-BU/WH

149

Courtesy Lamp Control (Passenger/Cargo without YF2/YF7)

8

1 TN

294

Door Lock Actuator Unlock Control (Passenger/Cargo with AU3)

9

--

--

Not Used

10

0.5 RD/WH

3440

Battery Positive Voltage

11

3 RD/WH

3540

Battery Positive Voltage (AG2)

12

3 D-GN

1001

RAP 12-Volt Fuse Control (A31)

13

3 D-GN

1001

RAP 12-Volt Fuse Control (A31)

14

0.8 OG

2267

Mirror Heating Element Control (DE5/DE7)

15

0.8 OG

2267

Mirror Heating Element Control (DE5/DE7)

16

0.5 RD/WH

3440

Battery Positive Voltage (ASF)

17

--

--

Not Used

18

0.5 D-BU/WH

149

Courtesy Lamp Control

19-21

--

--

Not Used

22

0.5 RD/WH

3440

Battery Positive Voltage (Light Duty without C99 without YF7)

23

--

--

Not Used

24

1 YE

618

Left Rear Turn Signal Lamp Control (Passenger/Cargo)

25

0.35 BN

441

Ignition Voltage

26

0.35 BN

341

Ignition Voltage (C69/C36/ENC)

27

0.5 D-BU/WH

1315

Right Front Turn Signal Lamp Control (DE5/DE7)

28

--

--

Not Used

29

0.5 BN

2509

Left Rear Park Lamps Control (Passenger/Cargo)

30

0.35 BN

341

Ignition Voltage (C49/DE5/DE7/C60)

31

1 D-GN

619

Right Rear Turn Signal Lamp Control (Passenger/Cargo)

32

0.8 TN

294

Door Lock Actuator Unlock Control (AU3 with E24/YA2)

0.8 TN

294

Door Lock Actuator Unlock Control (AU3 with E26)

33

0.8 TN

694

Driver Door Lock Actuator Unlock Control (AU3)

34

0.35 BK/WH

351

Ground

35-40

--

--

Not Used

41

0.5 L-BU/WH

1314

Left Front Turn Signal Lamp Control (DE5/DE7)

42

1 GY

295

Door Lock Actuator Lock Control (AU3)

1 GY

295

Door Lock Actuator Lock Control (AU3)

43

1 GY

295

Door Lock Actuator Lock Control (AU3 with E26)

1 GY

295

Door Lock Actuator Lock Control (AU3 with E26/YA2)

44

1 TN/BK

1095

Right Rear Door Lock Actuator Unlock Control (Passenger/Cargo with AU3)

45-46

--

--

Not Used

47

0.5 RD/WH

4340

Battery Positive Voltage (DE5/DE7)

48

0.8 TN

294

Door Lock Actuator Unlock Control (AU3)

49

1 GY

295

Door Lock Actuator Lock Control (Passenger/Cargo with AU3)

50

1 TN

294

Door Lock Actuator Unlock Control (Passenger/Cargo with AU3)

51

0.35 BN

341

Ignition Voltage (C69)

52

0.35 BN/WH

230

Instrument Panel Lamps Dimming Control

53

0.8 L-GN

24

Backup Lamp Control (Passenger/Cargo)

0.8 L-GN

24

Backup Lamp Control (Passenger/Cargo)

54-59

--

--

Not Used

60

5 RD/WH

1740

Battery Positive Voltage (C69/C36/ENC)

61

5 RD/BK

1042

Battery Positive Voltage (YF1/YF2/YF7)

62

5 BN

541

Ignition Voltage (YF1/YF2/YF7)

Fuse Block - Rear (PRP) - Top View


Object Number: 828373  Size: SF

Fuse Block - Rear (PRP) - Top View

No.

Device

Rating

Description

1

Access Panel Relay - Left Side Rear

--

Access Panel Latches - Left Side Rear

2

Dome Fluorescent Work Lamps Fuse

10

Dome Fluorescent Work Lamps (UF2)

3

Panel Actuator Fuse

15

Access Panel Relays

4

--

--

Not Used

5

Access Panel Relay - Left Side Front

--

Access Panel Latches - Left Side Front

6

Access Panel Relay - Right Side

--

Access Panel Latches - Right Side

Fuse Block - Rear (PRP) Bottom View


Object Number: 828377  Size: SF

Connector Part Information

  • OEM: 63995
  • Service: See Catalog
  • Description: 21-Way F Fuse Block (BK)

Terminal Part Information

  • Terminal/Tray: See Terminal Repair Kit
  • Core/Insulation Crimp: See Terminal Repair Kit
  • Release Tool/Test Probe: See Terminal Repair Kit

Fuse Block - Rear (PRP) Bottom View

Pin

Wire

Circuit

Function

1

OG

740

Battery Positive Voltage

2

TN

294

Access Panel Left Front Side Lock Actuators Unlock Control

3

L-BU

195

Access Panel Left Side Front Relay Control

4

--

--

Not Used

5

OG

740

Battery Positive Voltage

6

OG

740

Battery Positive Voltage

7

PK

1092

Access Panel Left Rear Side Lock Actuators Unlock Control

8

L-GN

1391

Access Panel Left Side Rear Relay Control

9

--

--

Not Used

10

OG

740

Battery Positive Voltage

11

OG

740

Battery Positive Voltage

12

TN/BK

1095

Access Panel Right Side Lock Actuators Unlock Control

13

L-BU

1344

Access Panel Right Side Relay Control

14

--

--

Not Used

15

OG

740

Battery Positive Voltage

16

RD

1042

Battery Positive Voltage (UF2)

17

OG

840

Battery Positive Voltage (UF2)

18

RD

1042

Battery Positive Voltage

19

OG

740

Battery Positive Voltage

20-21

--

--

Not Used