GM Service Manual Online
For 1990-2009 cars only
Makes
🢒
GMC_Truck
🢒
2009
🢒
Sierra - 2WD
🢒
Transmission
🢒
Automatic Transmission - 4L60-E/4L65-E/4L70-E
🢒 Automatic Transmission Controls Schematics
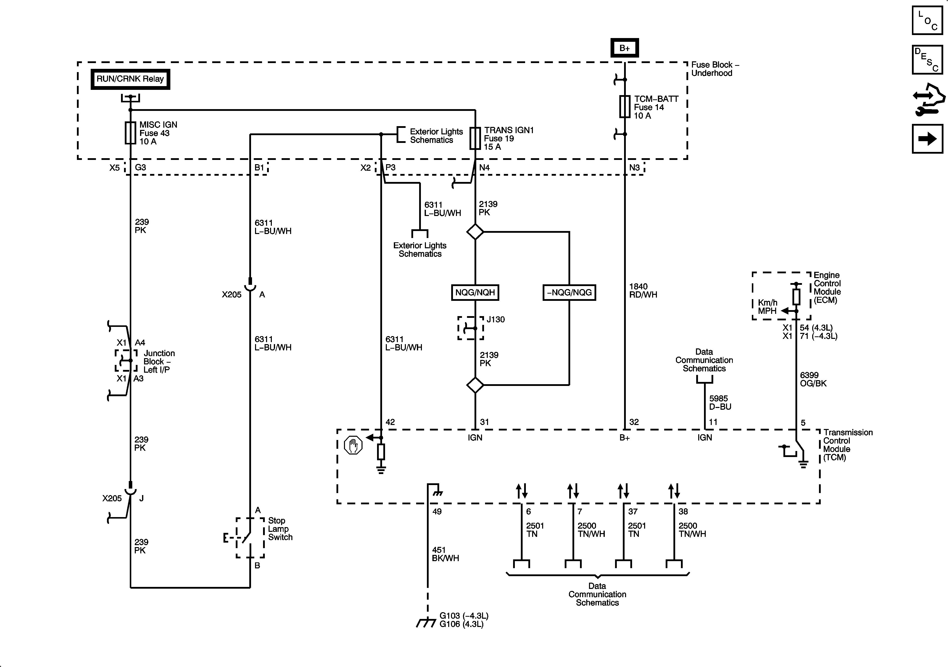
Figure
1:
Module Power, Ground and Serial Data
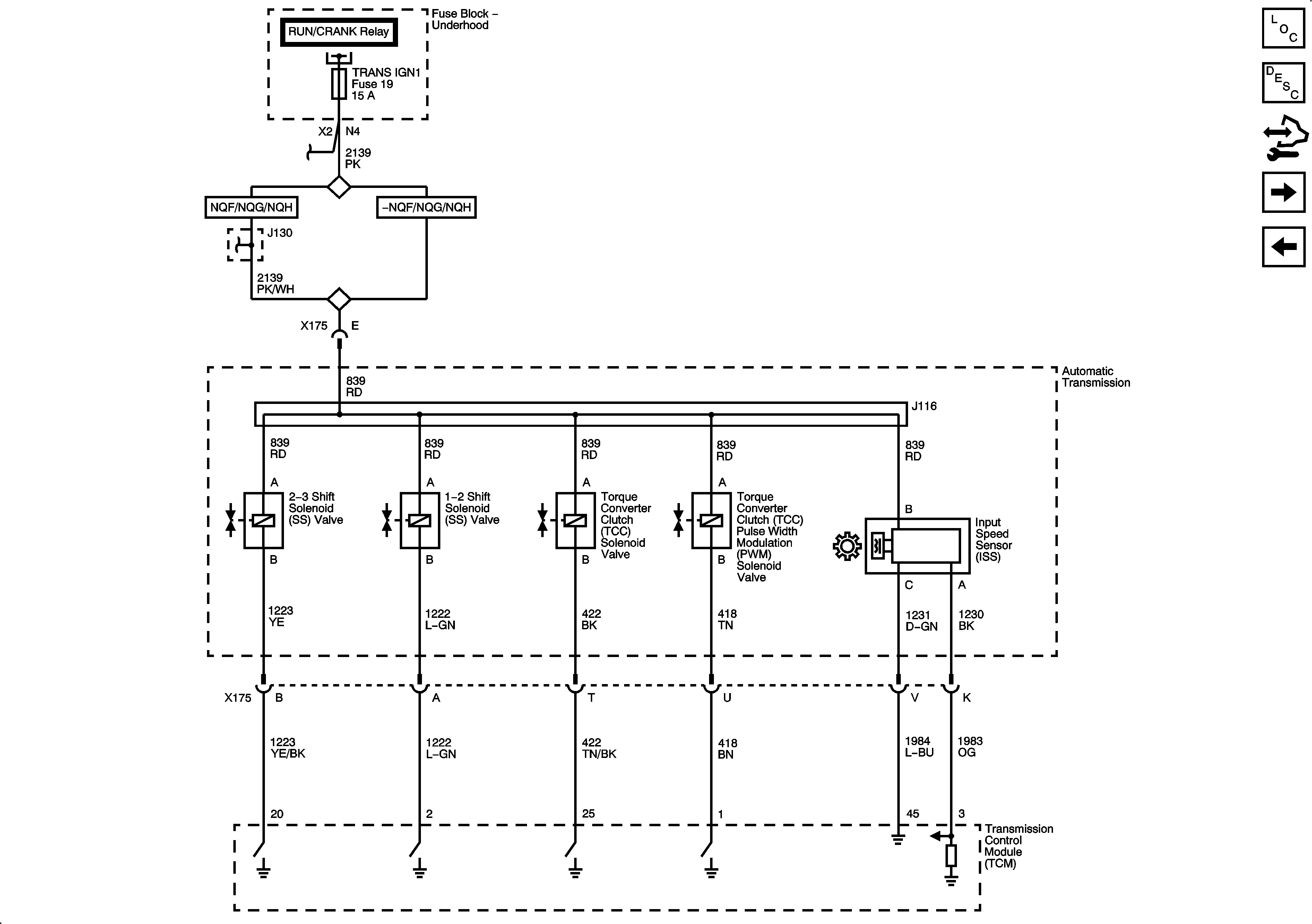
Figure
2:
Shift Controls
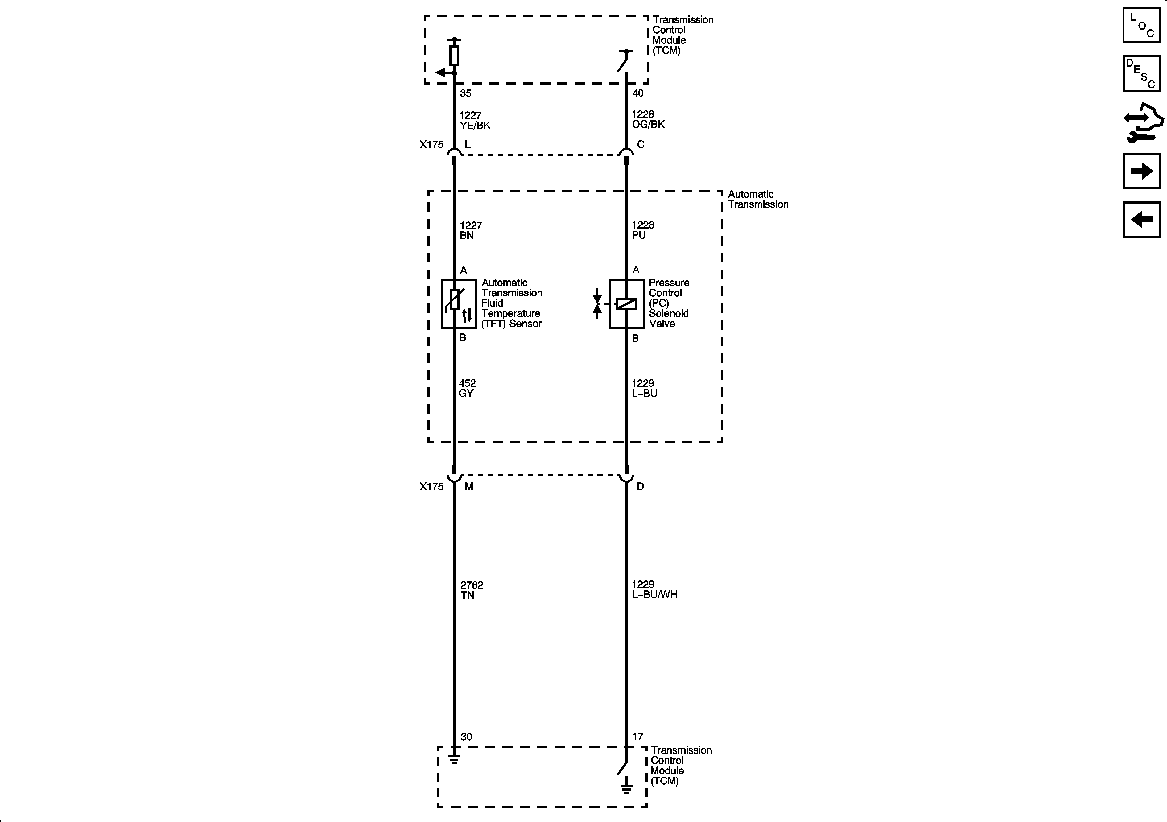
Figure
3:
Pressure and Temperature Controls
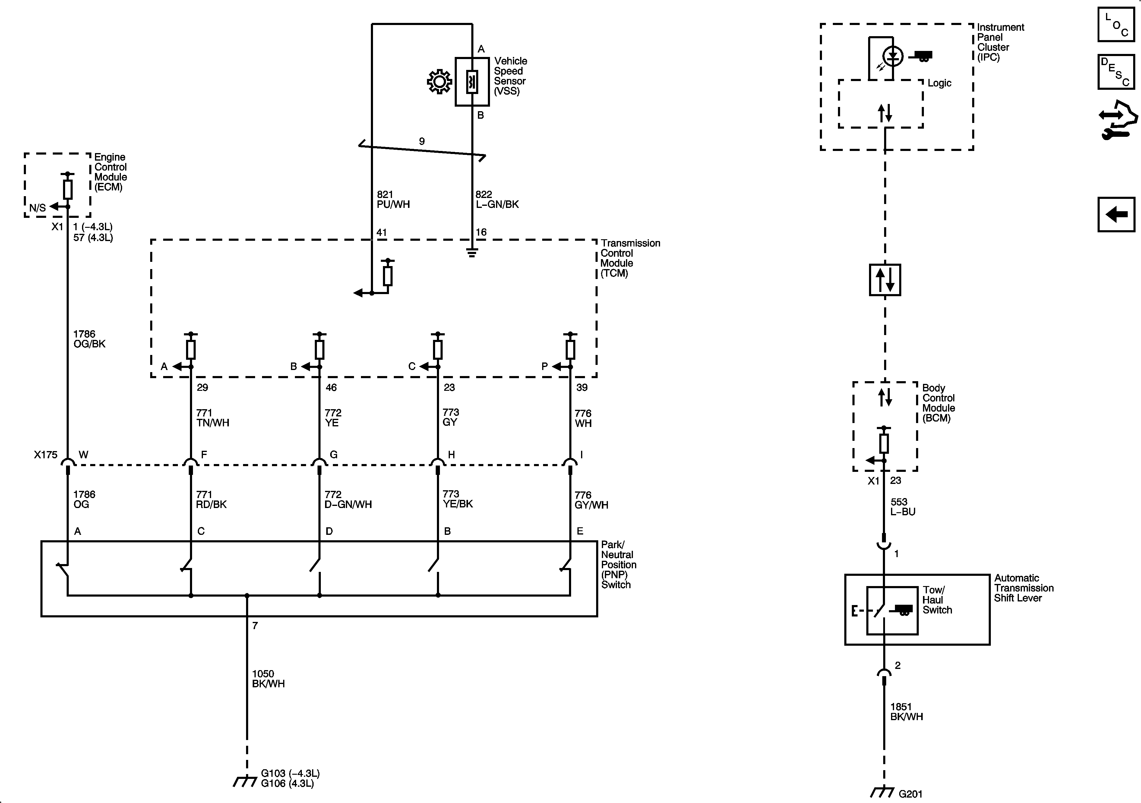
Figure
4:
PNP Signals, VSS Signal and Tow/Haul Signal