GM Service Manual Online
For 1990-2009 cars only
Makes
🢒
GMC_Truck
🢒
2005
🢒
TopKick C-Series (Conventional) C4/C5
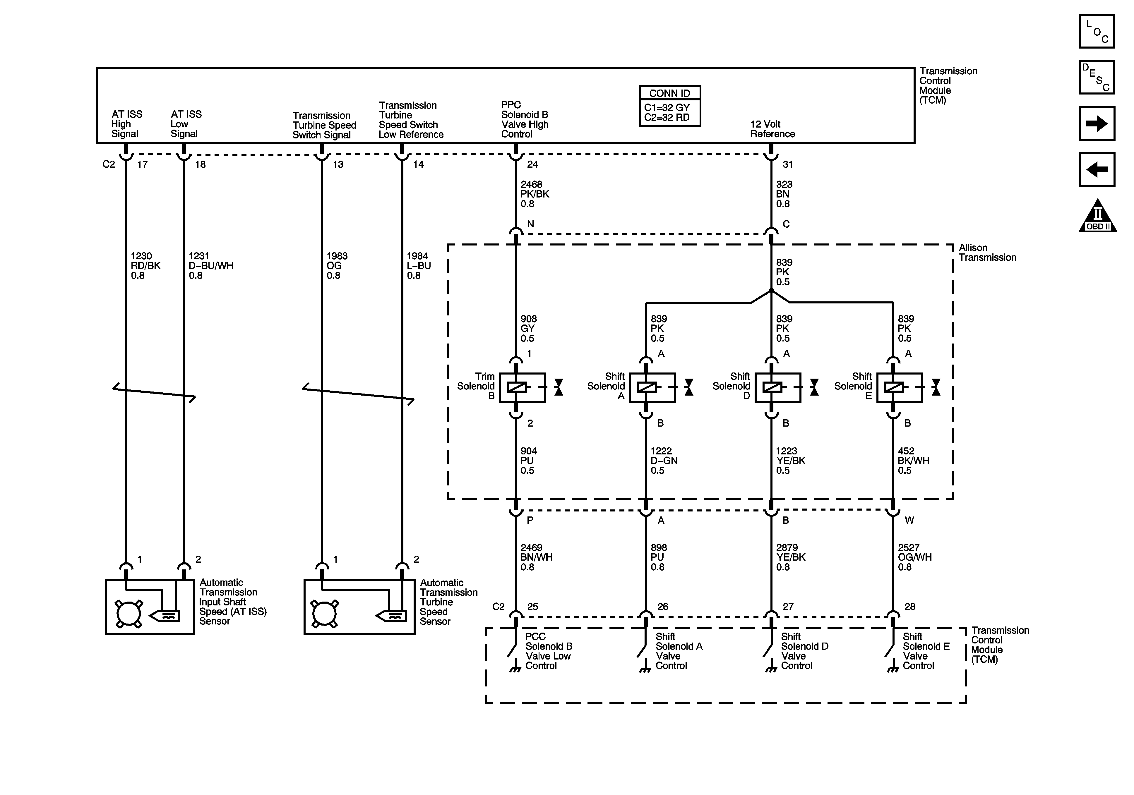
🢒 Speed Sensors, Trim B, and Shift Solenoids
Speed Sensors, Trim B, and Shift Solenoids
Speed Sensors, Trim B, and Shift Solenoids
Master Electrical Component List
TCC PWM and Trim A Solenoids, Pressure Switches, and TFT Sensor
PNP Switch and Trans Opt Connector
OBD II Symbol Description Notice