GM Service Manual Online
For 1990-2009 cars only
Makes
🢒
GMC_Truck
🢒
2004
🢒
TopKick C-Series (Conventional) C6/C7/C8
🢒
Suspension
🢒
Air Suspension
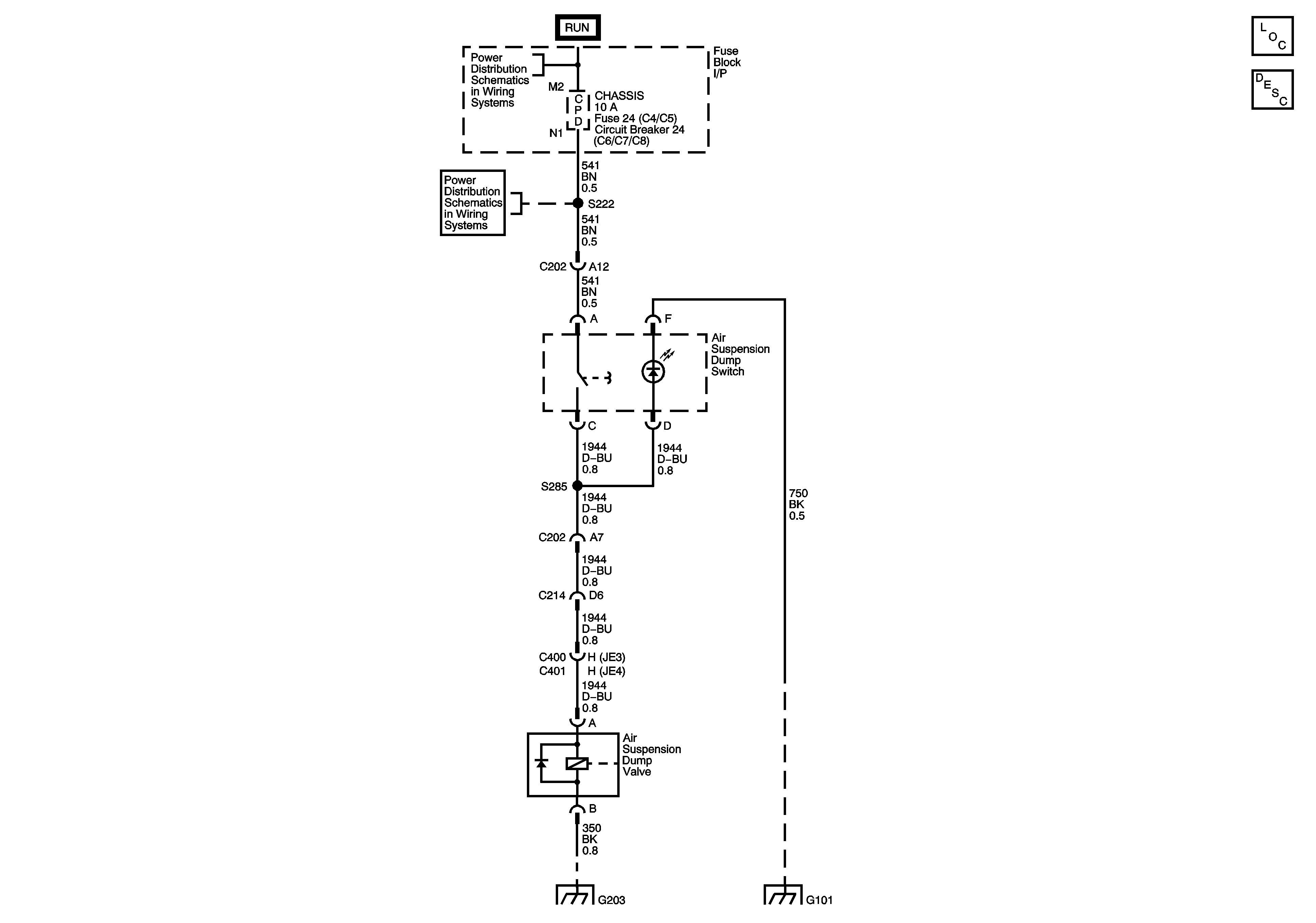
🢒 Suspension Controls Schematics
Master Electrical Component List
Air Suspension Description and Operation
Ignition Switch - RUN and ACC/RUN Bus Bars
AXLE/4WD, BRAKE, CHASSIS, and HTR/AC Fuses/Circuit Breakers
G200, G202, and G203 - 1 of 4
G101 - 1 of 2