GM Service Manual Online
For 1990-2009 cars only
Makes
🢒
Generic
🢒
2005
🢒
Unit Repair
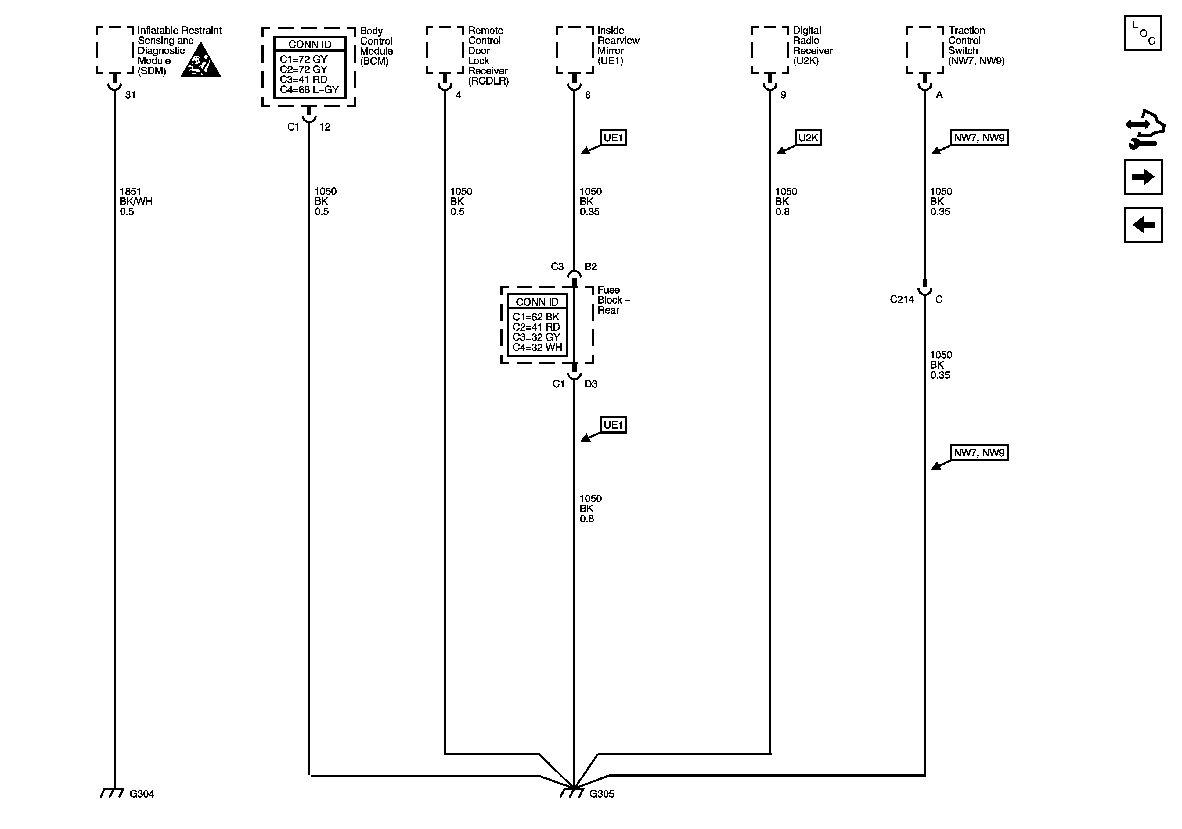
🢒 G304 and G305
G304 and G305
G304 and G305
Master Electrical Component List
Control Module References
G401 and G403
G303