GM Service Manual Online
For 1990-2009 cars only
Makes
🢒
HUMMER
🢒
2003
🢒
H2
🢒
Body and Accessories
🢒
Wiring Systems
🢒 SIR Schematics
Figure
1:
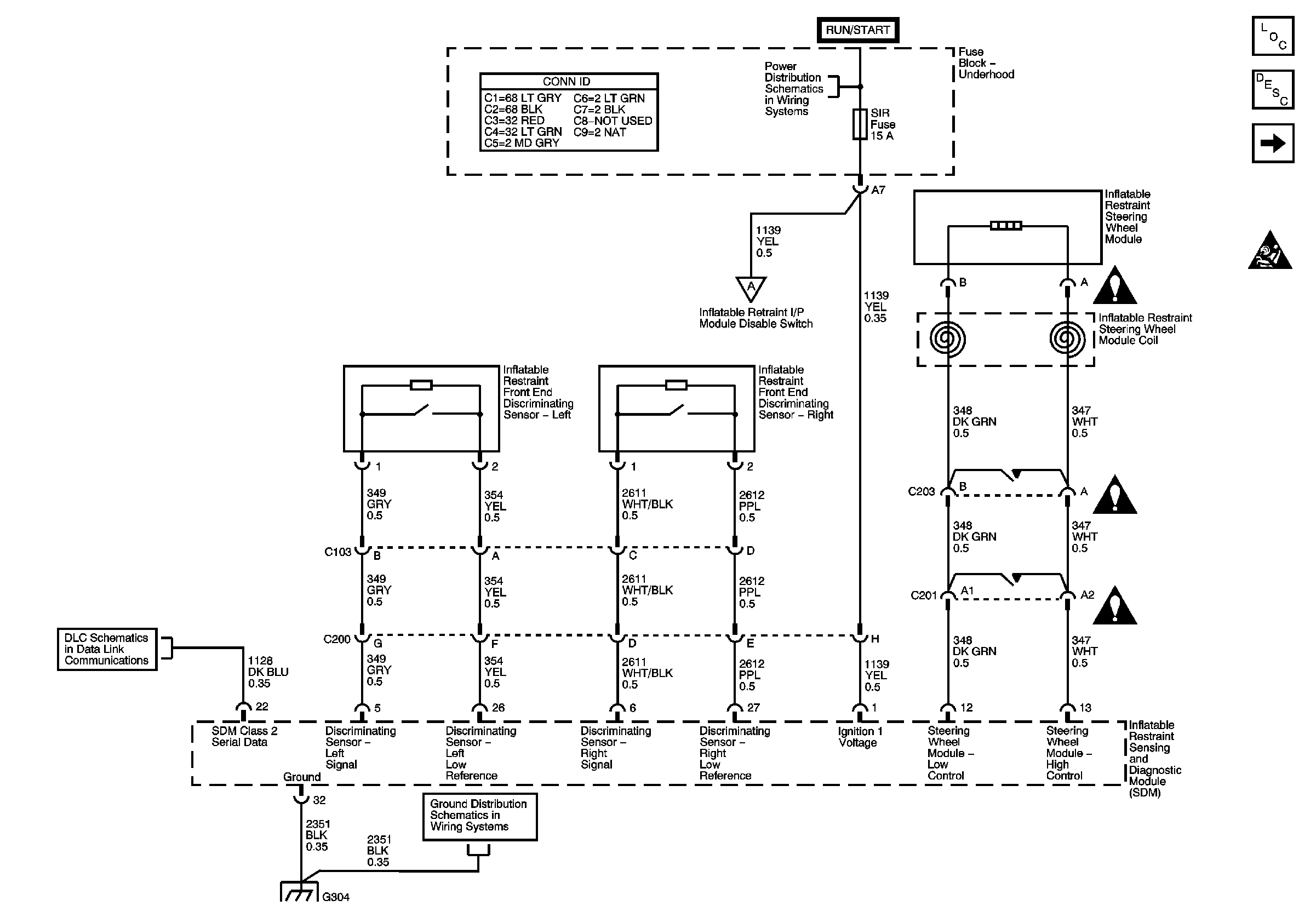
SDM Power, Grounding, DLC, Sensors, and Driver Air Bag
Master Electrical Component List
SIR System Description and Operation
Passenger Air Bag and Defeat Switch
SIR Caution for Zoning
ACCY/RUN/ and RUN/START Bus Bars
Passenger Air Bag and Defeat Switch
SIR Schematic Icons
SIR Schematic Icons
SIR Schematic Icons
G302, G304, and G306
Splice Pack SP206, SP207 and Dedicated TAC Serial Data Circuits
Figure
2:
Passenger Air Bag and Defeat Switch
Master Electrical Component List
SIR System Description and Operation
SDM Power, Grounding, DLC, Sensors, and Driver Air Bag
SIR Caution for Zoning
SDM Power, Grounding, DLC, Sensors, and Driver Air Bag
INT PARK Fuse
Illumination - Transfer Case Control, Height Control, Inflatable Restraint Disable, and Rear Heated Seat Switches, and PRNDL Lamps
CKT 1050, S203, S215, S302, S303, and S351
CKT 1050, S203, S215, S302, S303, and S351
CKT 1050, S203, S215, S302, S303, and S351
SIR Schematic Icons
SIR Schematic Icons