GM Service Manual Online
For 1990-2009 cars only
Figure 1:

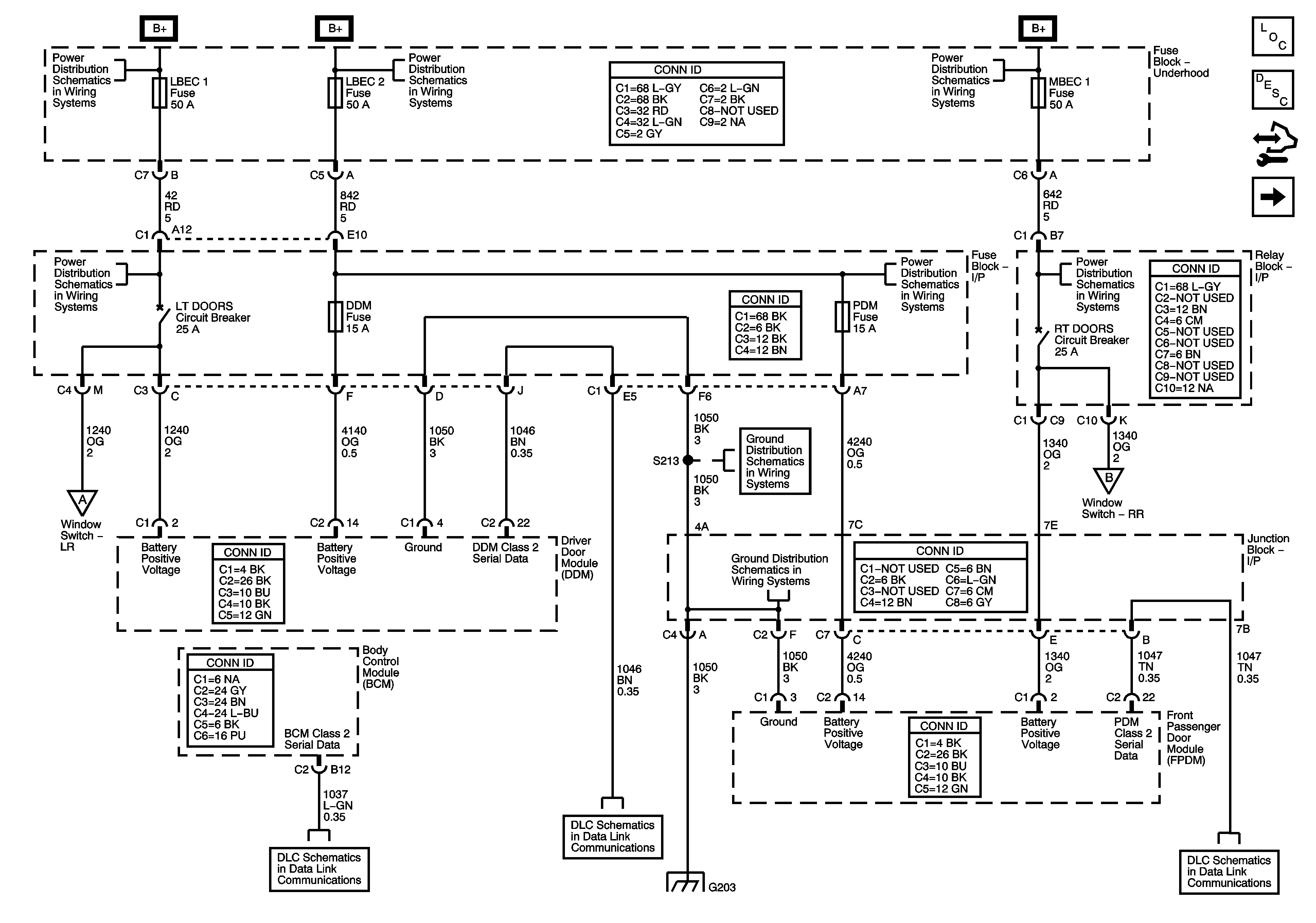
Door Modules -- Power, Grounding, and DLC


Object Number: 1507265  Size: FS
Master Electrical Component List
Power Windows Description and Operation
Front Door Windows
B+Bus
LBEC 1, LBEC 2, INFO, FPDM, AUX PWR, DDM, LOCKS, TBC 2A, 2B, and 2C, and LT DOORS Circuit Breaker
B+Bus
LBEC 1, LBEC 2, INFO, FPDM, AUX PWR, DDM, LOCKS, TBC 2A, 2B, and 2C, and LT DOORS Circuit Breaker
B+Bus
STUD 1, STUD 2, VSES/ECAS, BLOWER, ABS, MBEC 1 Fuses, RT DOORS and SEATS Circuit Breakers
Rear Door Windows
Power, Ground, DLC, and Splice Pack SP205
CKT 1050: S301 and S213
CKT 1050: G203, S302, S303, S351, and S215
CKT 1050: G203, S302, S303, S351, and S215
Power, Ground, DLC, and Splice Pack SP205
Power, Ground, DLC, and Splice Pack SP205
Rear Door Windows
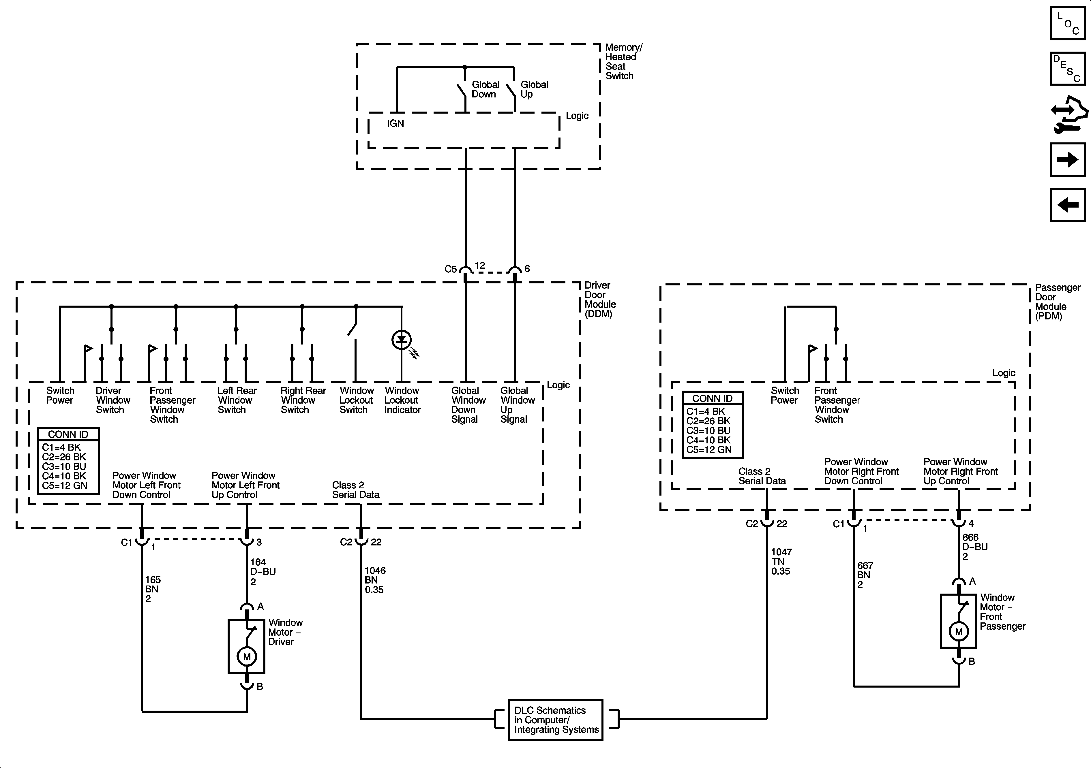
Figure 2:

Front Door Windows


Object Number: 1507297  Size: FS
Master Electrical Component List
Power Windows Description and Operation
Rear Door Windows
Door Modules - Power, Grounding, and DLC
Door Lock/Indicator Schematics
Driver Window, Door, and Seat Switches
Outside Mirror Schematics
Door Lock/Indicator Schematics
Front Passenger Window, Door, and Seat Switches
Power, Ground, DLC, and Splice Pack SP205
Figure 3:

Rear Door Windows


Object Number: 1507299  Size: FS
Master Electrical Component List
Power Windows Description and Operation
Front Door Windows
Power, Ground, DLC, and Splice Pack SP205
Door Modules - Power, Grounding, and DLC
Door Modules - Power, Grounding, and DLC
G302, G304, and G306
G302, G304, and G306