GM Service Manual Online
For 1990-2009 cars only
Makes
🢒
HUMMER
🢒
2008
🢒
H2
🢒
Driveline/Axle
🢒
Rear Drive Axle
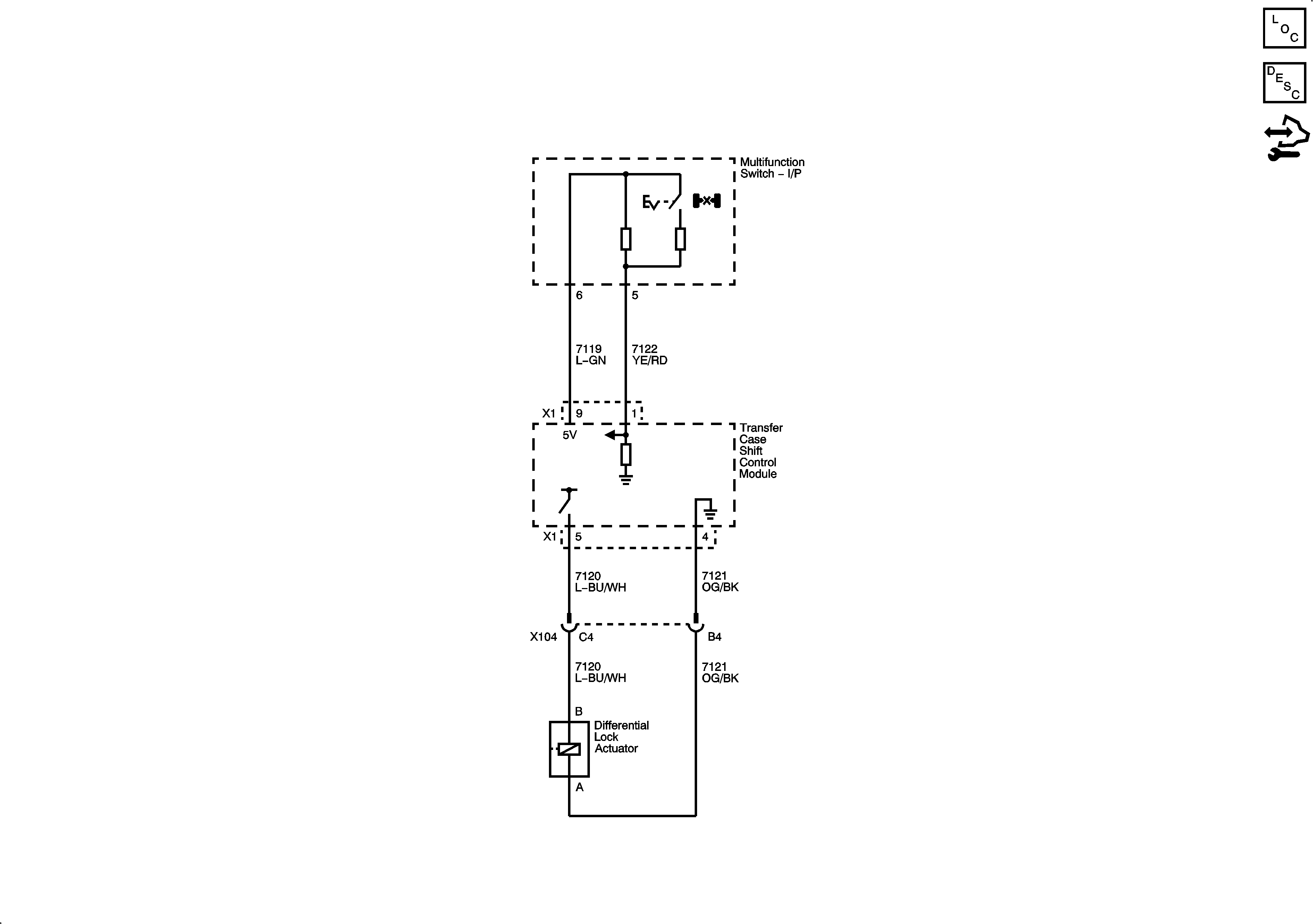
🢒 Differential Lock Schematics
Master Electrical Component List
Transfer Case Description and Operation
Control Module References