GM Service Manual Online
For 1990-2009 cars only
Makes
🢒
HUMMER
🢒
2008
🢒
H2
🢒
Safety and Security
🢒
Object Detection
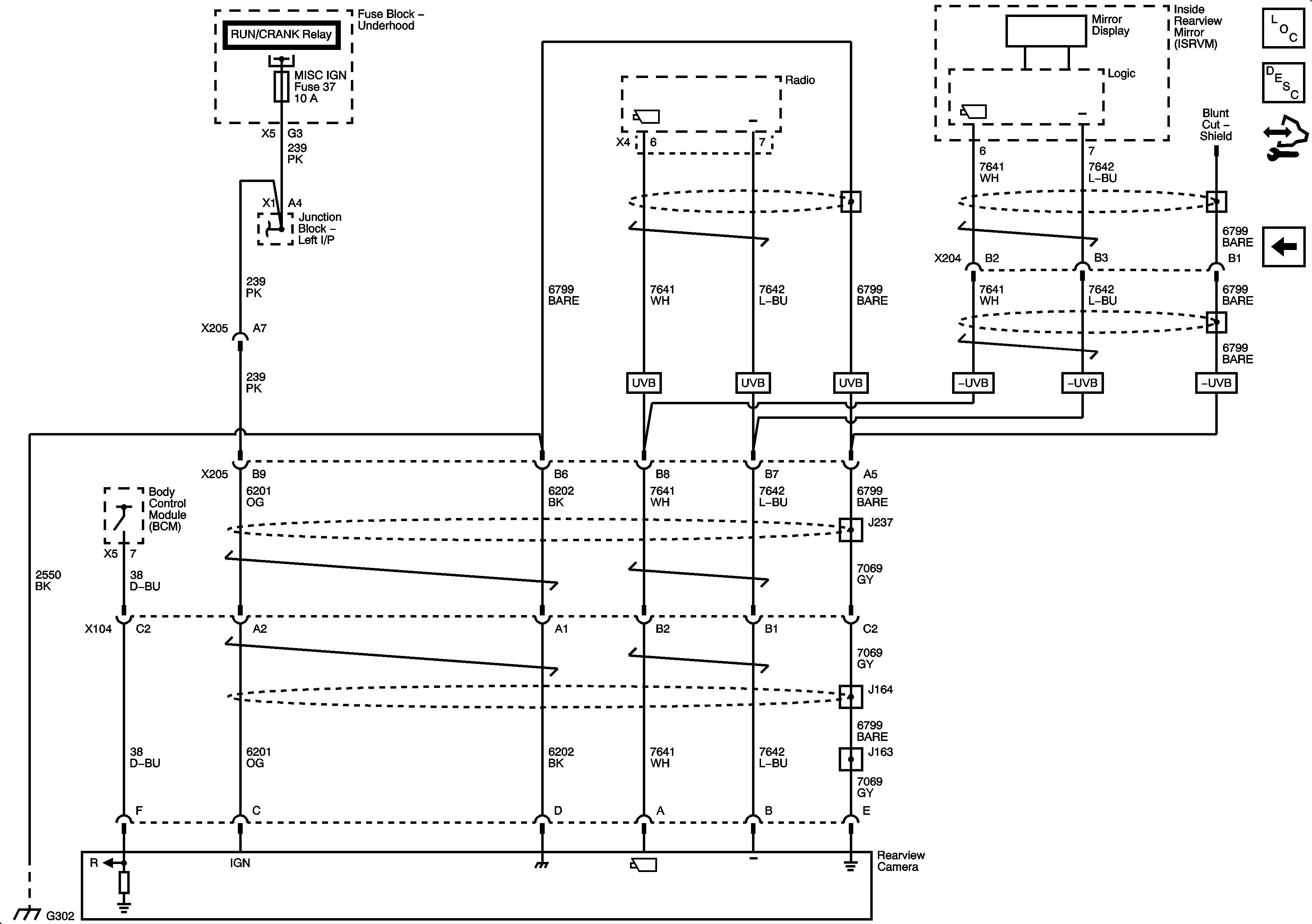
🢒 Object Detection Schematics
Rear Object Sensing (UD7)
Master Electrical Component List
Object Detection Description and Operation Rear Vision Camera
Control Module References