GM Service Manual Online
For 1990-2009 cars only
Figure 1:

Module Power, Ground, Serial Data and Front Sensors


Object Number: 2097255  Size: FS
Figure 2:

Steering Wheel and I/P Module


Object Number: 2097256  Size: FS
Figure 3:

Side Impact Modules and Sensors


Object Number: 2097257  Size: FS
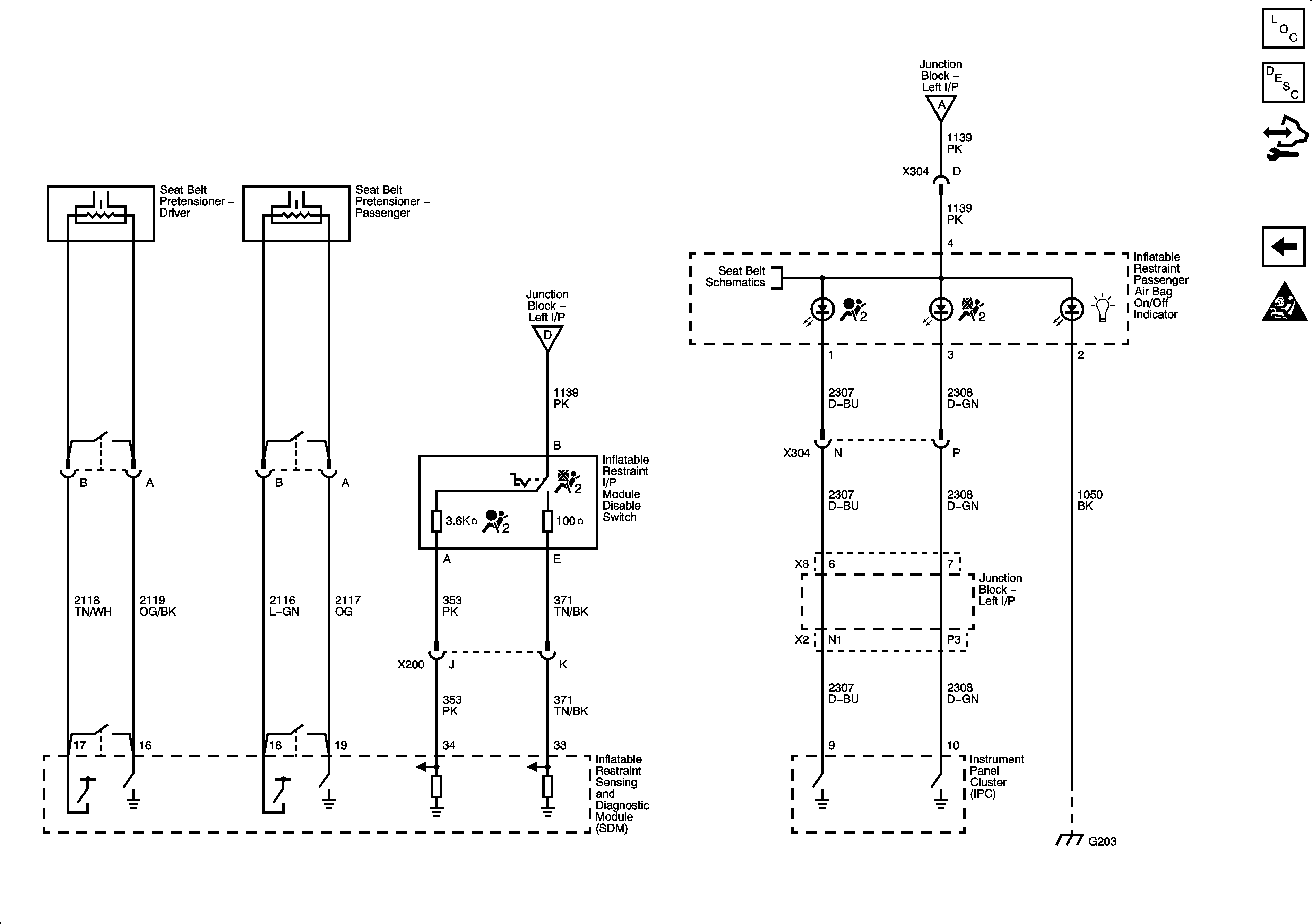
Figure 4:

Seat Belt Pretensioners and Air Bag Indicator


Object Number: 2097258  Size: FS