GM Service Manual Online
For 1990-2009 cars only
Makes
🢒
HUMMER
🢒
2006
🢒
H3
🢒
Accessories
🢒
Navigation Systems
🢒 Navigation System Schematics
Master Electrical Component List
Navigation System Description and Operation
Control Module References
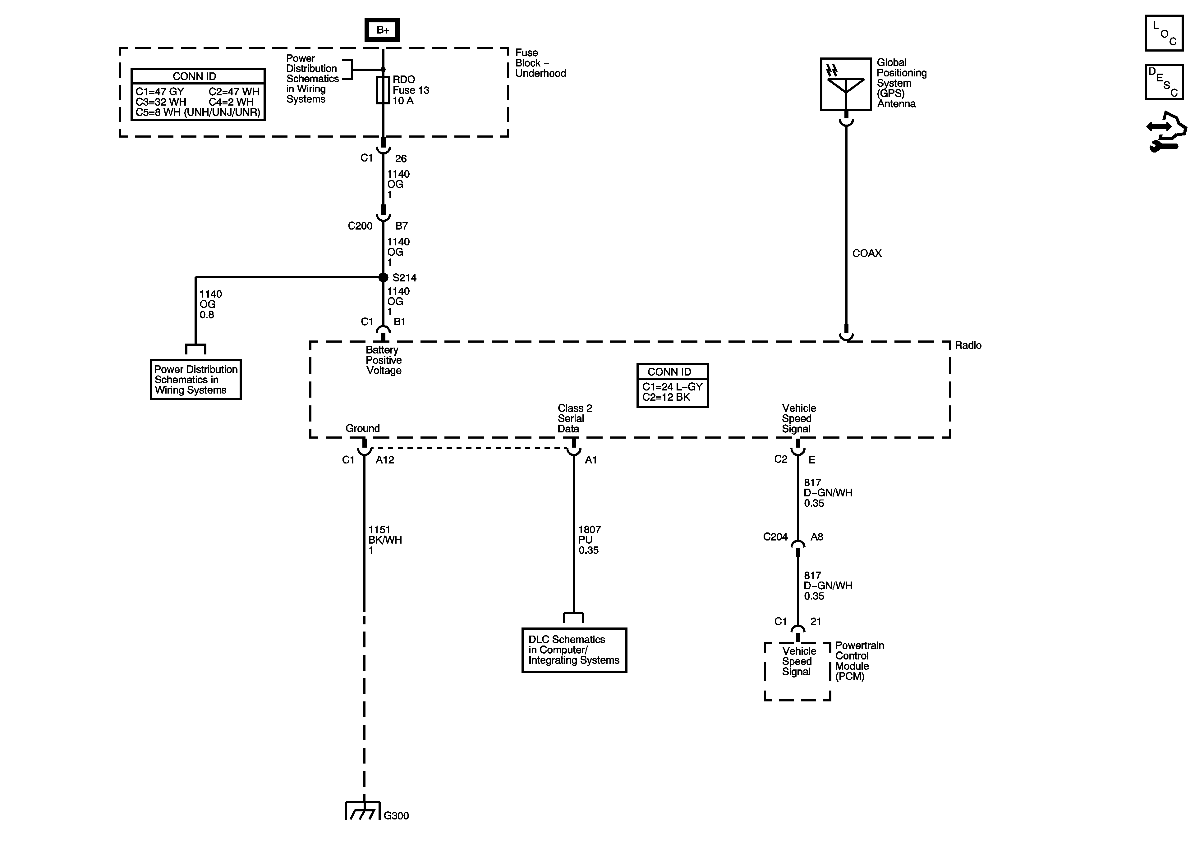
B+ Bus - Underhood Fuse Block - 1 of 2
ABS/VSES1-SOL, ABS/VSES2-MTR, AUX PWR 1, AUX PWR 2, CLSTR, CNSTR VENT, PCM-B, RDO, STOP, and TCCM Fuses
G300, G310, and G320
Data Link Connector (DLC) Schematics