GM Service Manual Online
For 1990-2009 cars only
Makes
🢒
HUMMER
🢒
2006
🢒
H3
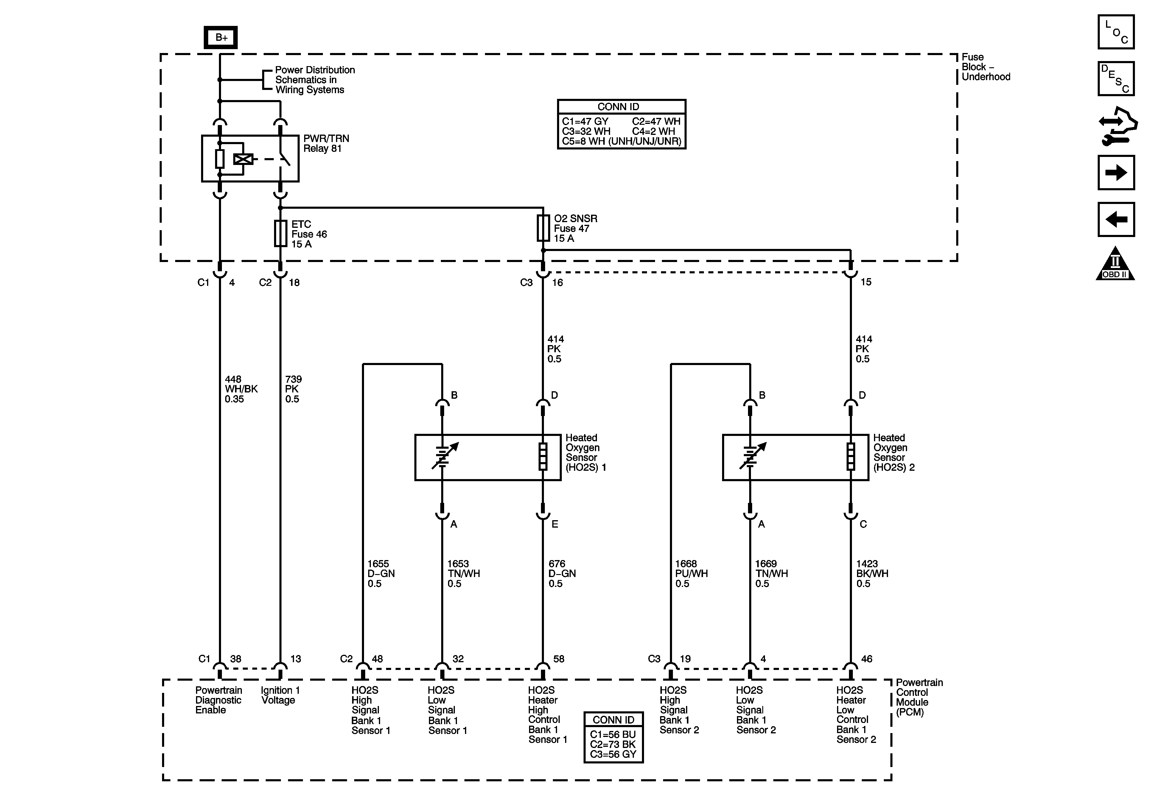
🢒 Engine Data Sensors - Oxygen Sensors
Engine Data Sensors - Oxygen Sensors
Engine Data Sensors - Oxygen Sensors
Master Electrical Component List
Powertrain Control Module Description
Control Module References
Ignition Controls - Sensors
Engine Data Sensors - Pressure, Temperature, and Throttle Actuator Controls
Engine Controls Schematic Icons
B+ Bus - Underhood Fuse Block - 1 of 2