GM Service Manual Online
For 1990-2009 cars only

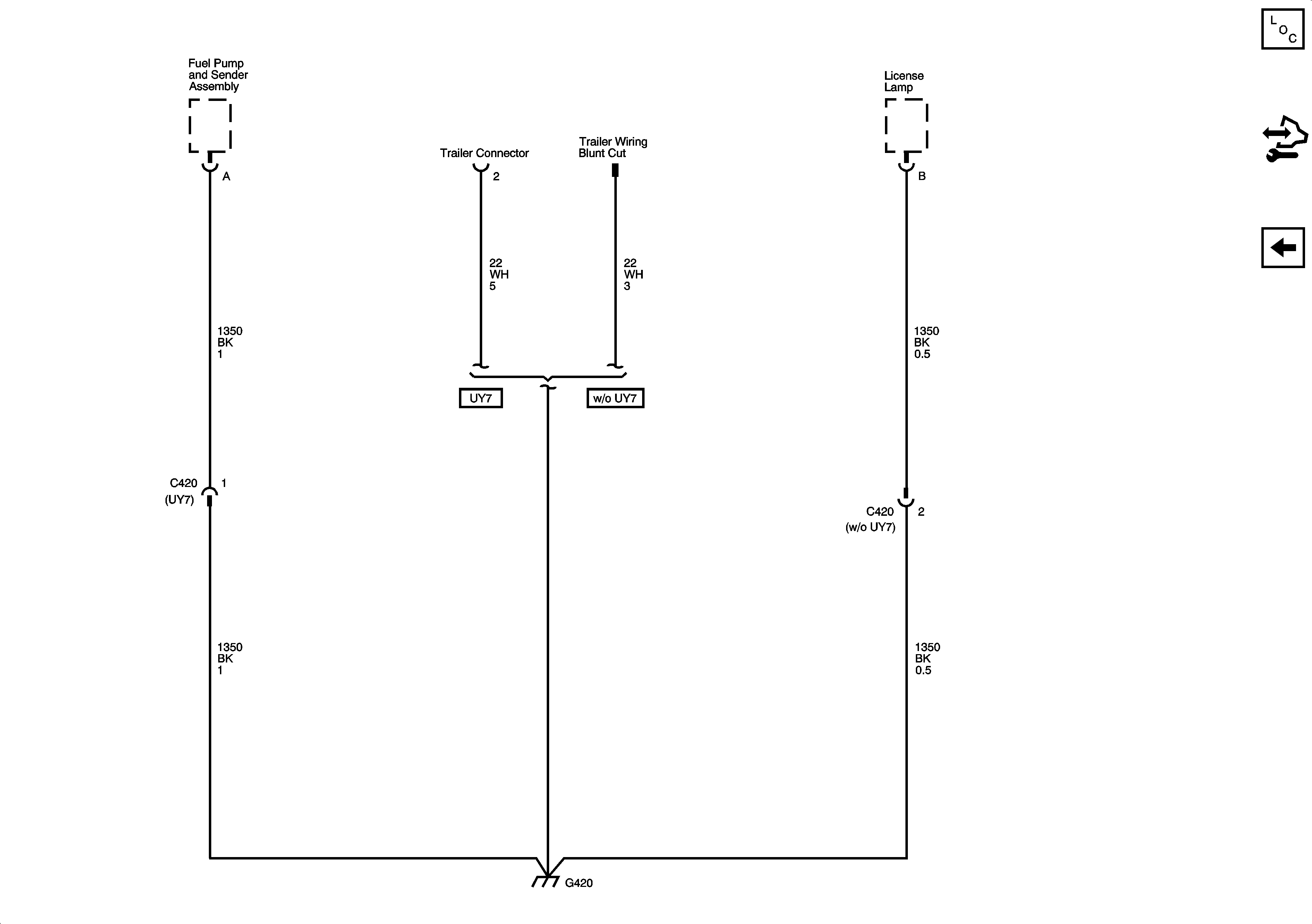
G420

G420


Object Number: 1566914  Size: FS
Master Electrical Component List
Control Module References
G350