GM Service Manual Online
For 1990-2009 cars only
Makes
🢒
HUMMER
🢒
2008
🢒
H3
🢒
Safety and Security
🢒
Remote Functions
🢒 Remote Function Schematics
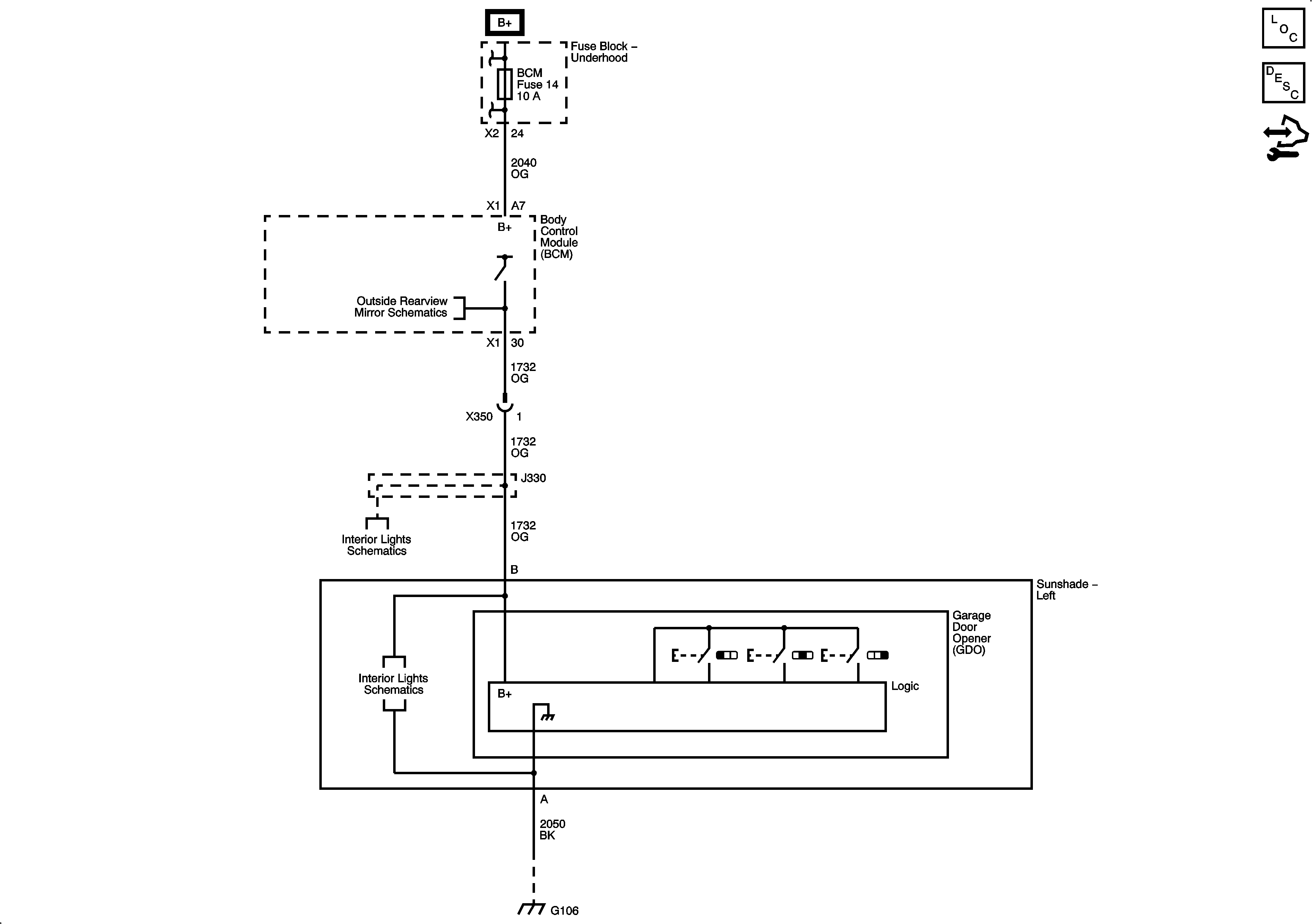
Garage Door Opener
Master Electrical Component List
Garage Door Opener Description and Operation
Control Module References