GM Service Manual Online
For 1990-2009 cars only
Makes
🢒
Holden
🢒
2008
🢒
Barina
🢒
Power and Signal Distribution
🢒
Wiring Systems and Power Management
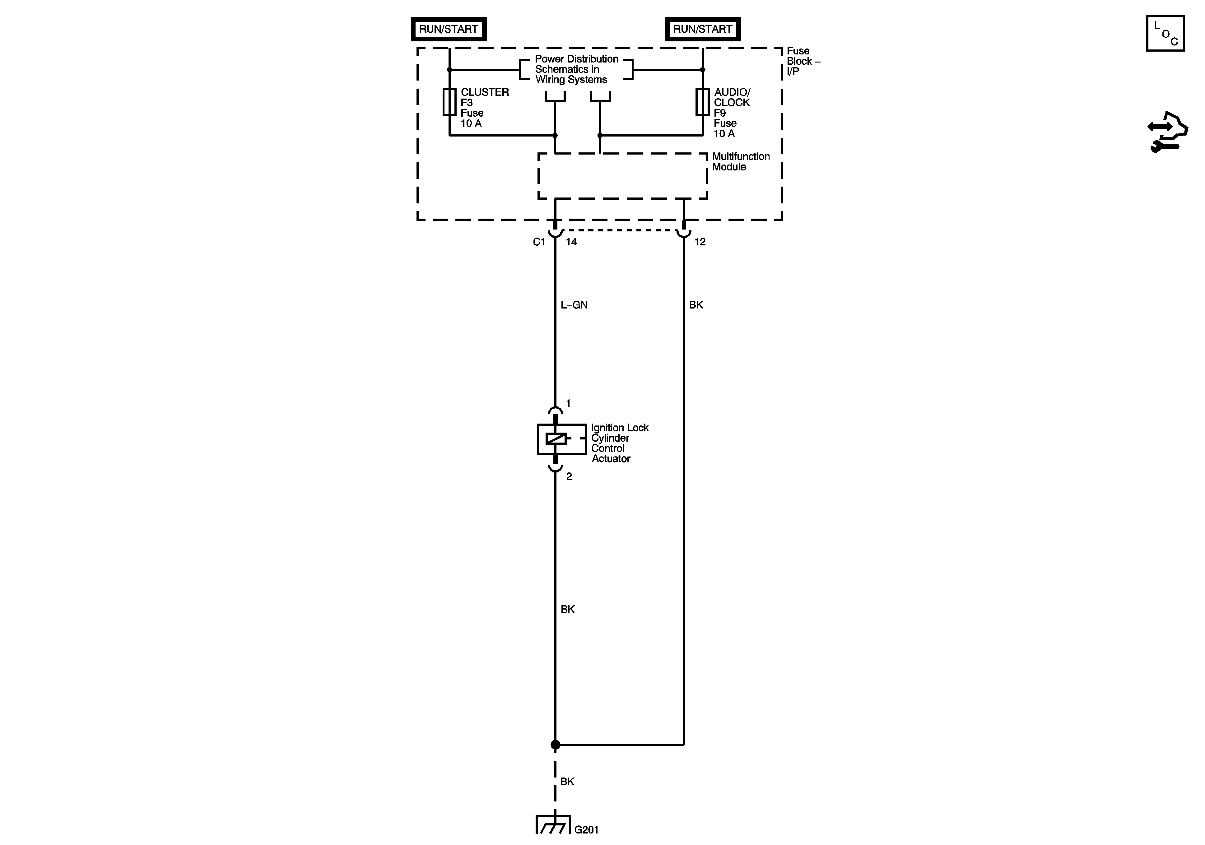
🢒 Ignition Lock Schematics
Ignition Lock Schematics Notchback
Master Electrical Component List Notchback
Control Module References
IGN 2/ST Fuse, Ignition Switch, CIGAR, AUDIO/CLOCK, CLUSTER, T/SIG Fuses
G201 - 1 of 3
Ignition Lock Schematics Hatchback
Master Electrical Component List (Hatchback)
Control Module References
Battery Feed
Ground Distribution G101, G102 - 1 of 2 and G105
Ground Distribution G202 - 1 of 3