GM Service Manual Online
For 1990-2009 cars only
Makes
🢒
Holden
🢒
2008
🢒
Barina
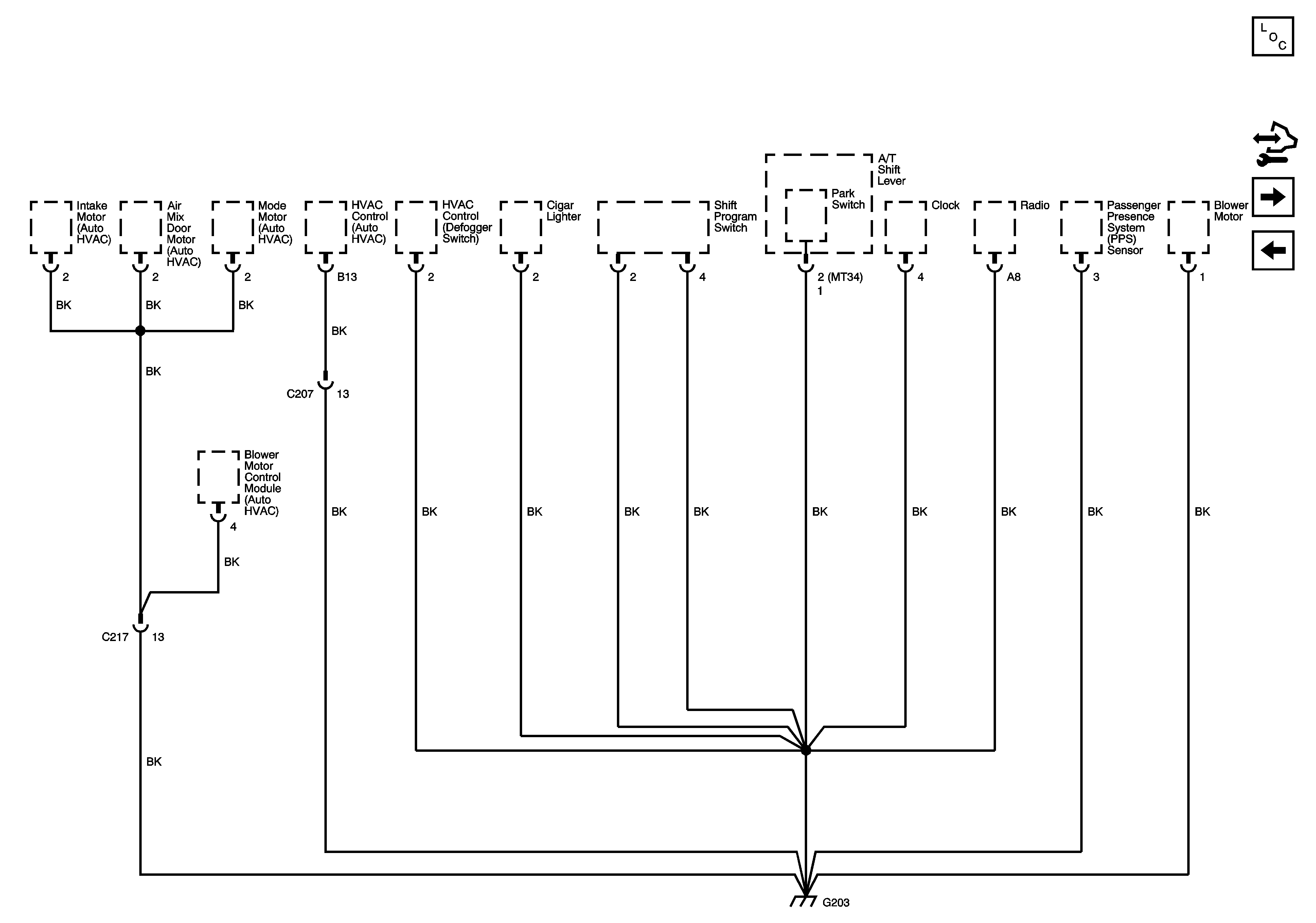
🢒 G203
G203
G203
Master Electrical Component List (Notchback)
Control Module References
G204, G301
G201 - 3 of 3, G202