GM Service Manual Online
For 1990-2009 cars only
Makes
🢒
Holden
🢒
2008
🢒
Barina
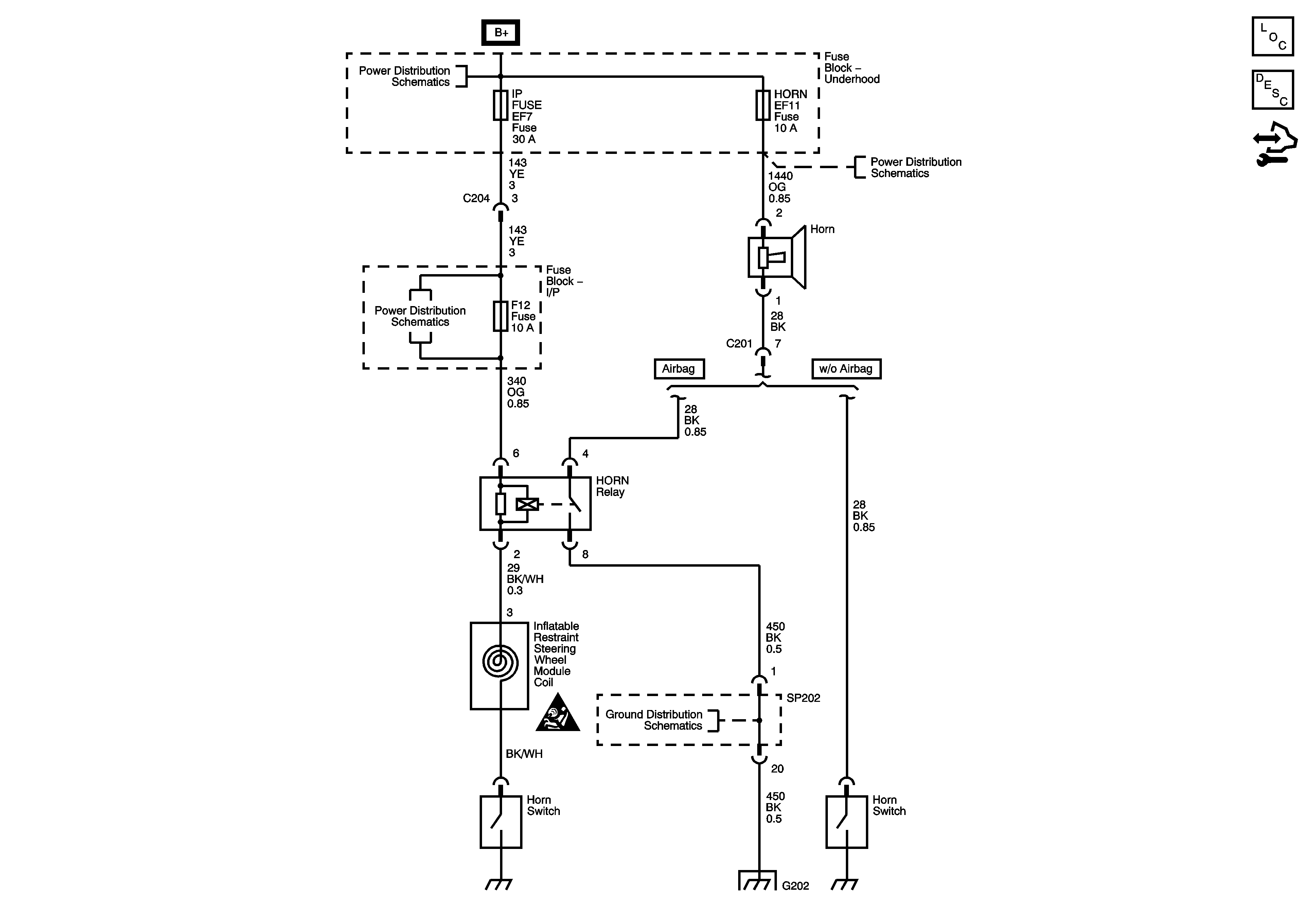
🢒 Horn
Horn
Master Electrical Component List (Hatchback)
Horns System Description and Operation
Control Module References
Battery Feed
Power Distribution Fuses EF4, 8, 11, 12 and 21
Power Distribution Fuses EF7,F12, 13, 14, 15, 16 and 23
SIR Caution for Zoning
Ground Distribution G202 - 1 of 3
Ground Distribution G202 - 1 of 3