GM Service Manual Online
For 1990-2009 cars only
Makes
🢒
Holden
🢒
2008
🢒
Captiva
🢒
Driver Information and Entertainment
🢒
Cellular, Entertainment, and Navigation
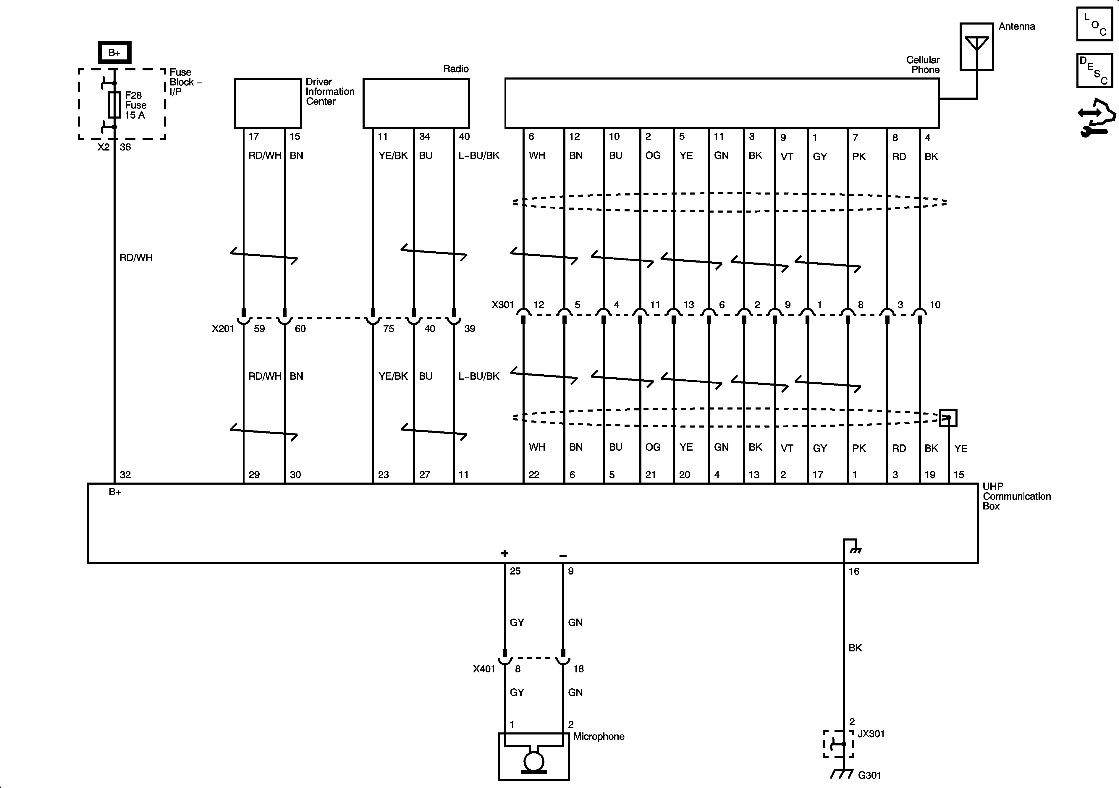
🢒 Cellular Telephone Schematics
Master Electrical Component List
Control Module References
F3, 5, 28, 32, 34 Fuses
G301 (1 of 3)