GM Service Manual Online
For 1990-2009 cars only
Makes
🢒
Holden
🢒
2008
🢒
VE Sedan
🢒
Body Systems
🢒
Mirrors
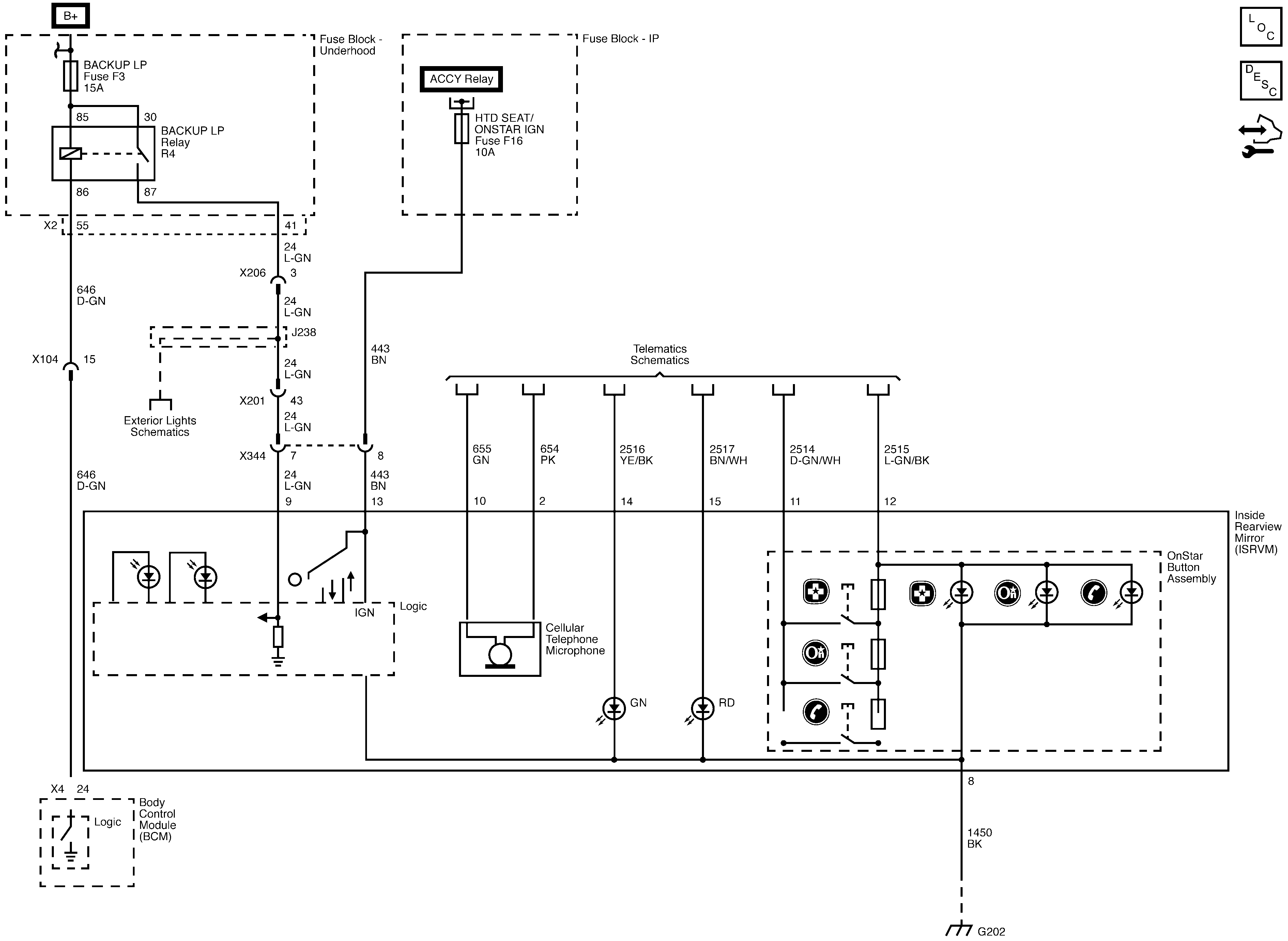
🢒 Inside Rearview Mirror Schematics
Figure
1:
Except U5J
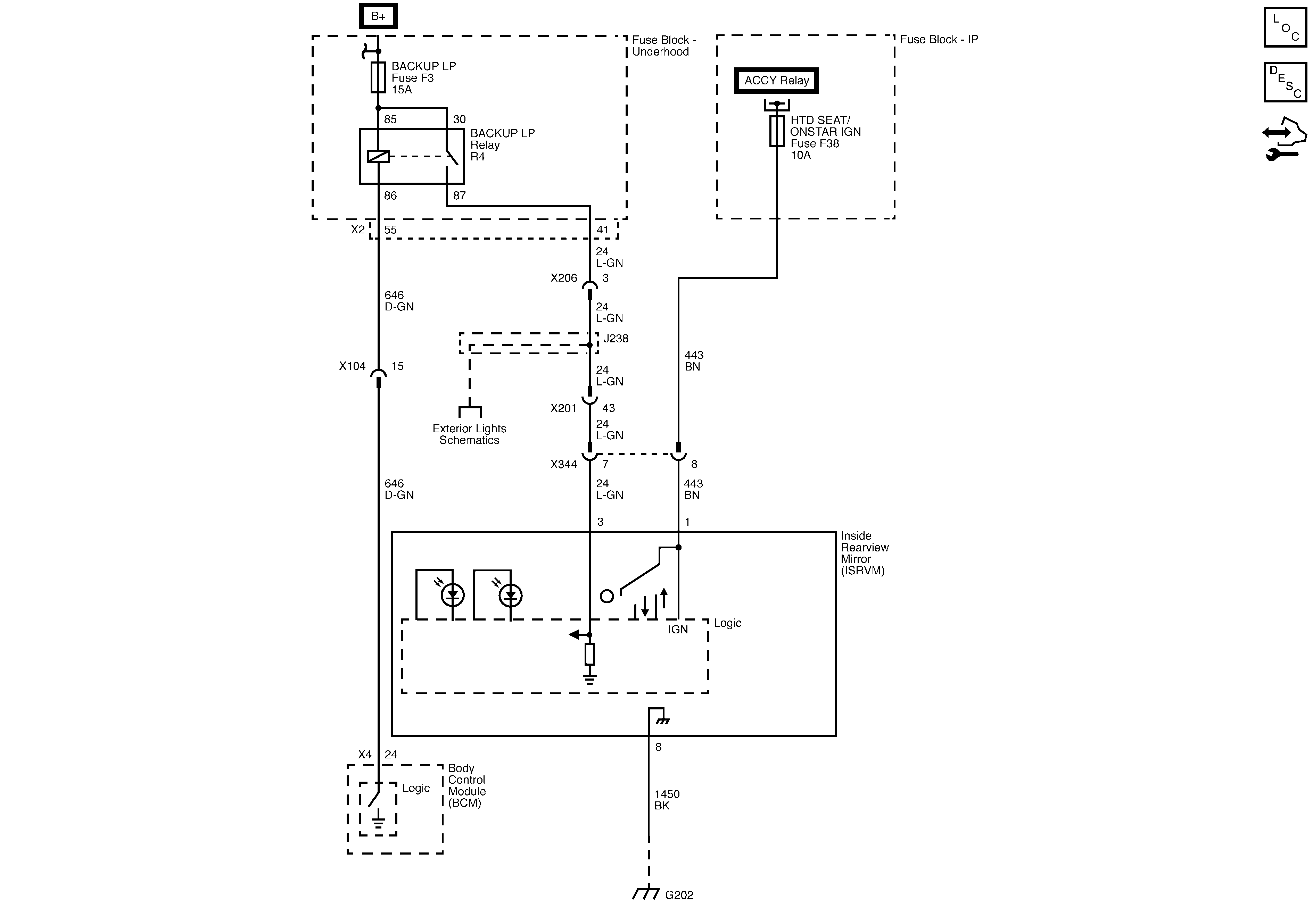
Figure
2:
U5J