GM Service Manual Online
For 1990-2009 cars only
Makes
🢒
Holden
🢒
2008
🢒
VE Ute
🢒
Seats
🢒
Power Seats
🢒 Driver Seat Schematics
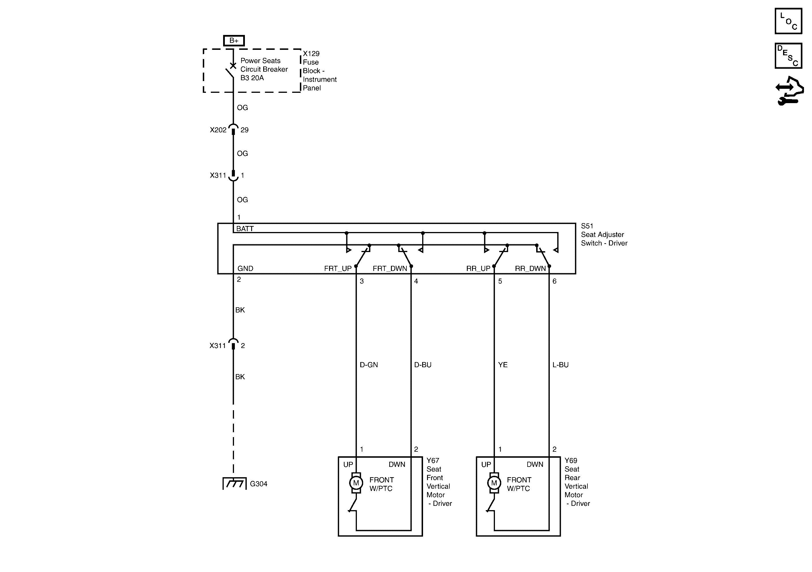
Seat Adjuster Switch and Seat Motors Inputs and Outputs
Master Electrical Component List
Power Seats System Description and Operation
Control Module References
Batt Main 1, Door Locks, Inadvert Power/LED DIM and SIR Fuses and Power Seat Circuit Breaker
G303, G304 and G308